Uudised ja teated

« Tagasi

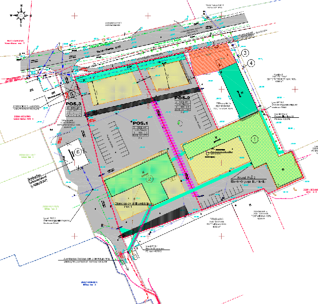
Kiiu aleviku Töökoja põik 1 kinnistu ja selle lähiala detailplaneeringu kehtestamine

Kuusalu Vallavalitsus teatab, et kehtestas 26.veebruaril 2026 korraldusega nr 46 Kiiu aleviku Töökoja põik 1 kinnistu (35201:003:0524) detailplaneeringu.
 
Töökoja põik 1 kinnistu on moodustatud vastavalt Kuusalu Vallavolikogu 29.02.2012 otsusega nr 7 kehtestatud Kiiu aleviku Töökoja põik 1, 3, 5 kinnistute ja nende lähiala detailplaneeringule. Planeeringuga määrati läbi Töökoja 1 kinnistu juurdepääsuservituudi ala Töökoja põik 1a, 3 ja 5 kinnistutele. Vastav notariaalne leping on sõlmitud. Kehtestamiseks esitatud detailplaneeringuga tehakse ettepanek 1,1 ha suuruse hoonestatud ja 100% tootmismaa sihtotstarbega kinnistu jagamiseks kaheks tootmis- ja ärimaa sihtotstarbega krundiks. Juurdepääs planeeritavatele kruntidele on tagatud Jõelähtme-Kemba maanteelt läbi munitsipaalomandisse kuuluva, transpordimaa sihtotstarbega Töökoja põik kinnistu. Selleks et planeeringuga oleks lahendatud täiendavate kruntide juurdepääsud ning ohutuks liiklemiseks vajalikud alad, on planeeritavasse alasse kaasatud ka Töökoja põik kinnistu. Detailplaneeringu lahenduse kohaselt on vajalik likvideerida transpordimaal asuvad amortiseerunud autoestakaad ning väravahoone katusealune. Ehitiste likvideerimine ja ala korrastamine on peale detailplaneeringu kehtestamist Kuusalu Vallavalitsuse ülesandeks. Samuti on vajalik koostada Töökoja põik kinnistu liikluskorralduse projekt, et oleks tagatud nii jalakäijate kui ka sõidukite ohutus. Sellest tulenevalt mõjutab Kiiu aleviku Töökoja põik 1 kinnistu ja selle lähiala detailplaneeringu kehtestamine valla eelarvet ja selle kavandamist.
 
Kuusalu valla üldplaneeringu kohaselt asub Töökoja põik 1 kinnistu tiheasustusalal, tootmismaal. Planeeringuga kavandatu on kooskõlas kehtiva Kuusalu valla üldplaneeringuga. Detailplaneering on kooskõlastatud vastavalt lähteülesandes toodule.
 
Lisainfo Kadi.Raudla@kuusalu.ee või tel 606 6379.