Uudised ja teated

Hea Kuusalu valla Pedaspea küla elanik! Pedaspea küla üldkoosolek toimub laupäeval, 20. juunil kell 10 küla lõkkeplatsil. Päevakorras külavanema valimine, külale eraldatud raha...

Kutse Pedaspea küla üldkoosolekule

Hea Kuusalu valla Pedaspea küla elanik! Pedaspea küla üldkoosolek toimub laupäeval, 20. juunil kell 10 küla lõkkeplatsil. Päevakorras külavanema valimine, külale eraldatud raha...

Kaitsevägi viib ajavahemikul 3-7. juuni 2026 keskpolügoonil läbi lahinglaskmiste harjutusi, sh toimuvad ajavahemikul 6-7. juuni laskmised öisel ajal. Kaitsevägi tänab kõiki elanikke mõistva...

Lahinglaskmised keskpolügoonil

Kaitsevägi viib ajavahemikul 3-7. juuni 2026 keskpolügoonil läbi lahinglaskmiste harjutusi, sh toimuvad ajavahemikul 6-7. juuni laskmised öisel ajal. Kaitsevägi tänab kõiki elanikke mõistva...

Kuusalu Vallavalitsus koos Elukogemuse Akadeemiaga korraldavad 17.06.2026 kell 11.00 Jaanipäeva tähistamise Kuusalu koguduse pastoraadis ja selle hoovis. Sündmus on mõeldud kõikidele Kuusalu...

Jaanipäeva tähistamine seenioritega

Kuusalu Vallavalitsus koos Elukogemuse Akadeemiaga korraldavad 17.06.2026 kell 11.00 Jaanipäeva tähistamise Kuusalu koguduse pastoraadis ja selle hoovis. Sündmus on mõeldud kõikidele Kuusalu...

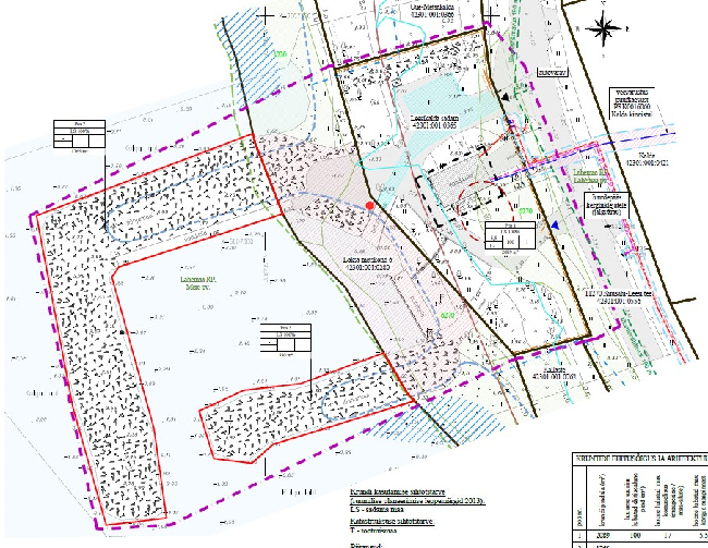
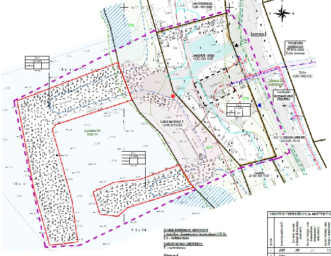
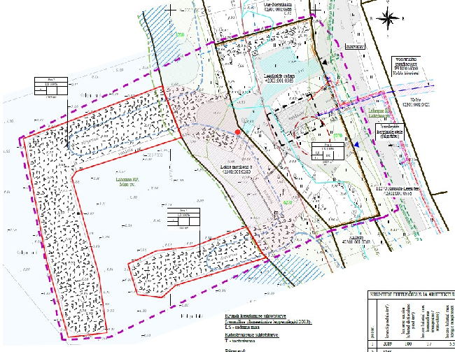
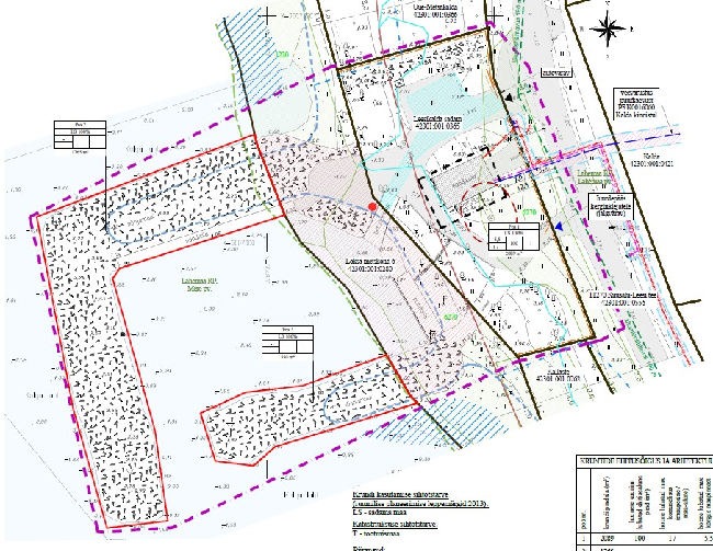
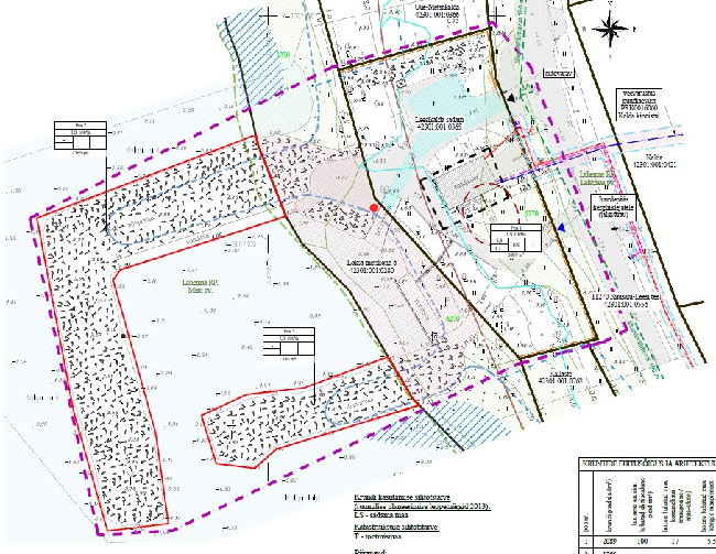
Kuusalu Vallavalitsus teatab, et algatas 13.veebruaril 2025 korraldusega nr 47 Sigula küla Jaanilauda (35301:001:0227) kinnistu detailplaneeringu ja kinnitas lähteülesande. Detailplaneeringu...

Sigula küla Jaanilauda kinnistu detailplaneeringu eskiislahenduse tutvustus

Kuusalu Vallavalitsus teatab, et algatas 13.veebruaril 2025 korraldusega nr 47 Sigula küla Jaanilauda (35301:001:0227) kinnistu detailplaneeringu ja kinnitas lähteülesande. Detailplaneeringu...

Kuusalu Vallavalitsus kuulutab välja  hanke - Valla avalike teede greiderdamine. 1. Hanke nimetus Valla avalike teede greiderdamine Hankemenetluse liik Teenustööd, alla...

Hankekutse - Valla avalike teede greiderdamine

Kuusalu Vallavalitsus kuulutab välja  hanke - Valla avalike teede greiderdamine. 1. Hanke nimetus Valla avalike teede greiderdamine Hankemenetluse liik Teenustööd, alla...

Edastame Kuusalu Soojus OÜ edastatud teate: Kuusalu vallavalitsus nõustus Kuusalu Soojus OÜ ettepanekuga kompenseerida hinnas Kolga kooli suunduva trassikao osas. Kolga kooli soojustrassi...

Kolgas langeb sügisest soojusenergia hind

Edastame Kuusalu Soojus OÜ edastatud teate: Kuusalu vallavalitsus nõustus Kuusalu Soojus OÜ ettepanekuga kompenseerida hinnas Kolga kooli suunduva trassikao osas. Kolga kooli soojustrassi...

Eeloleval nädalavahetusel on väga paljud meie piirkonna üritused seotud Lahemaa rahvuspargi 55. sünnipäevaga - terviklik programm on leitav ürituse kodulehelt. Soovitame seekord vaadata ka...

ÜRITUSED Kuusalu vallas 20.-27. mail

Eeloleval nädalavahetusel on väga paljud meie piirkonna üritused seotud Lahemaa rahvuspargi 55. sünnipäevaga - terviklik programm on leitav ürituse kodulehelt. Soovitame seekord vaadata ka...

Põllumajandus- ja Toiduamet juhib tähelepanu, et soojemate ilmade saabudes avavad üle Eesti uksed kodukohvikud, toimuvad laadad ning hoogustub otse tootjalt tarbijale ehk OTT-müük. Need...

PTA juhib tähelepanu toiduohutusele kodukohvikutes ja laatadel

Põllumajandus- ja Toiduamet juhib tähelepanu, et soojemate ilmade saabudes avavad üle Eesti uksed kodukohvikud, toimuvad laadad ning hoogustub otse tootjalt tarbijale ehk OTT-müük. Need...

Kutsume üles esitama kandidaate täiskasvanuhariduse tunnustamise konkursile. Kandidaate saab esitada 31. maini SIIN . 2025. aastal tulid mitmed Harjumaa...

Kutsume üles esitama kandidaate täiskasvanuhariduse tunnustamise konkursile

Kutsume üles esitama kandidaate täiskasvanuhariduse tunnustamise konkursile. Kandidaate saab esitada 31. maini SIIN . 2025. aastal tulid mitmed Harjumaa...

15.-16. mail Kiili rahvamajas toimunud maakondlikul laste lauluvõistlusel saavutasid auhinnatud kohad: 5-6aastaste tüdrukute vanuserühma eripreemia: GRETA-ALANA LAINE 7-9aastased...

Edukad tulemused „Harjumaa Laululaps 2026“ võistluselt

15.-16. mail Kiili rahvamajas toimunud maakondlikul laste lauluvõistlusel saavutasid auhinnatud kohad: 5-6aastaste tüdrukute vanuserühma eripreemia: GRETA-ALANA LAINE 7-9aastased...

Orienteerumismäng "Kuusalu kõnnib ringi" on kestunud juba kaks nädalat ning 17 ringi üle kogu Kuusalu valla on saanud arvukalt samme. Meiega on liitunud 104 mängijat ning nendest kaks...

Orienteerumismäng "Kuusalu kõnnib ringi" on kestnud juba 2 nädalat

Orienteerumismäng "Kuusalu kõnnib ringi" on kestunud juba kaks nädalat ning 17 ringi üle kogu Kuusalu valla on saanud arvukalt samme. Meiega on liitunud 104 mängijat ning nendest kaks...

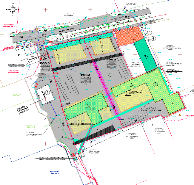
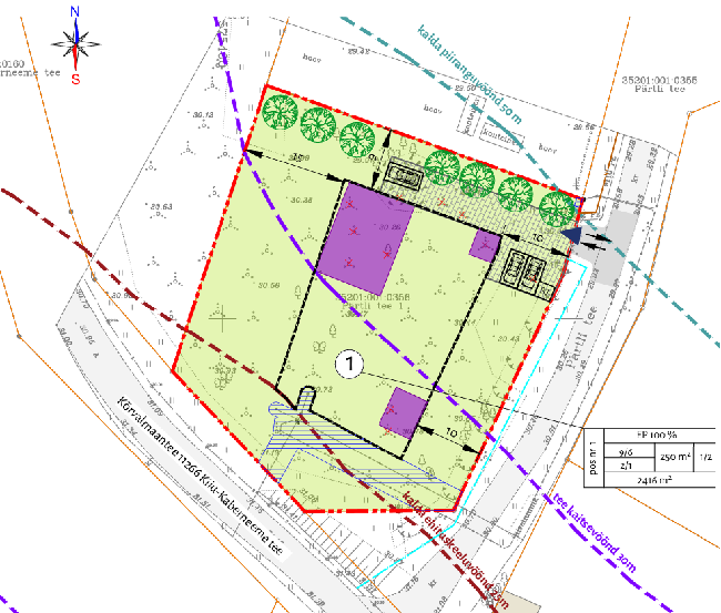
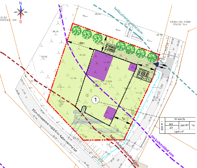
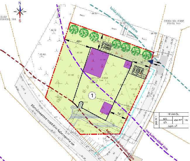
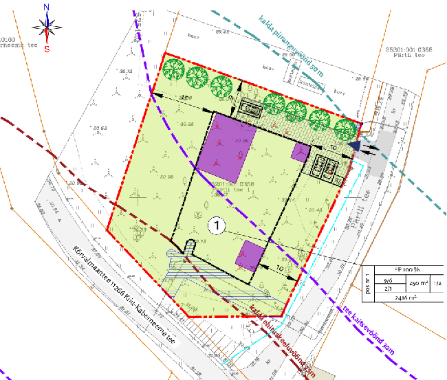
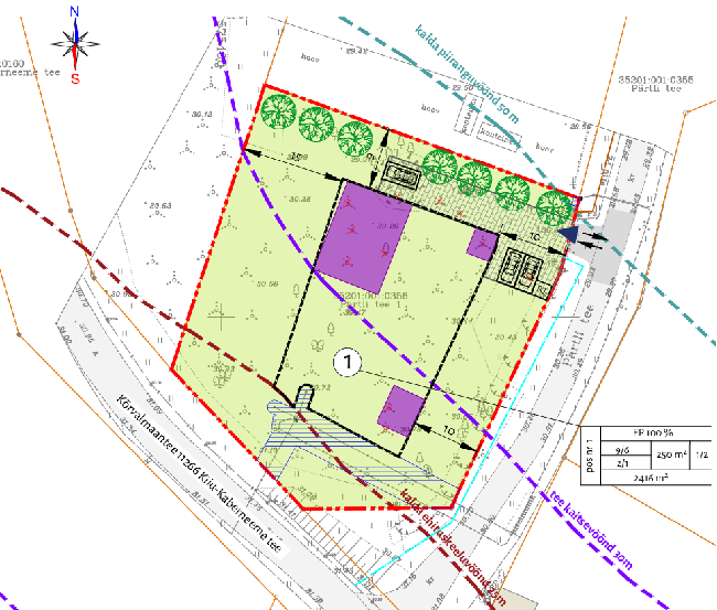
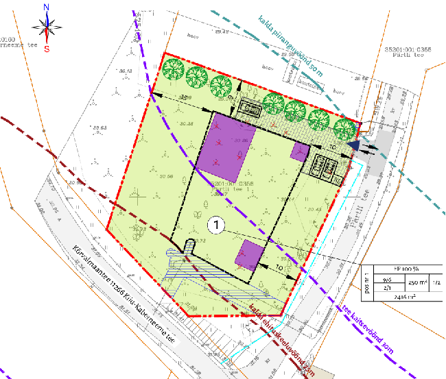
Kuusalu Vallavalitsus teatab, et algatas 12.detsembril 2024 korraldusega nr 337 Kiiu aleviku Lääne (35201:003:0113) kinnistu detailplaneeringu ja kinnitas lähteülesande. Detailplaneeringu...

Kiiu aleviku Lääne kinnistu detailplaneeringu eskiislahenduse tutvustus

Kuusalu Vallavalitsus teatab, et algatas 12.detsembril 2024 korraldusega nr 337 Kiiu aleviku Lääne (35201:003:0113) kinnistu detailplaneeringu ja kinnitas lähteülesande. Detailplaneeringu...

Põllumajandus- ja Toiduamet juhib tähelepanu: Looduses viibija meelespea: kuidas aidata piirata sigade Aafrika katku levikut Kevade saabudes liiguvad inimesed üha rohkem looduses –...

Looduses viibija meelespea: kuidas aidata piirata sigade Aafrika katku levikut

Põllumajandus- ja Toiduamet juhib tähelepanu: Looduses viibija meelespea: kuidas aidata piirata sigade Aafrika katku levikut Kevade saabudes liiguvad inimesed üha rohkem looduses –...

Jõelähtme–Kuusalu laulu- ja tantsupäev toimub tänavu juba 26. korda 30. mail Jägala-Joa külas, Põhjakalda tee 7. Peole kogunevad rahvatantsijad, lauljad ja muusikud Jõelähtme ja Kuusalu vallast....

Jõelähtme-Kuusalu laulu- ja tantsupäev

Jõelähtme–Kuusalu laulu- ja tantsupäev toimub tänavu juba 26. korda 30. mail Jägala-Joa külas, Põhjakalda tee 7. Peole kogunevad rahvatantsijad, lauljad ja muusikud Jõelähtme ja Kuusalu vallast....

Rahvahääletus toimub perioodil 15.05-31.05.2026  ning osaleda kõik vähemalt 16-aastased rahvastikuregistri-järgsed Kuusalu valla elanikud. Hääletuses osalemiseks on vajalik end...

Algas kaasava eelarve rahvahääletus

Rahvahääletus toimub perioodil 15.05-31.05.2026  ning osaleda kõik vähemalt 16-aastased rahvastikuregistri-järgsed Kuusalu valla elanikud. Hääletuses osalemiseks on vajalik end...

Kuusalu vallavalitsus kuulutab välja hanke: Kuusalu valla hoonetes ventilatsiooniseadmete hooldus 1. Hanke nimetus Kuusalu valla hoonetes ventilatsiooniseadmete hooldus ...

Hanketeade - Kuusalu valla hoonetes ventilatsiooniseadmete hooldus

Kuusalu vallavalitsus kuulutab välja hanke: Kuusalu valla hoonetes ventilatsiooniseadmete hooldus 1. Hanke nimetus Kuusalu valla hoonetes ventilatsiooniseadmete hooldus ...

Alates järgmisest teisipäevast, 19. maist kuni 30. maini on Kuusalu valla elanikel võimalik tasuta üle anda Kiiu jäätmejaamas eterniiti. Kuusalu vald sai Keskkonnainvesteeringute Keskuselt...

Kiiu jäätmejaama saab tasuta ära tuua eterniiti

Alates järgmisest teisipäevast, 19. maist kuni 30. maini on Kuusalu valla elanikel võimalik tasuta üle anda Kiiu jäätmejaamas eterniiti. Kuusalu vald sai Keskkonnainvesteeringute Keskuselt...

On aeg heita pilk rikkalikule valikule, mida teha järgneval nädalal Kuusalu vallas. Soovime helget nautimist ja põnevaid elamusi! Foto: "Õhtu Viru rabas", Kuusalu valla fotokonkurss 2025,...

ÜRITUSED Kuusalu vallas 13.-20. mail

On aeg heita pilk rikkalikule valikule, mida teha järgneval nädalal Kuusalu vallas. Soovime helget nautimist ja põnevaid elamusi! Foto: "Õhtu Viru rabas", Kuusalu valla fotokonkurss 2025,...

Baltimaade vanim rahvuspark – Lahemaa – tähistab tänavu oma 55. sünnipäeva sündmustega, mille keskmes on kohalik kogukond, pärandkultuur ja koostöö. Juubeliprogrammi veab Lahemaa Turismiühing. ...

Lahemaa rahvuspark tähistab 55. sünnipäeva Baltimaade koostöökokkuleppe sõlmimisega

Baltimaade vanim rahvuspark – Lahemaa – tähistab tänavu oma 55. sünnipäeva sündmustega, mille keskmes on kohalik kogukond, pärandkultuur ja koostöö. Juubeliprogrammi veab Lahemaa Turismiühing. ...

18. mail toimub Kuusalu Kunstide Koolis lahtiste uste päev. Koolipere ootab kõiki, kes soovivad näha, kuidas mängitakse pilli ja tehakse kunsti, kell 17 ringkäigule. Osalemiseks palutakse...

Lahtiste uste päev Kuusalu Kunstide Koolis

18. mail toimub Kuusalu Kunstide Koolis lahtiste uste päev. Koolipere ootab kõiki, kes soovivad näha, kuidas mängitakse pilli ja tehakse kunsti, kell 17 ringkäigule. Osalemiseks palutakse...

Näitan: 1-20
Elemente lehe kohta20
of 139