Uudised ja teated

Kaunitel kevadpäevadel toimub Kuusalu vallas taaskord nii mõndagi huvitavat! Kolmapäeval, 11. märtsil Kell 14.15 Kuusalu raamatukogus arvutikasutamise tasuta koolitus täiskasvanutele ...

ÜRITUSED Kuusalu vallas 11.-18. märtsil

Kaunitel kevadpäevadel toimub Kuusalu vallas taaskord nii mõndagi huvitavat! Kolmapäeval, 11. märtsil Kell 14.15 Kuusalu raamatukogus arvutikasutamise tasuta koolitus täiskasvanutele ...

Kuusalu Keskkoolis on uued prügisorteerimisjaamad, mille soetamist toetas Keskkonnainvesteeringute Keskus. Liigiti kogumine õpetab jäätmeid õigesti sorteerima. Varases eas omandatud harjumus...

Kuusalu Keskkoolis on uued prügisorteerimisjaamad

Kuusalu Keskkoolis on uued prügisorteerimisjaamad, mille soetamist toetas Keskkonnainvesteeringute Keskus. Liigiti kogumine õpetab jäätmeid õigesti sorteerima. Varases eas omandatud harjumus...

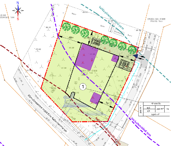
Kuusalu Vallavalitsus teatab, et algatas 5.märtsil 2026 korraldusega nr 53 Kolga aleviku Kooli (35203:002:0219) ja Vana-Vallamaja (35203:002:0218) kinnistute detailplaneeringu ja kinnitas...

Kolga aleviku Kooli ja Vana-Vallamaja kinnistute ja lähiala detailplaneeringu algatamine ja lähteülesande kinnitamine

Kuusalu Vallavalitsus teatab, et algatas 5.märtsil 2026 korraldusega nr 53 Kolga aleviku Kooli (35203:002:0219) ja Vana-Vallamaja (35203:002:0218) kinnistute detailplaneeringu ja kinnitas...

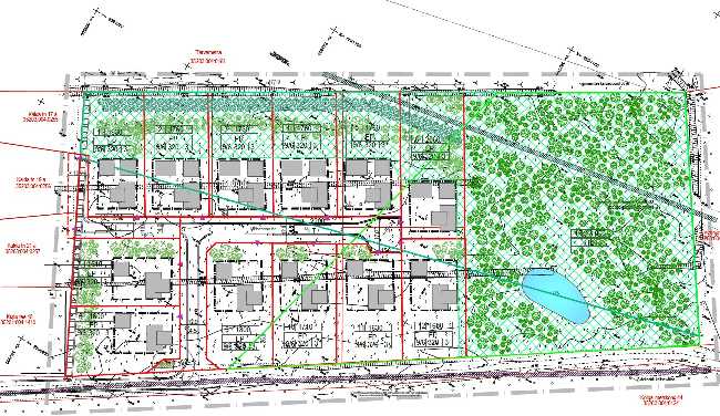
Kuusalu Vallavalitsus teatab, et algatas 5.märtsil 2026 korraldusega nr 54 Kolga aleviku Mõisa allee 2/3 (35203:002:0120) kinnistu detailplaneeringu ja kinnitas lähteülesande.   ...

Kolga aleviku Mõisa allee 2/3 kinnistu detailplaneeringu algatamine ja lähteülesande kinnitamine

Kuusalu Vallavalitsus teatab, et algatas 5.märtsil 2026 korraldusega nr 54 Kolga aleviku Mõisa allee 2/3 (35203:002:0120) kinnistu detailplaneeringu ja kinnitas lähteülesande.   ...

Ilusat naistepäeva ning soovime, et teil tuleks tore päev!

Head naistepäeva, kallid Kuusalu valla naised!

Ilusat naistepäeva ning soovime, et teil tuleks tore päev!

Kuusalu vald sai Keskkonnainvesteeringute Keskuselt 891 644 eurot toetust, et rajada uus, kaasaegne ja keskkonnanõuetele vastav jäätmejaam Kiidu valla maale reoveepuhasti kinnistule. Uus...

Kiidu ehitatakse uus keskkonnasõbralikum jäätmejaam

Kuusalu vald sai Keskkonnainvesteeringute Keskuselt 891 644 eurot toetust, et rajada uus, kaasaegne ja keskkonnanõuetele vastav jäätmejaam Kiidu valla maale reoveepuhasti kinnistule. Uus...

Kroonikafilmi maht on 10-12 episoodi ja kogupikkus ca 60 minutit. Episoodid peavad olema filmitud kvaliteetse videotehnikaga, sisaldama lisaks meeleolu loovatele kaadritele ka teemat puudutavat...

Kuusalu vallavalitsus otsib koostööpartnerit valla 2026. aasta kroonikafilmi tegemiseks

Kroonikafilmi maht on 10-12 episoodi ja kogupikkus ca 60 minutit. Episoodid peavad olema filmitud kvaliteetse videotehnikaga, sisaldama lisaks meeleolu loovatele kaadritele ka teemat puudutavat...

Kutsume kaasa mõtlema ja võtma enda kanda valla olulise ürituse korraldamine, et pakkuda meeleolukat ja meeldejäävat elamust nii vallarahvale kui ka külalistele. Ürituse eelarve on kuni 900...

Ootame taotlusi ürituse „Kuusalu valla laululaps 2026" korraldamiseks

Kutsume kaasa mõtlema ja võtma enda kanda valla olulise ürituse korraldamine, et pakkuda meeleolukat ja meeldejäävat elamust nii vallarahvale kui ka külalistele. Ürituse eelarve on kuni 900...

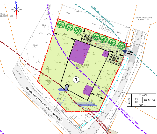
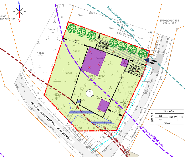
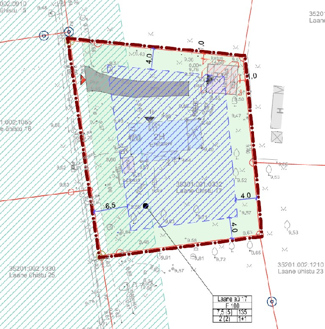
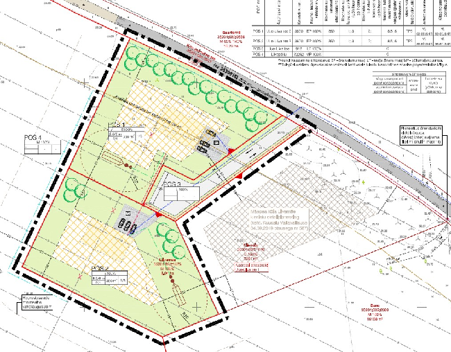
Kuusalu Vallavalitsus teatab, et algatas 26.veebruaril 2026 korraldusega nr 48 Sõitme küla Leegiranna tee 15 (35201:002:0608) kinnistu detailplaneeringu ja kinnitas lähteülesande. ...

Sõitme küla Leegiranna tee 15 kinnistu ja selle lähiala detailplaneeringu algatamine ja lähteülesande kinnitamine

Kuusalu Vallavalitsus teatab, et algatas 26.veebruaril 2026 korraldusega nr 48 Sõitme küla Leegiranna tee 15 (35201:002:0608) kinnistu detailplaneeringu ja kinnitas lähteülesande. ...

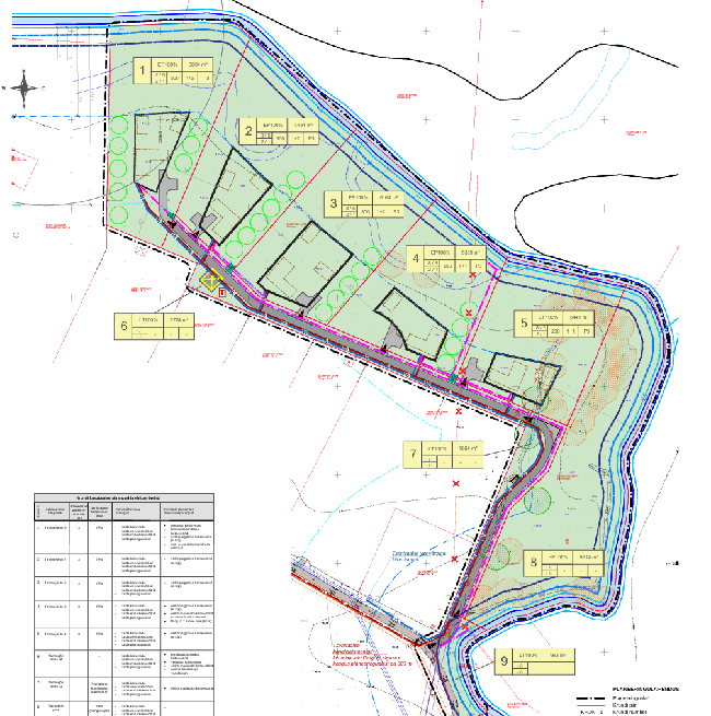
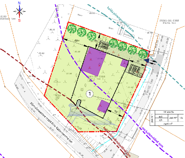
Kuusalu Vallavalitsus teatab, et kehtestas 26.veebruaril 2026 korraldusega nr 46 Kiiu aleviku Töökoja põik 1 kinnistu (35201:003:0524) detailplaneeringu.   Töökoja põik 1...

Kiiu aleviku Töökoja põik 1 kinnistu ja selle lähiala detailplaneeringu kehtestamine

Kuusalu Vallavalitsus teatab, et kehtestas 26.veebruaril 2026 korraldusega nr 46 Kiiu aleviku Töökoja põik 1 kinnistu (35201:003:0524) detailplaneeringu.   Töökoja põik 1...

Korteriühistutele luuakse ka 2026. aastal taotlusvoor, kust küsida toetust mobiilsete või statsionaarsete generaatorite ostmiseks. Taotlusvoor valmistatakse ette ja viiakse läbi koostöös Riigi...

Eelteade: korteriühistutel tekib võimalus taotleda toetust generaatori ostmiseks

Korteriühistutele luuakse ka 2026. aastal taotlusvoor, kust küsida toetust mobiilsete või statsionaarsete generaatorite ostmiseks. Taotlusvoor valmistatakse ette ja viiakse läbi koostöös Riigi...

Ilusat kevadkuu algust! Vaatame üle, kuhu minna ja mida teha järgneva nädala jooksul Kuusalu vallas. Neljapäeval, 5. märtsil Kell 11 Kuusalu rahvamajas teatrietendus „Koleda tüdruku...

ÜRITUSED Kuusalu vallas 4.-11. märtsil

Ilusat kevadkuu algust! Vaatame üle, kuhu minna ja mida teha järgneva nädala jooksul Kuusalu vallas. Neljapäeval, 5. märtsil Kell 11 Kuusalu rahvamajas teatrietendus „Koleda tüdruku...

Programmi eesmärk on tugevate ja omaalgatusel põhinevate kogukondade tekkimine ja püsimine. Programmi eesmärgi saavutamiseks elluviidavaid tegevusi toetatakse kahe meetme kaudu. Meede...

Avanes Kohaliku Omaalgatuse Programmi (KOP) kevadvoor

Programmi eesmärk on tugevate ja omaalgatusel põhinevate kogukondade tekkimine ja püsimine. Programmi eesmärgi saavutamiseks elluviidavaid tegevusi toetatakse kahe meetme kaudu. Meede...

MTÜ Arenduskoda rahastab 2026. aastal ESF+ fondist  projekti meetmest 4.1 „Sotsiaalne kaasatus kogukondades" kahte Kuusalu vallavalitsuse projekti „Kuusalu valla eakate ühisvõimlemine" ja...

Eakatele suunatud projektide tegevused

MTÜ Arenduskoda rahastab 2026. aastal ESF+ fondist  projekti meetmest 4.1 „Sotsiaalne kaasatus kogukondades" kahte Kuusalu vallavalitsuse projekti „Kuusalu valla eakate ühisvõimlemine" ja...

Infoks bussireisijatele - maakonnaliinide bussisõitude hind tõuseb alates 16. märtsist Üksiksõidu hind tõuseb enamasti 10–20 sendi võrra ning 30 päeva piletite hind 1–3 euro võrra. ...

Maakonnaliinide bussipileti hind tõuseb alates 16. märtsist

Infoks bussireisijatele - maakonnaliinide bussisõitude hind tõuseb alates 16. märtsist Üksiksõidu hind tõuseb enamasti 10–20 sendi võrra ning 30 päeva piletite hind 1–3 euro võrra. ...

Kriisivalmiduse koolitused Kuusalu vallas   Kuusalu vallavalitsus koostöös Päästeametiga kutsuvad teid osalema kriisivalmiduse tasuta koolitustel: ...

Kriisivalmiduse tasuta koolitused Kuusalus ja Kolgakülas

Kriisivalmiduse koolitused Kuusalu vallas   Kuusalu vallavalitsus koostöös Päästeametiga kutsuvad teid osalema kriisivalmiduse tasuta koolitustel: ...

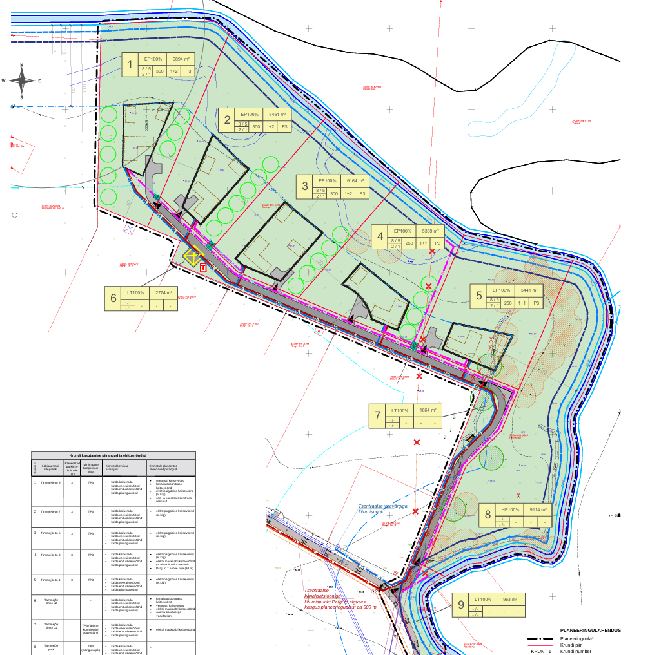
Kuusalu vallavalitsuse 18. detsembri 2025 korraldusega nr 358 võeti vastu Kuusalu alevik Kuusalu tee 41 (35201:004:0039), Kuusalu tee 43 (35201:004:0064) ja Tehnika tänava (35201:004:0058)...

Kuusalu aleviku Kuusalu tee 41, Kuusalu tee 43 ja Tehnika tänava kinnistute ning lähiala detailplaneeringu avaliku väljapaneku järgne avalik arutelu

Kuusalu vallavalitsuse 18. detsembri 2025 korraldusega nr 358 võeti vastu Kuusalu alevik Kuusalu tee 41 (35201:004:0039), Kuusalu tee 43 (35201:004:0064) ja Tehnika tänava (35201:004:0058)...

Töönädala lõpuks lähme meenutustes tagasi möödunud suvesse, kui Kuusalu võõrustas Harju 30. maakaitsepäeva. Tänu meie valla andekatele inimestele ja heale koostööle tuli välja üsna...

Suvine meenutus: "Kõrvemaast Põhjarannani" kontsert-etenduse täispikk videosalvestus

Töönädala lõpuks lähme meenutustes tagasi möödunud suvesse, kui Kuusalu võõrustas Harju 30. maakaitsepäeva. Tänu meie valla andekatele inimestele ja heale koostööle tuli välja üsna...

Tasuta arvutikasutamise koolitus täiskasvanutele, kellel on vähesed või puuduvad digioskused. Õpetusi jagavad Kuusalu valla noored. Koolitused toimuvad: 11. märtsil kell...

Märts on digikuu: arvutikasutamise tasuta koolitused Kuusalu vallas

Tasuta arvutikasutamise koolitus täiskasvanutele, kellel on vähesed või puuduvad digioskused. Õpetusi jagavad Kuusalu valla noored. Koolitused toimuvad: 11. märtsil kell...

Suuremad pidustused on peetud ning taas on aeg võtta pisut rahulikumalt, kuid kindlasti jätkuvalt sisukalt ja meeleolukalt. Foto: "Vaade Kuusalu keskkooli mäelt", autor Marlen Kalda (Kuusalu...

ÜRITUSED Kuusalu vallas 25.02.-5.03.2026

Suuremad pidustused on peetud ning taas on aeg võtta pisut rahulikumalt, kuid kindlasti jätkuvalt sisukalt ja meeleolukalt. Foto: "Vaade Kuusalu keskkooli mäelt", autor Marlen Kalda (Kuusalu...

Näitan: 1-20
Elemente lehe kohta20
of 133