Uudised ja teated

Kaitseliidu Põhja maakaitseringkond annab teada õppusest LAVA26. Õppus toimub ajavahemikul 24.-26.04.2026. Antud perioodil võib kohata tavapärasest rohkem kaitseliitlasi. Õppusest võtavad osa...

Teade Kaitseliidu õppusest: LAVA2026

Kaitseliidu Põhja maakaitseringkond annab teada õppusest LAVA26. Õppus toimub ajavahemikul 24.-26.04.2026. Antud perioodil võib kohata tavapärasest rohkem kaitseliitlasi. Õppusest võtavad osa...

Päevad on aina pikemad ning kevadväsimuse peletamiseks on seekord pakkuda päris arvukalt variante. Mõnusat nautimist ning kui midagi on nimekirjast puudu, palume teada anda! Foto: Toivo...

ÜRITUSED Kuusalu vallas 22.-29. aprillil

Päevad on aina pikemad ning kevadväsimuse peletamiseks on seekord pakkuda päris arvukalt variante. Mõnusat nautimist ning kui midagi on nimekirjast puudu, palume teada anda! Foto: Toivo...

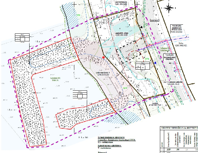
Anname teada, et Kuusalu Vallavalitsuse 16.aprilli 2026 korraldusega nr 122 võeti vastu Kaberla küla Kutikse kinnistu (35201:001:0245) detailplaneering. Detailplaneeringu avaliku väljapaneku...

Kaberla küla Kutikse kinnistu detailplaneeringu avalik väljapanek

Anname teada, et Kuusalu Vallavalitsuse 16.aprilli 2026 korraldusega nr 122 võeti vastu Kaberla küla Kutikse kinnistu (35201:001:0245) detailplaneering. Detailplaneeringu avaliku väljapaneku...

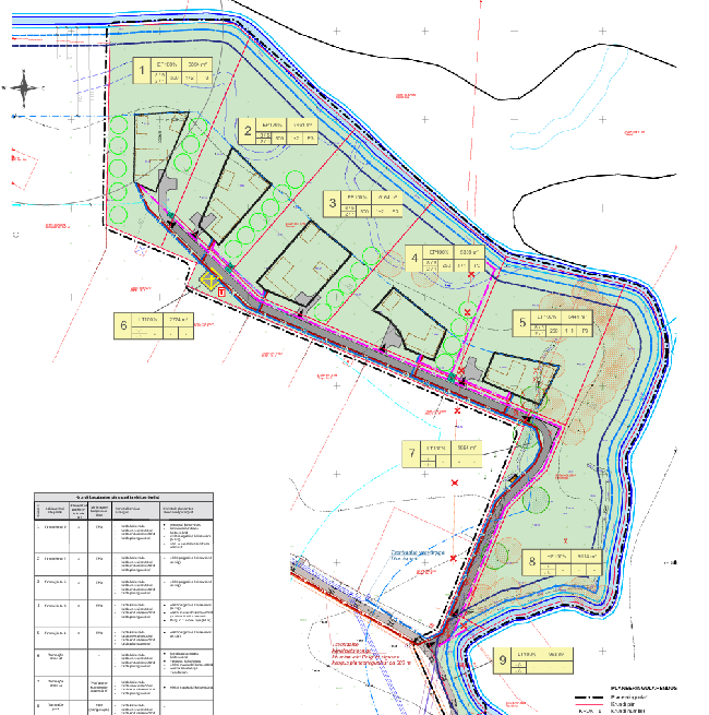
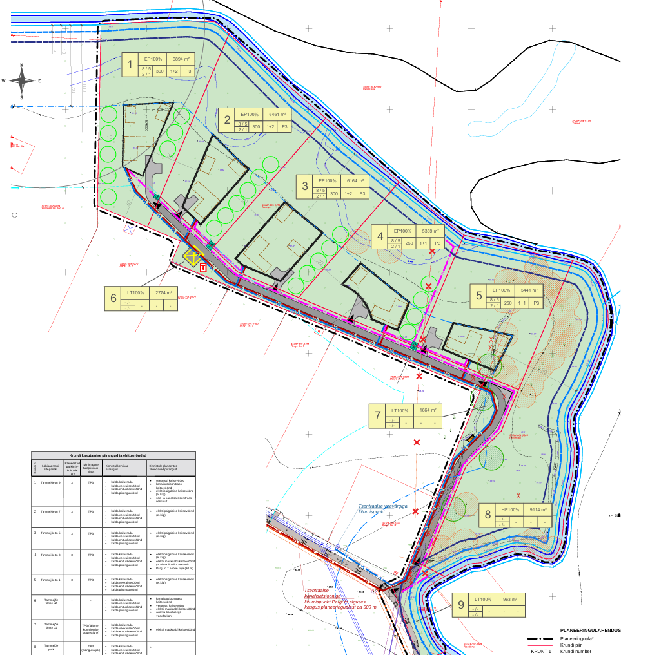
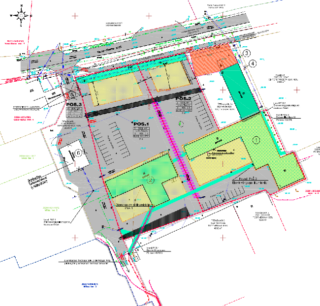
Anname teada, et Kuusalu Vallavalitsuse 16.aprilli 2026 korraldusega nr 121 võeti vastu Valkla küla Joosepi (35301:001:0271), Tammejõe (35201:001:0360) ja Pargi tn L2 (35301:001:1346)...

Valkla küla Joosepi, Tammejõe ning Pargi tn L2 kinnistute detailplaneeringu avalik väljapanek

Anname teada, et Kuusalu Vallavalitsuse 16.aprilli 2026 korraldusega nr 121 võeti vastu Valkla küla Joosepi (35301:001:0271), Tammejõe (35201:001:0360) ja Pargi tn L2 (35301:001:1346)...

Edastame Päästeameti teate: Aprilli viimasel nädalal avaneb taotlusvoor, kust korteriühistud saavad küsida toetust transporditava või kohtkindla generaatori ostmiseks. Taotlusvooru eelarve...

Avaneb taotlusvoor korteriühistutele generaatori ostmiseks, tulemas ka infotund

Edastame Päästeameti teate: Aprilli viimasel nädalal avaneb taotlusvoor, kust korteriühistud saavad küsida toetust transporditava või kohtkindla generaatori ostmiseks. Taotlusvooru eelarve...

Hea Valgejõe küla elanik! Oled oodatud Valgejõe küla koosolekule pühapäeval, 3. mail kell 10 Valgejõe kiigeplatsil . Päevakord: Külaraha kasutamine Külavanema tagasiastumine...

Valgejõe külakoosolek ja külavanema valimine

Hea Valgejõe küla elanik! Oled oodatud Valgejõe küla koosolekule pühapäeval, 3. mail kell 10 Valgejõe kiigeplatsil . Päevakord: Külaraha kasutamine Külavanema tagasiastumine...

Kuusalu vallavalitsuse arendusjuht Andres Põdra andis täna, 15. aprillil Salmistu sadamahoone võtmed üle kohaliku ettevõtte Best Party Solutions OÜ juhile Rauno Arulole, kes võitis vallale...

Salmistu sadamahoones avab uksed kohvik Salmistu Suits&Sool

Kuusalu vallavalitsuse arendusjuht Andres Põdra andis täna, 15. aprillil Salmistu sadamahoone võtmed üle kohaliku ettevõtte Best Party Solutions OÜ juhile Rauno Arulole, kes võitis vallale...

Kuusalu vallas Pärispea külas elav parasportlane Ain Villau ning tema paariline Kätlin Riidebach saavutasid möödunud talvel toimunud paraolümpiamängudel ratastoolikurlingus kõrge 7. koha, mis on...

Kuusalu vallavalitsus premeeris paraolümpial Eestit esindanud Ain Villaud 1000 euroga

Kuusalu vallas Pärispea külas elav parasportlane Ain Villau ning tema paariline Kätlin Riidebach saavutasid möödunud talvel toimunud paraolümpiamängudel ratastoolikurlingus kõrge 7. koha, mis on...

Kevad on näitamas oma helgemat palet ning kirju on ka ürituste kalender - loodame, et igaüks leiab midagi sobivat. Mõnusat nautimist! Kolmapäeval, 15. aprillil Kell 18.30 Kiius...

ÜRITUSED Kuusalu vallas 15.-22. aprillil

Kevad on näitamas oma helgemat palet ning kirju on ka ürituste kalender - loodame, et igaüks leiab midagi sobivat. Mõnusat nautimist! Kolmapäeval, 15. aprillil Kell 18.30 Kiius...

Hea Saunja küla elanik! Oled oodatud Saunja külakoosolekule pühapäeval, 19. aprillil kell 12 Saunja külaplatsil . Päevakorras külavanema ja külakogu valimine, külaraha kasutamine. ...

Saunja külakoosolek ja külavanema valimine

Hea Saunja küla elanik! Oled oodatud Saunja külakoosolekule pühapäeval, 19. aprillil kell 12 Saunja külaplatsil . Päevakorras külavanema ja külakogu valimine, külaraha kasutamine. ...

Hea Sõitme küla elanik! Sõitme külakoosolek toimub pühapäeval, 17. mail 2026 kell 17 Jõekääru Perepuhkuse kaminaruumis (Jõekääru talu, Sõitme küla). Päevakord: Külavanema...

Sõitme külakoosolek ja külavanema valimine

Hea Sõitme küla elanik! Sõitme külakoosolek toimub pühapäeval, 17. mail 2026 kell 17 Jõekääru Perepuhkuse kaminaruumis (Jõekääru talu, Sõitme küla). Päevakord: Külavanema...

Konkursil oodatakse osalema kõiki tegusaid ja ühtehoidvaid Harjumaa külasid, kes panustavad oma kogukonna arengusse ja elukeskkonna paremaks muutmisse. Konkursil osalemiseks täida avaldus ja...

Harjumaa aasta küla konkurss on avatud

Konkursil oodatakse osalema kõiki tegusaid ja ühtehoidvaid Harjumaa külasid, kes panustavad oma kogukonna arengusse ja elukeskkonna paremaks muutmisse. Konkursil osalemiseks täida avaldus ja...

Kuusalu valla Elukogemuse Akadeemia kutsub: Teisipäeval, 14. aprillil kohtume Saku Diabeetikute seltsiga kell 11 Kuusalu vallamaja saalis (Mõisa tee 17, Kiiu alevik) Teisipäeval,...

Kuusalu valla Elukogemuse Akadeemia üritused aprillis-mais

Kuusalu valla Elukogemuse Akadeemia kutsub: Teisipäeval, 14. aprillil kohtume Saku Diabeetikute seltsiga kell 11 Kuusalu vallamaja saalis (Mõisa tee 17, Kiiu alevik) Teisipäeval,...

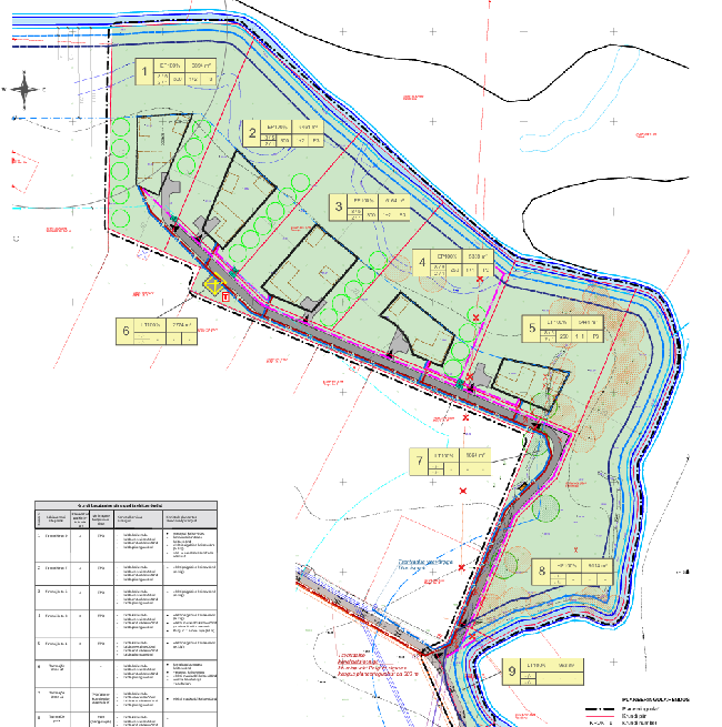
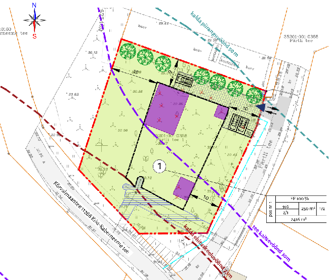
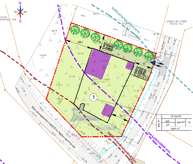
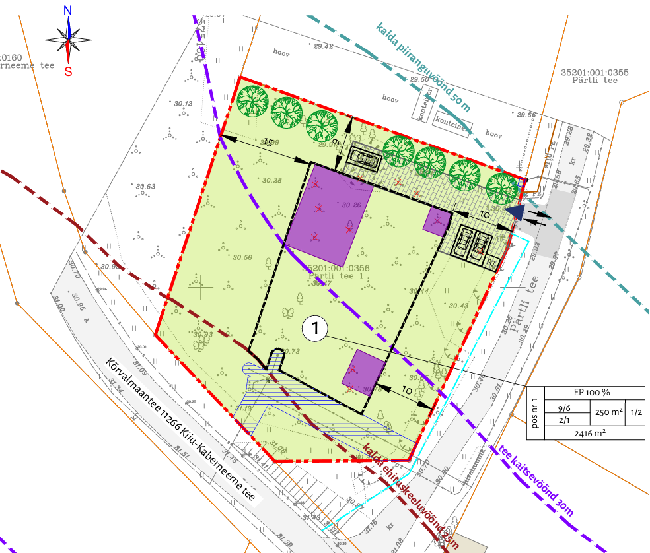
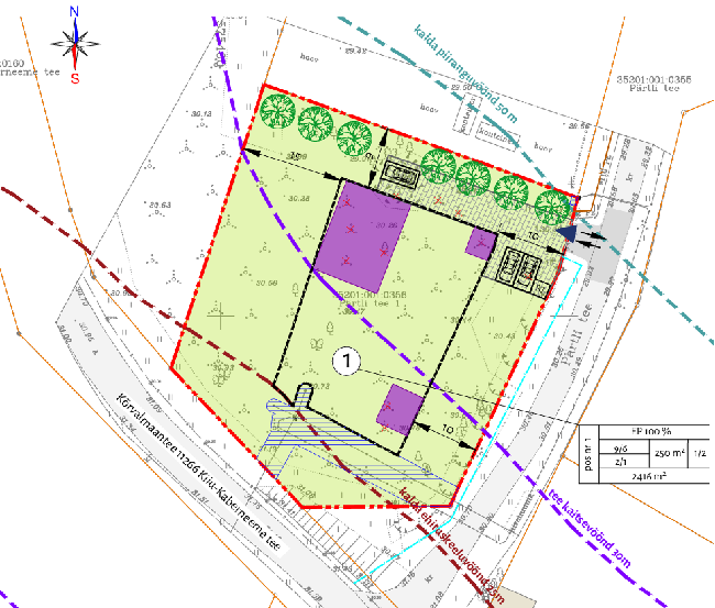
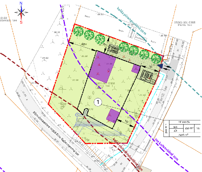
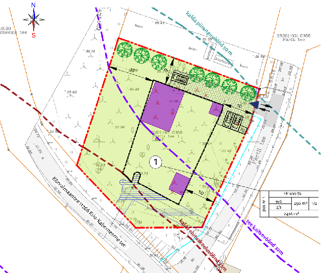
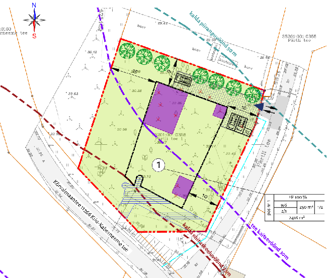
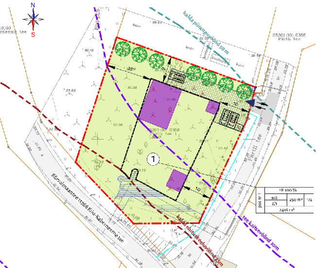
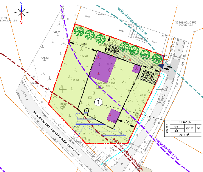
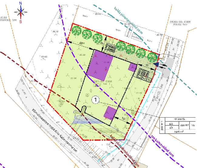
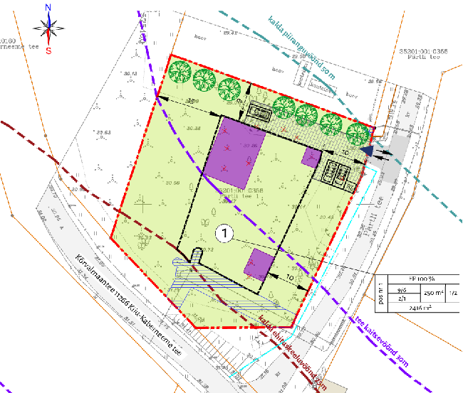
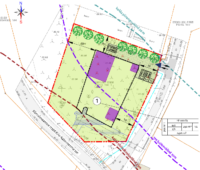
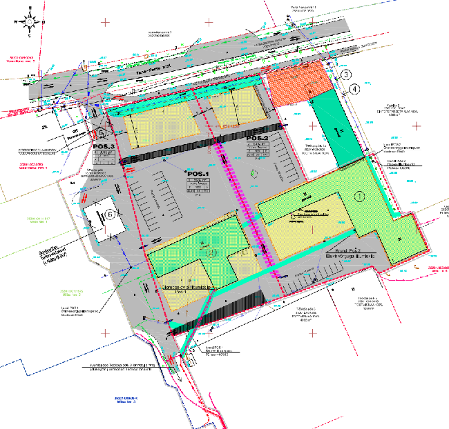
Kuusalu Vallavalitsus teatab, et algatas 12.septembril 2024 korraldusega nr 238 Valkla küla Pärtli tee 1 (35201:001:0356) kinnistu detailplaneeringu ja kinnitas lähteülesande. Detailplaneeringu...

Valkla küla Pärtli tee 1 kinnistu detailplaneeringu eskiislahenduse tutvustus

Kuusalu Vallavalitsus teatab, et algatas 12.septembril 2024 korraldusega nr 238 Valkla küla Pärtli tee 1 (35201:001:0356) kinnistu detailplaneeringu ja kinnitas lähteülesande. Detailplaneeringu...

Maa- ja ruumiamet on välja kuulutanud avaliku elektroonilise enampakkumise piirkonnas asuvate kinnisasjade kasutamiseks andmiseks. Pakkumiste esitamise tähtaeg on 28.04.2026. Täpsemat...

Maa- ja ruumiameti enampakkumine kinnisasja tasuta kasutusse andmiseks

Maa- ja ruumiamet on välja kuulutanud avaliku elektroonilise enampakkumise piirkonnas asuvate kinnisasjade kasutamiseks andmiseks. Pakkumiste esitamise tähtaeg on 28.04.2026. Täpsemat...

Seekord on meie vallas pakkuda väga palju põnevat ja mitmekülgset, millega sooja kevade ootust meeleolukamaks muuta. Kui midagi on puudu, palume teada anda. Mõnusat nautimist! Reedel, 10....

ÜRITUSED Kuusalu vallas 8.-15. aprillil

Seekord on meie vallas pakkuda väga palju põnevat ja mitmekülgset, millega sooja kevade ootust meeleolukamaks muuta. Kui midagi on puudu, palume teada anda. Mõnusat nautimist! Reedel, 10....

Head Kasispea küla elanikud! Kasispea külakoosolek toimub laupäeval, 25. aprill kell 11 Kasispea külaplatsil. Päevakorras: Ülevaade küla rahadest ja külaraha kasutamisest. ...

Kasispea külakoosolek

Head Kasispea küla elanikud! Kasispea külakoosolek toimub laupäeval, 25. aprill kell 11 Kasispea külaplatsil. Päevakorras: Ülevaade küla rahadest ja külaraha kasutamisest. ...

Lugupeetud Kolga-Aabla küla elanikud! Olete oodatud Kolga-Aabla külakoosolekule laupäeval, 9. mail kell 11 Kolga-Aabla külaplatsil . Päevakord: Kolga- Aabla küla külavanema...

Kutse Kolga-Aabla külakoosolekule ja külavanema valimisele

Lugupeetud Kolga-Aabla küla elanikud! Olete oodatud Kolga-Aabla külakoosolekule laupäeval, 9. mail kell 11 Kolga-Aabla külaplatsil . Päevakord: Kolga- Aabla küla külavanema...

Avatud on ettepanekute esitamine Kuusalu valla 2026. aasta kaasavasse eelarvesse. Ettepanekut saab esitada valla elektroonilises iseteeninduskeskkonnas SPOKU kuni 30. aprillini. 2026....

Avatud on ettepanekute esitamine kaasavasse eelarvesse

Avatud on ettepanekute esitamine Kuusalu valla 2026. aasta kaasavasse eelarvesse. Ettepanekut saab esitada valla elektroonilises iseteeninduskeskkonnas SPOKU kuni 30. aprillini. 2026....

Üle-eestiline talgupäev Teeme Ära toimub tänavu 2. mail. Tänavu on fookuses: Keldrite korrastamine varjumiskohtadeks - tänavu kutsume kogukondi korrastama keldreid varjumiskohtadeks. Nii...

Üle-eestiline talgupäev tuleb taas - pane oma talgupaik kirja

Üle-eestiline talgupäev Teeme Ära toimub tänavu 2. mail. Tänavu on fookuses: Keldrite korrastamine varjumiskohtadeks - tänavu kutsume kogukondi korrastama keldreid varjumiskohtadeks. Nii...

Näitan: 1-20
Elemente lehe kohta20
of 136