Uudised ja teated

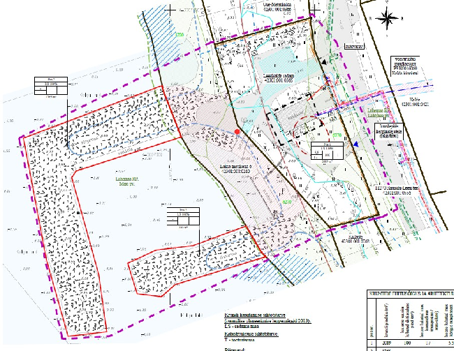
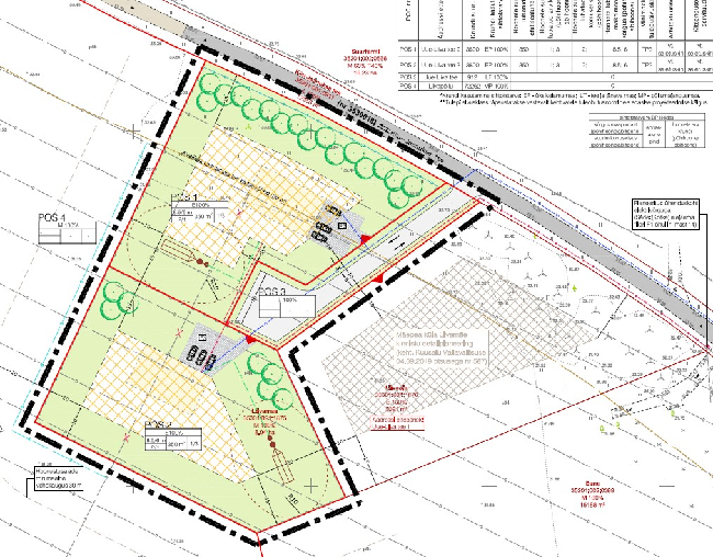
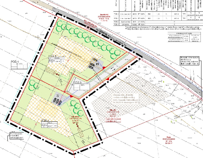
Anname teada, et Kuusalu Vallavalitsuse 18.detsembri 2025 korraldusega nr 358 võeti vastu Kuusalu alevik Kuusalu tee 41 (35201:004:0039), Kuusalu tee 43 (35201:004:0064) ja Tehnika tänava...

Kuusalu aleviku Kuusalu tee 41, Kuusalu tee 43 ja Tehnika tänava kinnistute ning lähiala detailplaneeringu avaliku väljapaneku järgne avaliku arutelu muutuse teade

Anname teada, et Kuusalu Vallavalitsuse 18.detsembri 2025 korraldusega nr 358 võeti vastu Kuusalu alevik Kuusalu tee 41 (35201:004:0039), Kuusalu tee 43 (35201:004:0064) ja Tehnika tänava...

Kuusalu vallavalitsus kinnitas 12. märtsi istungil toetuse projektidele: Kogukonnavaldkonnas: Kahala Järve Külade Selts sai Liiva Laada korraldamiseks 1200 eurot MTÜ Kuusalu...

Projektitoetuste rahastamine Kuusalu valla eelarvest

Kuusalu vallavalitsus kinnitas 12. märtsi istungil toetuse projektidele: Kogukonnavaldkonnas: Kahala Järve Külade Selts sai Liiva Laada korraldamiseks 1200 eurot MTÜ Kuusalu...

Kuusalu vallavalitsus kinnitas 12. märtsi istungil mittetulundussektori toetused. Mittetulundussektori toetused: Kolga seenioride seltsingule seenioride huvitegevuseks 2 700 eurot ...

Mittetulundussektori toetamine Kuusalu valla eelarvest

Kuusalu vallavalitsus kinnitas 12. märtsi istungil mittetulundussektori toetused. Mittetulundussektori toetused: Kolga seenioride seltsingule seenioride huvitegevuseks 2 700 eurot ...

Kuusalu vallavalitsus kinnitas 12. märtsi istungil Kuusalu valla 2026. aasta eelarvest toetatavate  rahvakultuuriringide toetussummad:   MTÜ Vihasoo Kultuuriselts saab...

Rahvakultuuriringide toetused

Kuusalu vallavalitsus kinnitas 12. märtsi istungil Kuusalu valla 2026. aasta eelarvest toetatavate  rahvakultuuriringide toetussummad:   MTÜ Vihasoo Kultuuriselts saab...

Kuusalu vallavalitsus kinnitas 12. märtsi istungil valla andekate noorsportlaste toetused ja spordi treeningrühmade toetused. Valla 2026. aasta eelarves on andekate sportlaste toetuseks 5000...

Andekate sportlaste ja spordi treeningrühmade toetused

Kuusalu vallavalitsus kinnitas 12. märtsi istungil valla andekate noorsportlaste toetused ja spordi treeningrühmade toetused. Valla 2026. aasta eelarves on andekate sportlaste toetuseks 5000...

Kaunitel kevadpäevadel toimub Kuusalu vallas taaskord nii mõndagi huvitavat! Kolmapäeval, 11. märtsil Kell 14.15 Kuusalu raamatukogus arvutikasutamise tasuta koolitus täiskasvanutele ...

ÜRITUSED Kuusalu vallas 11.-18. märtsil

Kaunitel kevadpäevadel toimub Kuusalu vallas taaskord nii mõndagi huvitavat! Kolmapäeval, 11. märtsil Kell 14.15 Kuusalu raamatukogus arvutikasutamise tasuta koolitus täiskasvanutele ...

Kuusalu Keskkoolis on uued prügisorteerimisjaamad, mille soetamist toetas Keskkonnainvesteeringute Keskus. Liigiti kogumine õpetab jäätmeid õigesti sorteerima. Varases eas omandatud harjumus...

Kuusalu Keskkoolis on uued prügisorteerimisjaamad

Kuusalu Keskkoolis on uued prügisorteerimisjaamad, mille soetamist toetas Keskkonnainvesteeringute Keskus. Liigiti kogumine õpetab jäätmeid õigesti sorteerima. Varases eas omandatud harjumus...

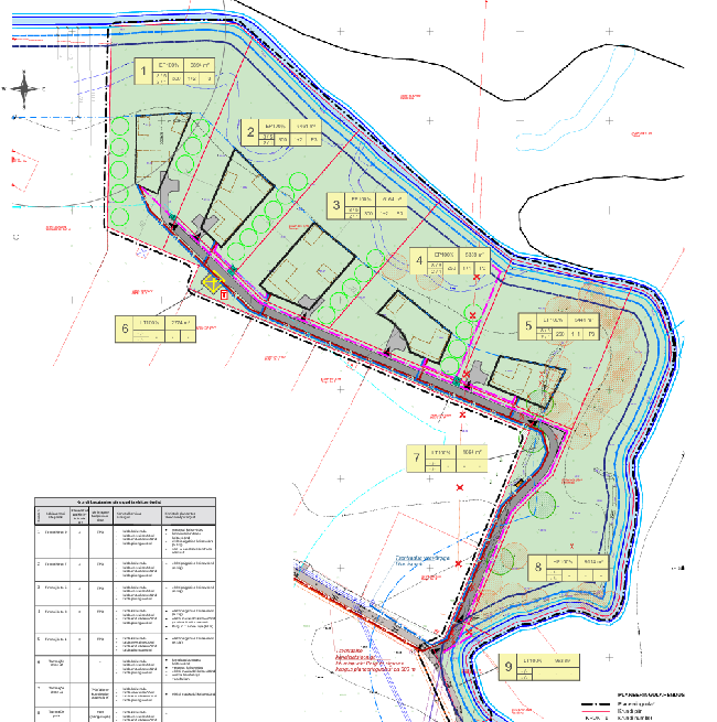
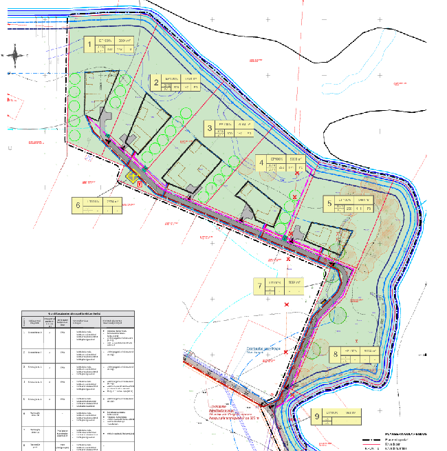
Kuusalu Vallavalitsus teatab, et algatas 5.märtsil 2026 korraldusega nr 53 Kolga aleviku Kooli (35203:002:0219) ja Vana-Vallamaja (35203:002:0218) kinnistute detailplaneeringu ja kinnitas...

Kolga aleviku Kooli ja Vana-Vallamaja kinnistute ja lähiala detailplaneeringu algatamine ja lähteülesande kinnitamine

Kuusalu Vallavalitsus teatab, et algatas 5.märtsil 2026 korraldusega nr 53 Kolga aleviku Kooli (35203:002:0219) ja Vana-Vallamaja (35203:002:0218) kinnistute detailplaneeringu ja kinnitas...

Kuusalu Vallavalitsus teatab, et algatas 5.märtsil 2026 korraldusega nr 54 Kolga aleviku Mõisa allee 2/3 (35203:002:0120) kinnistu detailplaneeringu ja kinnitas lähteülesande.   ...

Kolga aleviku Mõisa allee 2/3 kinnistu detailplaneeringu algatamine ja lähteülesande kinnitamine

Kuusalu Vallavalitsus teatab, et algatas 5.märtsil 2026 korraldusega nr 54 Kolga aleviku Mõisa allee 2/3 (35203:002:0120) kinnistu detailplaneeringu ja kinnitas lähteülesande.   ...

Ilusat naistepäeva ning soovime, et teil tuleks tore päev!

Head naistepäeva, kallid Kuusalu valla naised!

Ilusat naistepäeva ning soovime, et teil tuleks tore päev!

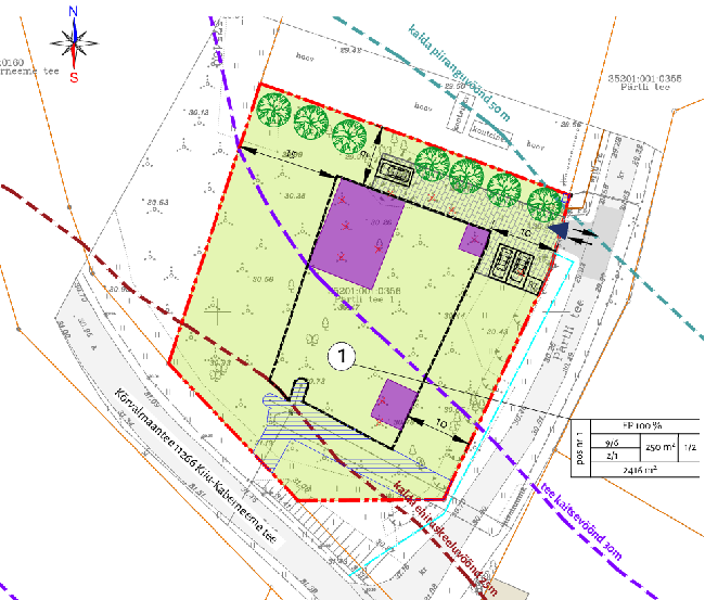
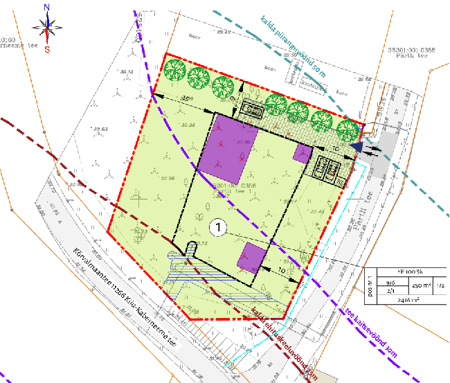
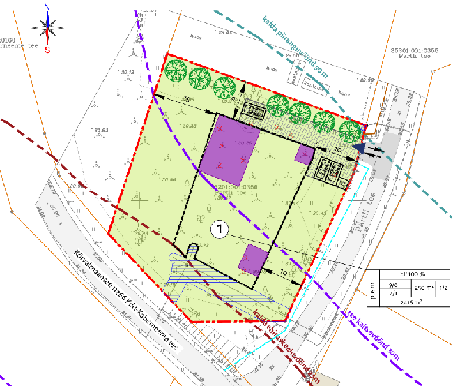
Kuusalu vald sai Keskkonnainvesteeringute Keskuselt 891 644 eurot toetust, et rajada uus, kaasaegne ja keskkonnanõuetele vastav jäätmejaam Kiidu valla maale reoveepuhasti kinnistule. Uus...

Kiidu ehitatakse uus keskkonnasõbralikum jäätmejaam

Kuusalu vald sai Keskkonnainvesteeringute Keskuselt 891 644 eurot toetust, et rajada uus, kaasaegne ja keskkonnanõuetele vastav jäätmejaam Kiidu valla maale reoveepuhasti kinnistule. Uus...

Kroonikafilmi maht on 10-12 episoodi ja kogupikkus ca 60 minutit. Episoodid peavad olema filmitud kvaliteetse videotehnikaga, sisaldama lisaks meeleolu loovatele kaadritele ka teemat puudutavat...

Kuusalu vallavalitsus otsib koostööpartnerit valla 2026. aasta kroonikafilmi tegemiseks

Kroonikafilmi maht on 10-12 episoodi ja kogupikkus ca 60 minutit. Episoodid peavad olema filmitud kvaliteetse videotehnikaga, sisaldama lisaks meeleolu loovatele kaadritele ka teemat puudutavat...

Kutsume kaasa mõtlema ja võtma enda kanda valla olulise ürituse korraldamine, et pakkuda meeleolukat ja meeldejäävat elamust nii vallarahvale kui ka külalistele. Ürituse eelarve on kuni 900...

Ootame taotlusi ürituse „Kuusalu valla laululaps 2026" korraldamiseks

Kutsume kaasa mõtlema ja võtma enda kanda valla olulise ürituse korraldamine, et pakkuda meeleolukat ja meeldejäävat elamust nii vallarahvale kui ka külalistele. Ürituse eelarve on kuni 900...

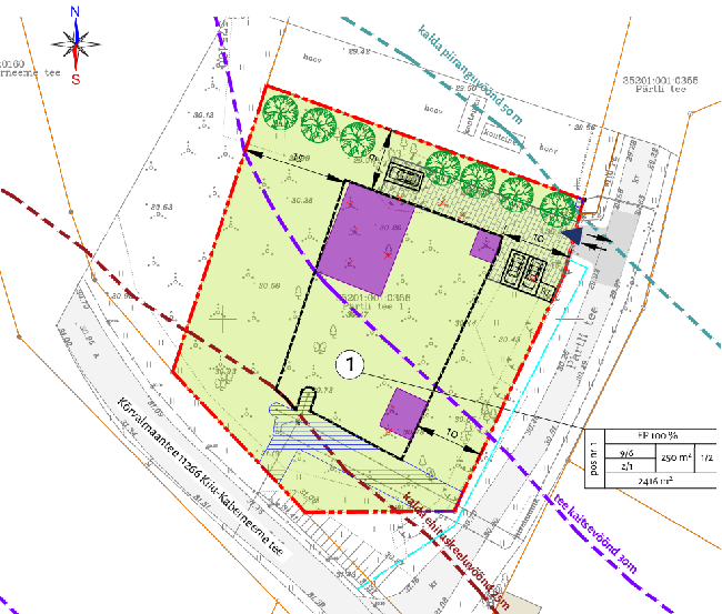
Kuusalu Vallavalitsus teatab, et algatas 26.veebruaril 2026 korraldusega nr 48 Sõitme küla Leegiranna tee 15 (35201:002:0608) kinnistu detailplaneeringu ja kinnitas lähteülesande. ...

Sõitme küla Leegiranna tee 15 kinnistu ja selle lähiala detailplaneeringu algatamine ja lähteülesande kinnitamine

Kuusalu Vallavalitsus teatab, et algatas 26.veebruaril 2026 korraldusega nr 48 Sõitme küla Leegiranna tee 15 (35201:002:0608) kinnistu detailplaneeringu ja kinnitas lähteülesande. ...

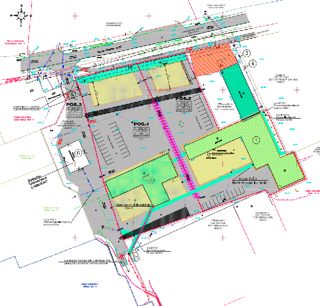
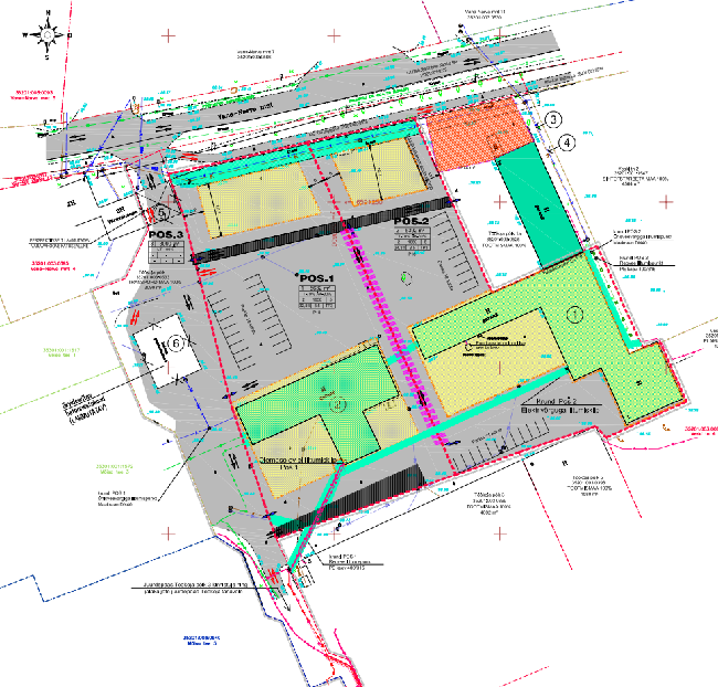
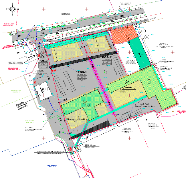
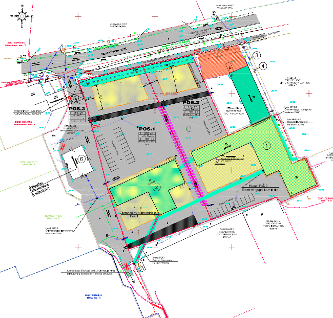
Kuusalu Vallavalitsus teatab, et kehtestas 26.veebruaril 2026 korraldusega nr 46 Kiiu aleviku Töökoja põik 1 kinnistu (35201:003:0524) detailplaneeringu.   Töökoja põik 1...

Kiiu aleviku Töökoja põik 1 kinnistu ja selle lähiala detailplaneeringu kehtestamine

Kuusalu Vallavalitsus teatab, et kehtestas 26.veebruaril 2026 korraldusega nr 46 Kiiu aleviku Töökoja põik 1 kinnistu (35201:003:0524) detailplaneeringu.   Töökoja põik 1...

Korteriühistutele luuakse ka 2026. aastal taotlusvoor, kust küsida toetust mobiilsete või statsionaarsete generaatorite ostmiseks. Taotlusvoor valmistatakse ette ja viiakse läbi koostöös Riigi...

Eelteade: korteriühistutel tekib võimalus taotleda toetust generaatori ostmiseks

Korteriühistutele luuakse ka 2026. aastal taotlusvoor, kust küsida toetust mobiilsete või statsionaarsete generaatorite ostmiseks. Taotlusvoor valmistatakse ette ja viiakse läbi koostöös Riigi...

Ilusat kevadkuu algust! Vaatame üle, kuhu minna ja mida teha järgneva nädala jooksul Kuusalu vallas. Neljapäeval, 5. märtsil Kell 11 Kuusalu rahvamajas teatrietendus „Koleda tüdruku...

ÜRITUSED Kuusalu vallas 4.-11. märtsil

Ilusat kevadkuu algust! Vaatame üle, kuhu minna ja mida teha järgneva nädala jooksul Kuusalu vallas. Neljapäeval, 5. märtsil Kell 11 Kuusalu rahvamajas teatrietendus „Koleda tüdruku...

Programmi eesmärk on tugevate ja omaalgatusel põhinevate kogukondade tekkimine ja püsimine. Programmi eesmärgi saavutamiseks elluviidavaid tegevusi toetatakse kahe meetme kaudu. Meede...

Avanes Kohaliku Omaalgatuse Programmi (KOP) kevadvoor

Programmi eesmärk on tugevate ja omaalgatusel põhinevate kogukondade tekkimine ja püsimine. Programmi eesmärgi saavutamiseks elluviidavaid tegevusi toetatakse kahe meetme kaudu. Meede...

MTÜ Arenduskoda rahastab 2026. aastal ESF+ fondist  projekti meetmest 4.1 „Sotsiaalne kaasatus kogukondades" kahte Kuusalu vallavalitsuse projekti „Kuusalu valla eakate ühisvõimlemine" ja...

Eakatele suunatud projektide tegevused

MTÜ Arenduskoda rahastab 2026. aastal ESF+ fondist  projekti meetmest 4.1 „Sotsiaalne kaasatus kogukondades" kahte Kuusalu vallavalitsuse projekti „Kuusalu valla eakate ühisvõimlemine" ja...

Infoks bussireisijatele - maakonnaliinide bussisõitude hind tõuseb alates 16. märtsist Üksiksõidu hind tõuseb enamasti 10–20 sendi võrra ning 30 päeva piletite hind 1–3 euro võrra. ...

Maakonnaliinide bussipileti hind tõuseb alates 16. märtsist

Infoks bussireisijatele - maakonnaliinide bussisõitude hind tõuseb alates 16. märtsist Üksiksõidu hind tõuseb enamasti 10–20 sendi võrra ning 30 päeva piletite hind 1–3 euro võrra. ...

Näitan: 1-20
Elemente lehe kohta20
of 133