Uudised ja teated

Orienteerumismäng "Kuusalu kõnnib ringi" on kestunud juba kaks nädalat ning 17 ringi üle kogu Kuusalu valla on saanud arvukalt samme. Meiega on liitunud 104 mängijat ning nendest kaks...

Orienteerumismäng "Kuusalu kõnnib ringi" on kestnud juba 2 nädalat

Orienteerumismäng "Kuusalu kõnnib ringi" on kestunud juba kaks nädalat ning 17 ringi üle kogu Kuusalu valla on saanud arvukalt samme. Meiega on liitunud 104 mängijat ning nendest kaks...

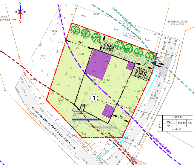
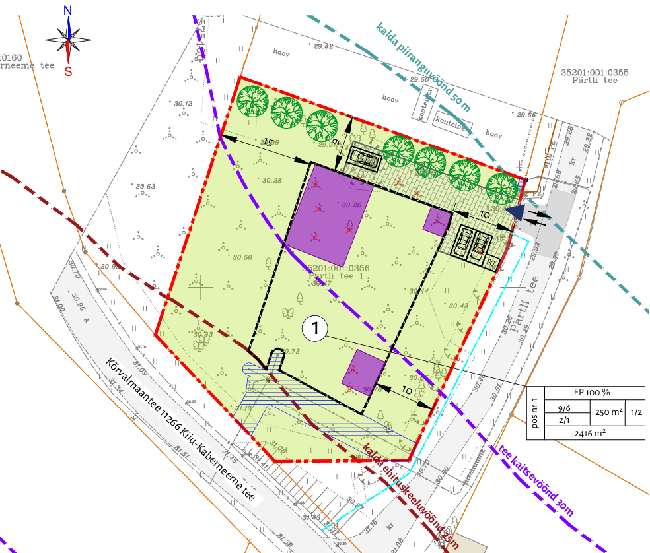
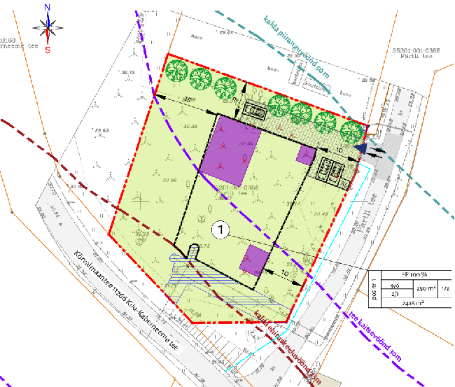
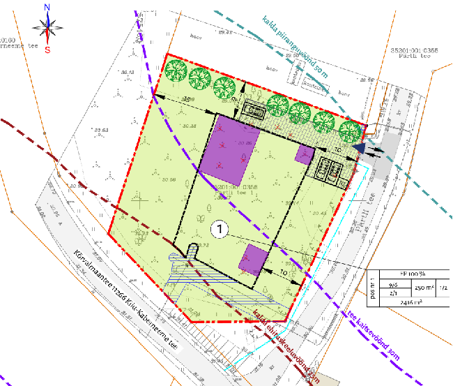
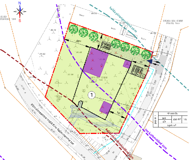
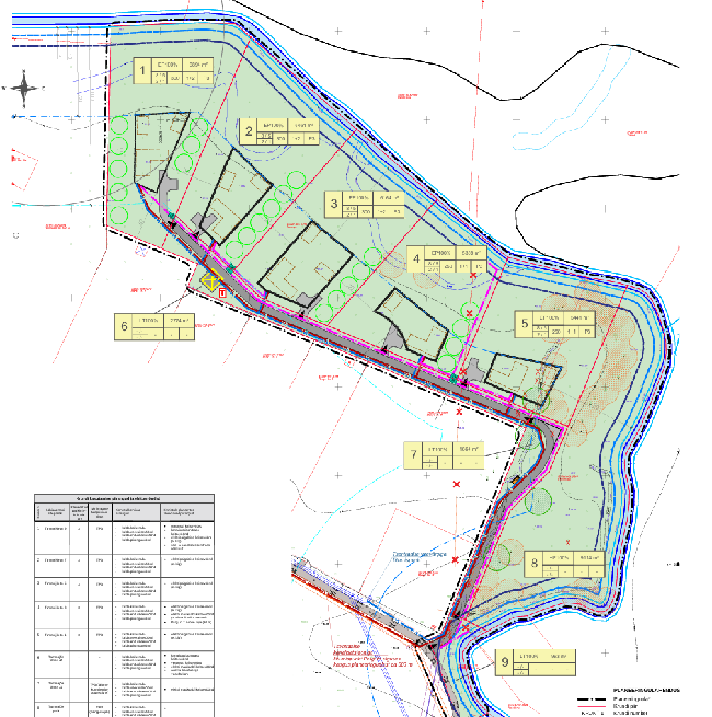
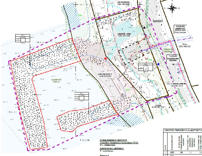
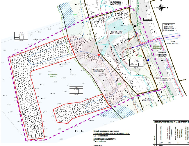
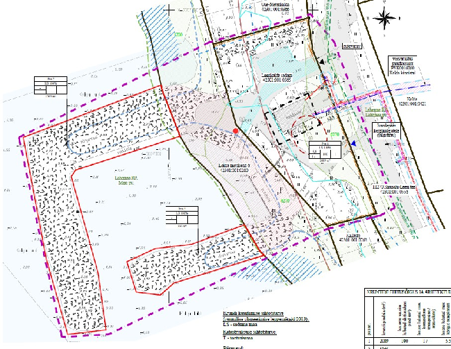
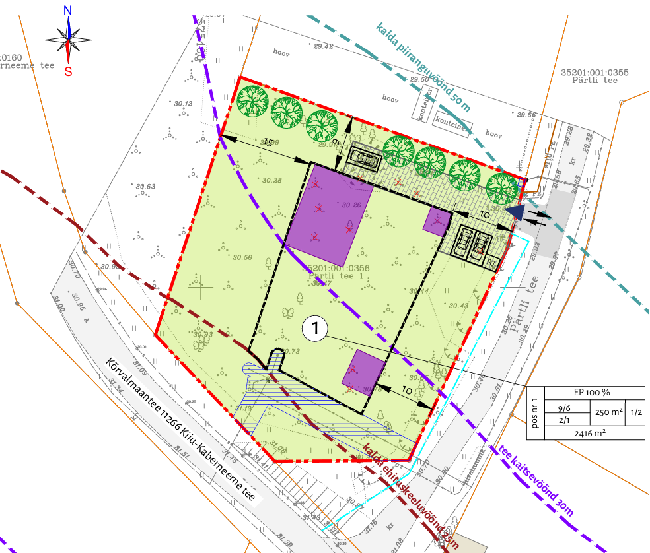
Kuusalu Vallavalitsus teatab, et algatas 12.detsembril 2024 korraldusega nr 337 Kiiu aleviku Lääne (35201:003:0113) kinnistu detailplaneeringu ja kinnitas lähteülesande. Detailplaneeringu...

Kiiu aleviku Lääne kinnistu detailplaneeringu eskiislahenduse tutvustus

Kuusalu Vallavalitsus teatab, et algatas 12.detsembril 2024 korraldusega nr 337 Kiiu aleviku Lääne (35201:003:0113) kinnistu detailplaneeringu ja kinnitas lähteülesande. Detailplaneeringu...

Põllumajandus- ja Toiduamet juhib tähelepanu: Looduses viibija meelespea: kuidas aidata piirata sigade Aafrika katku levikut Kevade saabudes liiguvad inimesed üha rohkem looduses –...

Looduses viibija meelespea: kuidas aidata piirata sigade Aafrika katku levikut

Põllumajandus- ja Toiduamet juhib tähelepanu: Looduses viibija meelespea: kuidas aidata piirata sigade Aafrika katku levikut Kevade saabudes liiguvad inimesed üha rohkem looduses –...

Jõelähtme–Kuusalu laulu- ja tantsupäev toimub tänavu juba 26. korda 30. mail Jägala-Joa külas, Põhjakalda tee 7. Peole kogunevad rahvatantsijad, lauljad ja muusikud Jõelähtme ja Kuusalu vallast....

Jõelähtme-Kuusalu laulu- ja tantsupäev

Jõelähtme–Kuusalu laulu- ja tantsupäev toimub tänavu juba 26. korda 30. mail Jägala-Joa külas, Põhjakalda tee 7. Peole kogunevad rahvatantsijad, lauljad ja muusikud Jõelähtme ja Kuusalu vallast....

Rahvahääletus toimub perioodil 15.05-31.05.2026  ning osaleda kõik vähemalt 16-aastased rahvastikuregistri-järgsed Kuusalu valla elanikud. Hääletuses osalemiseks on vajalik end...

Algas kaasava eelarve rahvahääletus

Rahvahääletus toimub perioodil 15.05-31.05.2026  ning osaleda kõik vähemalt 16-aastased rahvastikuregistri-järgsed Kuusalu valla elanikud. Hääletuses osalemiseks on vajalik end...

Kuusalu vallavalitsus kuulutab välja hanke: Kuusalu valla hoonetes ventilatsiooniseadmete hooldus 1. Hanke nimetus Kuusalu valla hoonetes ventilatsiooniseadmete hooldus ...

Hanketeade - Kuusalu valla hoonetes ventilatsiooniseadmete hooldus

Kuusalu vallavalitsus kuulutab välja hanke: Kuusalu valla hoonetes ventilatsiooniseadmete hooldus 1. Hanke nimetus Kuusalu valla hoonetes ventilatsiooniseadmete hooldus ...

Alates järgmisest teisipäevast, 19. maist kuni 30. maini on Kuusalu valla elanikel võimalik tasuta üle anda Kiiu jäätmejaamas eterniiti. Kuusalu vald sai Keskkonnainvesteeringute Keskuselt...

Kiiu jäätmejaama saab tasuta ära tuua eterniiti

Alates järgmisest teisipäevast, 19. maist kuni 30. maini on Kuusalu valla elanikel võimalik tasuta üle anda Kiiu jäätmejaamas eterniiti. Kuusalu vald sai Keskkonnainvesteeringute Keskuselt...

On aeg heita pilk rikkalikule valikule, mida teha järgneval nädalal Kuusalu vallas. Soovime helget nautimist ja põnevaid elamusi! Foto: "Õhtu Viru rabas", Kuusalu valla fotokonkurss 2025,...

ÜRITUSED Kuusalu vallas 13.-20. mail

On aeg heita pilk rikkalikule valikule, mida teha järgneval nädalal Kuusalu vallas. Soovime helget nautimist ja põnevaid elamusi! Foto: "Õhtu Viru rabas", Kuusalu valla fotokonkurss 2025,...

Baltimaade vanim rahvuspark – Lahemaa – tähistab tänavu oma 55. sünnipäeva sündmustega, mille keskmes on kohalik kogukond, pärandkultuur ja koostöö. Juubeliprogrammi veab Lahemaa Turismiühing. ...

Lahemaa rahvuspark tähistab 55. sünnipäeva Baltimaade koostöökokkuleppe sõlmimisega

Baltimaade vanim rahvuspark – Lahemaa – tähistab tänavu oma 55. sünnipäeva sündmustega, mille keskmes on kohalik kogukond, pärandkultuur ja koostöö. Juubeliprogrammi veab Lahemaa Turismiühing. ...

18. mail toimub Kuusalu Kunstide Koolis lahtiste uste päev. Koolipere ootab kõiki, kes soovivad näha, kuidas mängitakse pilli ja tehakse kunsti, kell 17 ringkäigule. Osalemiseks palutakse...

Lahtiste uste päev Kuusalu Kunstide Koolis

18. mail toimub Kuusalu Kunstide Koolis lahtiste uste päev. Koolipere ootab kõiki, kes soovivad näha, kuidas mängitakse pilli ja tehakse kunsti, kell 17 ringkäigule. Osalemiseks palutakse...

Kolga lasteaed tähistab tänavu 60. sünnipäeva ning selle auks soovivad nad valmistada lipu, mille jaoks ootavad neilt, kes soovivad ettevõtmist toetada, annetusi: Kuusalu vallavalitsus ...

Kolga lasteaed loob juubeliks oma lipu

Kolga lasteaed tähistab tänavu 60. sünnipäeva ning selle auks soovivad nad valmistada lipu, mille jaoks ootavad neilt, kes soovivad ettevõtmist toetada, annetusi: Kuusalu vallavalitsus ...

MTÜ Arenduskoda projekti meetmest 4.1 „Sotsiaalne kaasatus kogukondades" toetatud eakate ühisvõimlemise ajad on sellel ja järgmisel nädalal muutunud: Kiiu Kiigepõnni lasteaed 22.05 jääb...

Muudatused eakate võimlemise aegades

MTÜ Arenduskoda projekti meetmest 4.1 „Sotsiaalne kaasatus kogukondades" toetatud eakate ühisvõimlemise ajad on sellel ja järgmisel nädalal muutunud: Kiiu Kiigepõnni lasteaed 22.05 jääb...

1. Hanke nimetus Kuusalu Keskkooli spordikeskuse ujula mullivanni vahetus Hankemenetluse liik Ehitustööd, alla lihthanke piirmäära jääv hange (edaspidi hange või hanke) Hankija ...

Hanketeade: Kuusalu spordikeskuse ujula mullivanni vahetus

1. Hanke nimetus Kuusalu Keskkooli spordikeskuse ujula mullivanni vahetus Hankemenetluse liik Ehitustööd, alla lihthanke piirmäära jääv hange (edaspidi hange või hanke) Hankija ...

5. mail Kuusalu rahvamajas osalesid valla lauluvõistlusel 36 solisti. Igast vanuserühmast hinnati ja anti välja I-III koht, kahele parimale tagati žürii otsusega edasipääs maakondlikule...

Kuusalu valla laste lauluvõistluse tulemused on selgunud

5. mail Kuusalu rahvamajas osalesid valla lauluvõistlusel 36 solisti. Igast vanuserühmast hinnati ja anti välja I-III koht, kahele parimale tagati žürii otsusega edasipääs maakondlikule...

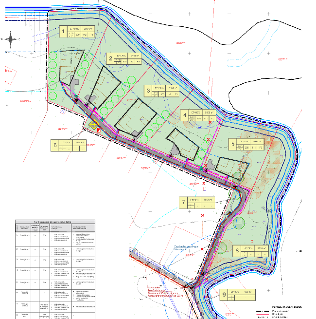
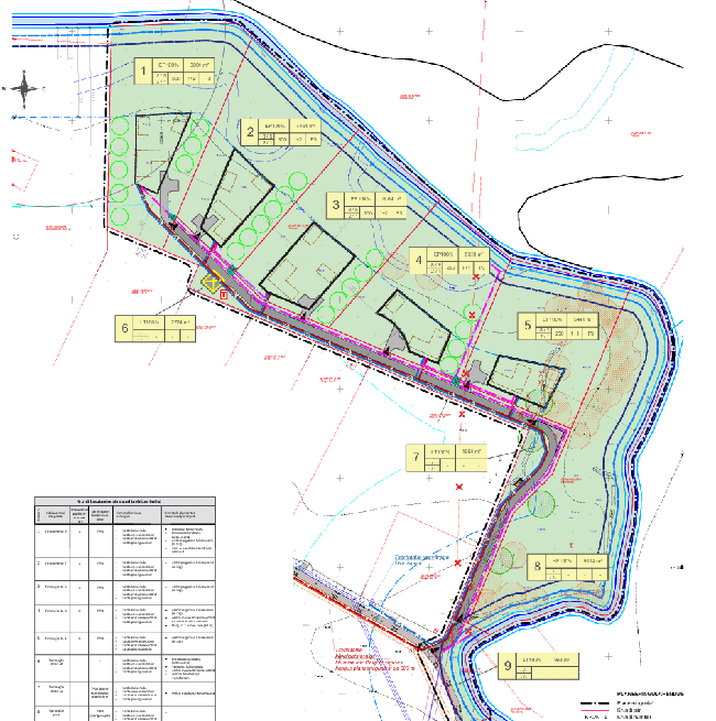
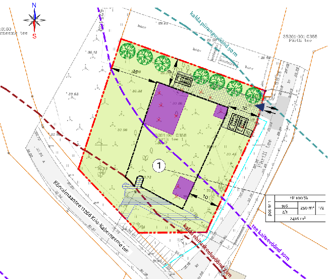
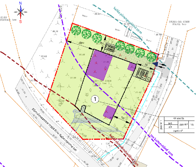
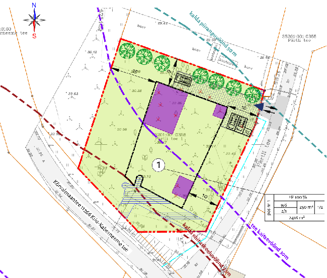
Anname teada, et Kuusalu Vallavalitsuse 07.mai 2026 korraldusega nr 141 võeti vastu Kolga-Aabla küla Lemeti kinnistu (42301:001:0283) detailplaneering. Detailplaneeringu avaliku väljapaneku...

Kolga-Aabla küla Lemeti kinnistu detailplaneeringu avalik väljapanek

Anname teada, et Kuusalu Vallavalitsuse 07.mai 2026 korraldusega nr 141 võeti vastu Kolga-Aabla küla Lemeti kinnistu (42301:001:0283) detailplaneering. Detailplaneeringu avaliku väljapaneku...

Kuusalu vald osaleb MTÜ Arenduskoda piirkonna kogukondade arenguprogrammis ning eile, 6. mail toimus koostööprojekti „Viru Leader võrgustiku tugevdamine" kohtumine Kiiu mõisas. Külas olid...

Koostööprojekti „Viru Leader võrgustiku tugevdamine“ kohtumine Kiiu mõisas

Kuusalu vald osaleb MTÜ Arenduskoda piirkonna kogukondade arenguprogrammis ning eile, 6. mail toimus koostööprojekti „Viru Leader võrgustiku tugevdamine" kohtumine Kiiu mõisas. Külas olid...

Soovime ilusaid elamusi ja meeldejäävaid hetki koduvallas! Foto: "Peegeldus", Kuusalu valla fotokonkurss 2024, autor Andrei Belošapkin Kolmapäeval, 6. mail Kell 18 Kuusalu...

ÜRITUSED Kuusalu vallas 6.-13. mail

Soovime ilusaid elamusi ja meeldejäävaid hetki koduvallas! Foto: "Peegeldus", Kuusalu valla fotokonkurss 2024, autor Andrei Belošapkin Kolmapäeval, 6. mail Kell 18 Kuusalu...

Valminud on Kuusalu valla kliima- ja energiakava. Selleks, et anda kavast parem ülevaade, kutsume kõiki huvilisi Kuusalu valla kliima- ja energiakava seminarile, mis toimub Kuusalu...

Kuusalu valla kliima- ja energiakava tutvustav seminar

Valminud on Kuusalu valla kliima- ja energiakava. Selleks, et anda kavast parem ülevaade, kutsume kõiki huvilisi Kuusalu valla kliima- ja energiakava seminarile, mis toimub Kuusalu...

Kuusalu vallavalitsuses asus raamatupidajana tööle Kairit Korolkova Täna, 4. mail on esimene tööpäev Kairit Korolkoval, kes asus tööle Külli Schmidti asemel. Kairit on Kuusalu valla...

Kuusalu vallavalitsuses asus raamatupidajana tööle Kairit Korolkova

Kuusalu vallavalitsuses asus raamatupidajana tööle Kairit Korolkova Täna, 4. mail on esimene tööpäev Kairit Korolkoval, kes asus tööle Külli Schmidti asemel. Kairit on Kuusalu valla...

Maikuu toob pidustused Kolga lasteaeda - viie rühmaga looduslähedane lasteaed keset Lahemaa rahvusparki tähistab väärikat juubelit. Kolga lasteaia ametlikuks sünnikuupäevaks peetakse 1. maid...

Palju õnne - Kolga lasteaed 60

Maikuu toob pidustused Kolga lasteaeda - viie rühmaga looduslähedane lasteaed keset Lahemaa rahvusparki tähistab väärikat juubelit. Kolga lasteaia ametlikuks sünnikuupäevaks peetakse 1. maid...

Näitan: 1-20
Elemente lehe kohta20
of 138