Uudised ja teated

Kuusalu vallavalitsus kinnitas 19. märtsi istungil tänavuse külarahade jaotuse. Kuusalu vallas on 67 küla, millest 1.01.2026 seisuga on külavanem 48 külal. Külarahade kogusummast pool...

Külarahade jaotus 2026. aasta eelarvest

Kuusalu vallavalitsus kinnitas 19. märtsi istungil tänavuse külarahade jaotuse. Kuusalu vallas on 67 küla, millest 1.01.2026 seisuga on külavanem 48 külal. Külarahade kogusummast pool...

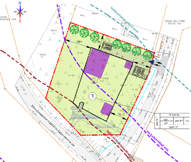
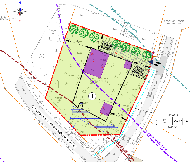
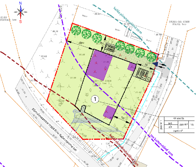
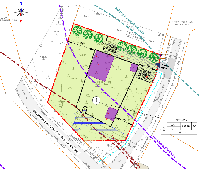
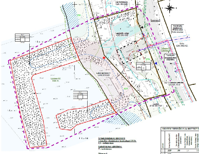
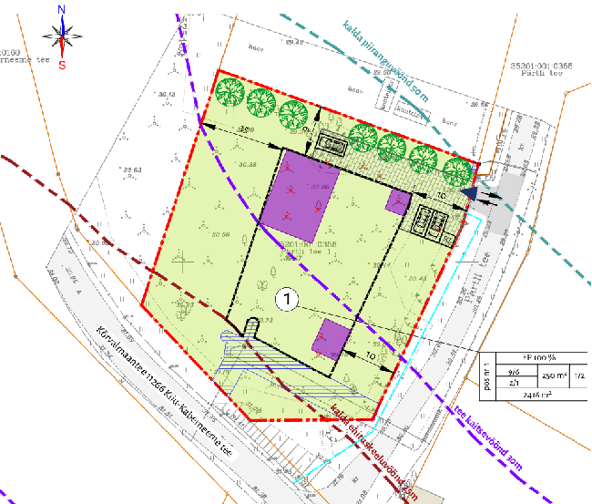
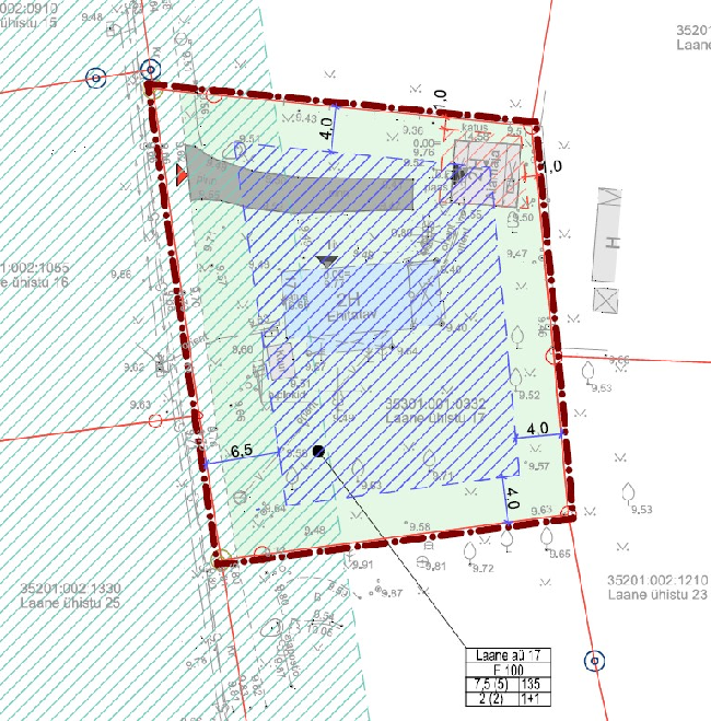
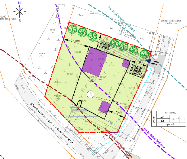
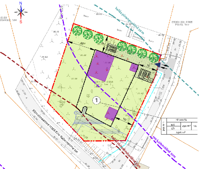
Kuusalu Vallavalitsusele on esitatud projekteerimistingimuste taotlus Sõitme küla Leegiranna tee 1 kinnistu detailplaneeringu tingimuste täpsustamiseks. Ehitusseadustiku § 31 lõike 1 alusel...

Detailplaneeringut täpsustavate projekteerimistingimuste andmine Sõitme küla Leegiranna tee 1 kinnistule hoonestusala suurendamiseks

Kuusalu Vallavalitsusele on esitatud projekteerimistingimuste taotlus Sõitme küla Leegiranna tee 1 kinnistu detailplaneeringu tingimuste täpsustamiseks. Ehitusseadustiku § 31 lõike 1 alusel...

Kuusalu vallavalitsus kuulutab välja hanke, et leida Jõelähtme ja Kuusalu valla laulu- ja tantsupäeval (30.05 Jägala Joal) osalevatele Kuusalu valla kollektiividele transporditeenuse pakkuja. ...

Hanketeade: Jõelähtme ja Kuusalu valla laulu- ja tantsupäeval osalevate kollektiivide transport

Kuusalu vallavalitsus kuulutab välja hanke, et leida Jõelähtme ja Kuusalu valla laulu- ja tantsupäeval (30.05 Jägala Joal) osalevatele Kuusalu valla kollektiividele transporditeenuse pakkuja. ...

Vaatame üle, mida teha ja kuhu minna Kuusalu vallas. Ärgem laskem end jahedamast ilmast heidutada - paari päeva pärast algab ametlikult kevad! Foto: "Luiged Pudisoo rannas", Kuusalu valla...

ÜRITUSED Kuusalu vallas 18.-25. märtsil

Vaatame üle, mida teha ja kuhu minna Kuusalu vallas. Ärgem laskem end jahedamast ilmast heidutada - paari päeva pärast algab ametlikult kevad! Foto: "Luiged Pudisoo rannas", Kuusalu valla...

Päästeamet testib kolmapäeval, 18. märtsil 2026 ohuteavituse süsteemi EE-ALARM. Ajavahemikus kell 15–15.10 saadetakse välja äpiteavitused Eesti äpis ning „Ole valmis!" rakenduses, edastakse...

Päästeamet testib täna ohuteavitust

Päästeamet testib kolmapäeval, 18. märtsil 2026 ohuteavituse süsteemi EE-ALARM. Ajavahemikus kell 15–15.10 saadetakse välja äpiteavitused Eesti äpis ning „Ole valmis!" rakenduses, edastakse...

Kutsume kõiki meenutama märtsiküüditamise 77. aastapäeva kolmapäeval, 25. märtsil kell 11.30 Kuusalu kalmistul okupatsiooniohvrite mälestuskivi juures ja seejärel keskväljakul telefoni kujutava...

Kutse meenutama märtsiküüditamise ohvreid

Kutsume kõiki meenutama märtsiküüditamise 77. aastapäeva kolmapäeval, 25. märtsil kell 11.30 Kuusalu kalmistul okupatsiooniohvrite mälestuskivi juures ja seejärel keskväljakul telefoni kujutava...

Kuusalu vallavalitsus kutsub osalema hankel "Valla avalike platside ja teeservade niitmine 2026". Hankemenetluse liik: teenustööd, alla lihthanke piirmäära jääv hange Hanke teostamise...

Hankekutse: Kuusalu valla avalike platside ja teeäärte niitmine

Kuusalu vallavalitsus kutsub osalema hankel "Valla avalike platside ja teeservade niitmine 2026". Hankemenetluse liik: teenustööd, alla lihthanke piirmäära jääv hange Hanke teostamise...

Kuusalu vallavalitsus otsib Salmistu sadamahoonesse (Sadama tee 26, Salmistu küla, Kuusalu vald) toitlusteenuse osutajat. Toitlusteenuse osutamise leping sõlmitakse üheks aastaks,...

Kuusalu vallavalitsus otsib Salmistu sadamasse toitlustajat

Kuusalu vallavalitsus otsib Salmistu sadamahoonesse (Sadama tee 26, Salmistu küla, Kuusalu vald) toitlusteenuse osutajat. Toitlusteenuse osutamise leping sõlmitakse üheks aastaks,...

Vihasoo küla kutsub külavanema valimise koosolekule laupäeval, 21. märtsil kell 18 Vihasoo rahvamajas . Päevakorras: Ülevaade küla rahadest ja külaraha kasutamisest ...

Vihasoo külakoosolek ja uue külavanema valimine

Vihasoo küla kutsub külavanema valimise koosolekule laupäeval, 21. märtsil kell 18 Vihasoo rahvamajas . Päevakorras: Ülevaade küla rahadest ja külaraha kasutamisest ...

Kuu lõpus avaneb SA Kodanikuühiskonna Sihtkapital kogukonnafondi taotlusvooru, mille eesmärk on suurendada kogukondade valmisolekut kriisiolukordadeks ja tugevdada kogukondlikku koostööd. ...

KÜSK korraldab kogukonnafondi taotlusvooru infotunni

Kuu lõpus avaneb SA Kodanikuühiskonna Sihtkapital kogukonnafondi taotlusvooru, mille eesmärk on suurendada kogukondade valmisolekut kriisiolukordadeks ja tugevdada kogukondlikku koostööd. ...

Edastame teate: Lugupeetud Kahala küla elanikud! Kutsume kokku külaelanike koosoleku vastavalt Kuusalu valla külavanema statuudile. Aeg: Pühapäev, 29. märts kell 17 Koht: Kolga...

Kahala elanikke oodatakse külakoosolekule

Edastame teate: Lugupeetud Kahala küla elanikud! Kutsume kokku külaelanike koosoleku vastavalt Kuusalu valla külavanema statuudile. Aeg: Pühapäev, 29. märts kell 17 Koht: Kolga...

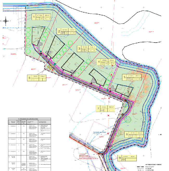
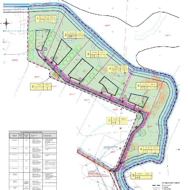
Anname teada, et Kuusalu Vallavalitsuse 18.detsembri 2025 korraldusega nr 358 võeti vastu Kuusalu alevik Kuusalu tee 41 (35201:004:0039), Kuusalu tee 43 (35201:004:0064) ja Tehnika tänava...

Kuusalu aleviku Kuusalu tee 41, Kuusalu tee 43 ja Tehnika tänava kinnistute ning lähiala detailplaneeringu avaliku väljapaneku järgne avaliku arutelu muutuse teade

Anname teada, et Kuusalu Vallavalitsuse 18.detsembri 2025 korraldusega nr 358 võeti vastu Kuusalu alevik Kuusalu tee 41 (35201:004:0039), Kuusalu tee 43 (35201:004:0064) ja Tehnika tänava...

Kuusalu vallavalitsus kinnitas 12. märtsi istungil toetuse projektidele: Kogukonnavaldkonnas: Kahala Järve Külade Selts sai Liiva Laada korraldamiseks 1200 eurot MTÜ Kuusalu...

Projektitoetuste rahastamine Kuusalu valla eelarvest

Kuusalu vallavalitsus kinnitas 12. märtsi istungil toetuse projektidele: Kogukonnavaldkonnas: Kahala Järve Külade Selts sai Liiva Laada korraldamiseks 1200 eurot MTÜ Kuusalu...

Kuusalu vallavalitsus kinnitas 12. märtsi istungil mittetulundussektori toetused. Mittetulundussektori toetused: Kolga seenioride seltsingule seenioride huvitegevuseks 2 700 eurot ...

Mittetulundussektori toetamine Kuusalu valla eelarvest

Kuusalu vallavalitsus kinnitas 12. märtsi istungil mittetulundussektori toetused. Mittetulundussektori toetused: Kolga seenioride seltsingule seenioride huvitegevuseks 2 700 eurot ...

Kuusalu vallavalitsus kinnitas 12. märtsi istungil Kuusalu valla 2026. aasta eelarvest toetatavate  rahvakultuuriringide toetussummad:   MTÜ Vihasoo Kultuuriselts saab...

Rahvakultuuriringide toetused

Kuusalu vallavalitsus kinnitas 12. märtsi istungil Kuusalu valla 2026. aasta eelarvest toetatavate  rahvakultuuriringide toetussummad:   MTÜ Vihasoo Kultuuriselts saab...

Kuusalu vallavalitsus kinnitas 12. märtsi istungil valla andekate noorsportlaste toetused ja spordi treeningrühmade toetused. Valla 2026. aasta eelarves on andekate sportlaste toetuseks 5000...

Andekate sportlaste ja spordi treeningrühmade toetused

Kuusalu vallavalitsus kinnitas 12. märtsi istungil valla andekate noorsportlaste toetused ja spordi treeningrühmade toetused. Valla 2026. aasta eelarves on andekate sportlaste toetuseks 5000...

Kaunitel kevadpäevadel toimub Kuusalu vallas taaskord nii mõndagi huvitavat! Kolmapäeval, 11. märtsil Kell 14.15 Kuusalu raamatukogus arvutikasutamise tasuta koolitus täiskasvanutele ...

ÜRITUSED Kuusalu vallas 11.-18. märtsil

Kaunitel kevadpäevadel toimub Kuusalu vallas taaskord nii mõndagi huvitavat! Kolmapäeval, 11. märtsil Kell 14.15 Kuusalu raamatukogus arvutikasutamise tasuta koolitus täiskasvanutele ...

Kuusalu Keskkoolis on uued prügisorteerimisjaamad, mille soetamist toetas Keskkonnainvesteeringute Keskus. Liigiti kogumine õpetab jäätmeid õigesti sorteerima. Varases eas omandatud harjumus...

Kuusalu Keskkoolis on uued prügisorteerimisjaamad

Kuusalu Keskkoolis on uued prügisorteerimisjaamad, mille soetamist toetas Keskkonnainvesteeringute Keskus. Liigiti kogumine õpetab jäätmeid õigesti sorteerima. Varases eas omandatud harjumus...

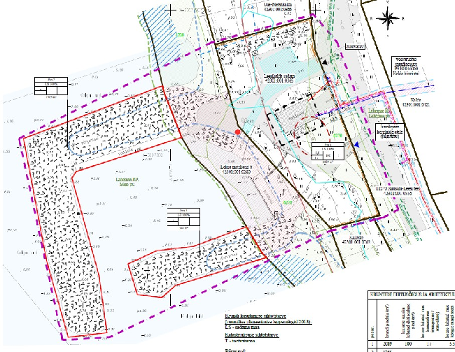
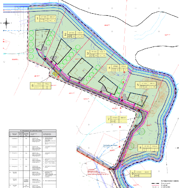
Kuusalu Vallavalitsus teatab, et algatas 5.märtsil 2026 korraldusega nr 53 Kolga aleviku Kooli (35203:002:0219) ja Vana-Vallamaja (35203:002:0218) kinnistute detailplaneeringu ja kinnitas...

Kolga aleviku Kooli ja Vana-Vallamaja kinnistute ja lähiala detailplaneeringu algatamine ja lähteülesande kinnitamine

Kuusalu Vallavalitsus teatab, et algatas 5.märtsil 2026 korraldusega nr 53 Kolga aleviku Kooli (35203:002:0219) ja Vana-Vallamaja (35203:002:0218) kinnistute detailplaneeringu ja kinnitas...

Kuusalu Vallavalitsus teatab, et algatas 5.märtsil 2026 korraldusega nr 54 Kolga aleviku Mõisa allee 2/3 (35203:002:0120) kinnistu detailplaneeringu ja kinnitas lähteülesande.   ...

Kolga aleviku Mõisa allee 2/3 kinnistu detailplaneeringu algatamine ja lähteülesande kinnitamine

Kuusalu Vallavalitsus teatab, et algatas 5.märtsil 2026 korraldusega nr 54 Kolga aleviku Mõisa allee 2/3 (35203:002:0120) kinnistu detailplaneeringu ja kinnitas lähteülesande.   ...

Näitan: 1-20
Elemente lehe kohta20
of 134