Kuusalu Vallavalitsus teatab, et algatas 12.detsembril 2024 korraldusega nr 336 Kaberla küla Tärdavälja kinnistu (35201:001:0105) detailplaneeringu ja kinnitas lähteülesande.   ...

Kaberla küla Tärdavälja kinnistu detailplaneeringu algatamine ja lähteülesande kinnitamine

Kuusalu Vallavalitsus teatab, et algatas 12.detsembril 2024 korraldusega nr 336 Kaberla küla Tärdavälja kinnistu (35201:001:0105) detailplaneeringu ja kinnitas lähteülesande.   ...

Kuusalu Vallavalitsus teatab, et algatas 12.detsembril 2024 korraldusega nr 338 Sõitme küla Liivametsa kinnistu (35301:001:0930) detailplaneeringu ja kinnitas lähteülesande.   ...

Sõitme küla Liivametsa kinnistu detailplaneeringu algatamine ja lähteülesande kinnitamine

Kuusalu Vallavalitsus teatab, et algatas 12.detsembril 2024 korraldusega nr 338 Sõitme küla Liivametsa kinnistu (35301:001:0930) detailplaneeringu ja kinnitas lähteülesande.   ...

Kuusalu Vallavalitsus teatab, et algatas 12.detsembril 2024 korraldusega nr 337 Kiiu aleviku Lääne kinnistu (35201:003:0113) detailplaneeringu ja kinnitas lähteülesande.   ...

Kiiu aleviku Lääne kinnistu detailplaneeringu algatamine ja lähteülesande kinnitamine

Kuusalu Vallavalitsus teatab, et algatas 12.detsembril 2024 korraldusega nr 337 Kiiu aleviku Lääne kinnistu (35201:003:0113) detailplaneeringu ja kinnitas lähteülesande.   ...

Kuusalu Vallavalitsus teatab, et algatas 18.jaanuaril 2024 korraldusega nr 11 Kuusalu aleviku Kuusalu tee 19 (35201:004:1860) kinnistu detailplaneeringu ja kinnitas lähteülesande....

Kuusalu aleviku Kuusalu tee 19 kinnistu detailplaneeringu eskiislahenduse tutvustus

Kuusalu Vallavalitsus teatab, et algatas 18.jaanuaril 2024 korraldusega nr 11 Kuusalu aleviku Kuusalu tee 19 (35201:004:1860) kinnistu detailplaneeringu ja kinnitas lähteülesande....

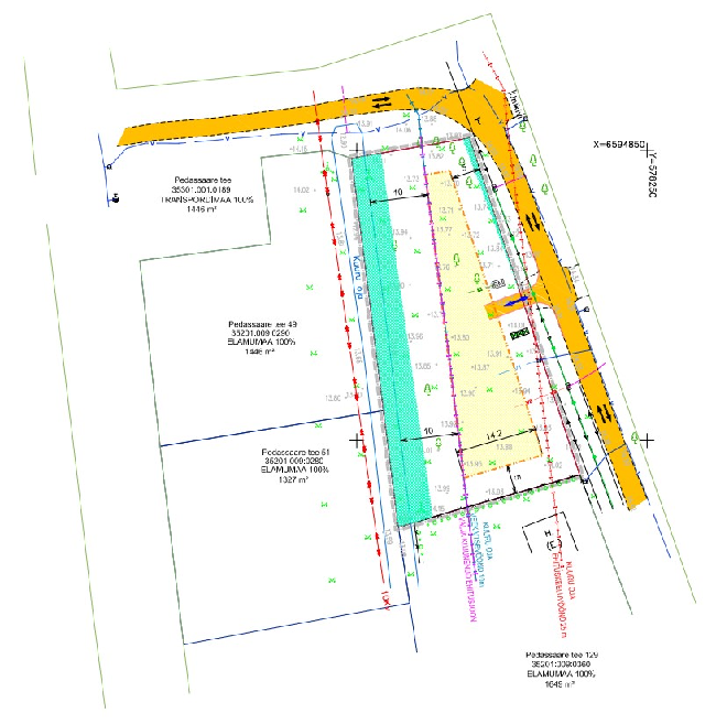
Kuusalu Vallavalitsus teatab, et algatas 23.mail 2024 korraldusega nr 137 Salmistu küla Pedassaare tee 131 (35201:009:0008) kinnistu detailplaneeringu ja kinnitas lähteülesande....

Salmistu küla Pedassaare tee 131 detailplaneeringu kinnistu eskiislahenduse tutvustus

Kuusalu Vallavalitsus teatab, et algatas 23.mail 2024 korraldusega nr 137 Salmistu küla Pedassaare tee 131 (35201:009:0008) kinnistu detailplaneeringu ja kinnitas lähteülesande....

Kuusalu Vallavalitsus teatab, et algatas 28.novembril 2024 korraldusega nr 323 Sõitme küla Sõlme põik 1 (35301:001:1774), Sõlme põik 2 (35301:001:1780), Sõlme põik 3 (35301:001:1775), Sõlme põik...

Sõitme küla Sõlme põik 1, 2, 3, 4, 5, 6, 7, Sõlme tee 6, 8, 10, 12 ning Sõlme tee L1 ja Sõlme tee L2 kinnistute detailplaneeringu algatamine ja lähteülesande kinnitamine

Kuusalu Vallavalitsus teatab, et algatas 28.novembril 2024 korraldusega nr 323 Sõitme küla Sõlme põik 1 (35301:001:1774), Sõlme põik 2 (35301:001:1780), Sõlme põik 3 (35301:001:1775), Sõlme põik...

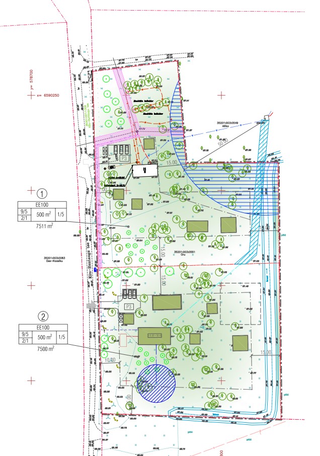
Kuusalu Vallavalitsus teatab, et kehtestas 14.novembril 2024 korraldusega nr 314 Kiiu aleviku Oru (35201:003:0551) kinnistu detailplaneeringu.   ...

Kiiu aleviku Oru kinnistu detailplaneeringu kehtestamine

Kuusalu Vallavalitsus teatab, et kehtestas 14.novembril 2024 korraldusega nr 314 Kiiu aleviku Oru (35201:003:0551) kinnistu detailplaneeringu.   ...

Anname teada, et Kuusalu Vallavalitsuse 24.oktoobri 2024 korraldusega nr 292 võeti vastu Tapurla küla Uue-Andi kinnistu (42301:001:0763)  detailplaneering. Detailplaneeringu avaliku...

Tapurla küla Uue-Andi kinnistu detailplaneeringu avalik väljapanek

Anname teada, et Kuusalu Vallavalitsuse 24.oktoobri 2024 korraldusega nr 292 võeti vastu Tapurla küla Uue-Andi kinnistu (42301:001:0763)  detailplaneering. Detailplaneeringu avaliku...

Kuusalu Vallavalitsus teatab, et algatas 31.oktoobril 2024 korraldusega nr 298 Kuusalu küla Tarva põik 3 kinnistu (35201:002:1530) detailplaneeringu ja kinnitas lähteülesande.   ...

Kuusalu küla Tarva põik 3 kinnistu detailplaneeringu algatamine ja lähteülesande kinnitamine

Kuusalu Vallavalitsus teatab, et algatas 31.oktoobril 2024 korraldusega nr 298 Kuusalu küla Tarva põik 3 kinnistu (35201:002:1530) detailplaneeringu ja kinnitas lähteülesande.   ...

Kuusalu Vallavalitsus teatab, et 29.juunil 2023 korraldusega nr 298 algatas Kuusalu Vallavalitsus Salmistu küla Päikesemetsa (35201:002:0048) kinnistu detailplaneeringu ja kinnitas...

Salmistu küla Päikesemetsa kinnistu detailplaneeringu eskiislahenduse tutvustus

Kuusalu Vallavalitsus teatab, et 29.juunil 2023 korraldusega nr 298 algatas Kuusalu Vallavalitsus Salmistu küla Päikesemetsa (35201:002:0048) kinnistu detailplaneeringu ja kinnitas...

Kuusalu Vallavalitsus teatab, et kehtestas 17.oktoobril 2024 korraldusega nr 281 Sõitme küla Kalda (35301:001:0729) kinnistu detailplaneeringu   ...

Sõitme küla Kalda kinnistu detailplaneeringu kehtestamine

Kuusalu Vallavalitsus teatab, et kehtestas 17.oktoobril 2024 korraldusega nr 281 Sõitme küla Kalda (35301:001:0729) kinnistu detailplaneeringu   ...

Kuusalu Vallavalitsus teatab, et kehtestas 17.oktoobril 2024 korraldusega nr 278 Sõlme põik 2, 4, 6, 7, Sõlme tee 8, 10, 12 ning Sõlme tee L1 ja Sõlme tee L2 kinnistute detailplaneeringu ...

Sõitme küla Sõlme põik 2, 4, 6, 7, Sõlme tee 8, 10, 12 ning Sõlme tee L1 ja Sõlme tee L2 kinnistute detailplaneeringu kehtestamine

Kuusalu Vallavalitsus teatab, et kehtestas 17.oktoobril 2024 korraldusega nr 278 Sõlme põik 2, 4, 6, 7, Sõlme tee 8, 10, 12 ning Sõlme tee L1 ja Sõlme tee L2 kinnistute detailplaneeringu ...

Kuusalu Vallavalitsus teatab, et kehtestas 17.oktoobril 2024 korraldusega nr 280 Saunja küla Mäe (35201:003:0284) kinnistu detailplaneeringu.   ...

Saunja küla Mäe kinnistu detailplaneeringu kehtestamine

Kuusalu Vallavalitsus teatab, et kehtestas 17.oktoobril 2024 korraldusega nr 280 Saunja küla Mäe (35201:003:0284) kinnistu detailplaneeringu.   ...

Kuusalu Vallavalitsus teatab, et algatas 17.oktoobril 2024 korraldusega nr 279 Kuusalu küla Üraski kinnistu (35301:001:1823) detailplaneeringu ja kinnitas lähteülesande.   ...

Kuusalu küla Üraski kinnistu detailplaneeringu algatamine ja lähteülesande kinnitamine

Kuusalu Vallavalitsus teatab, et algatas 17.oktoobril 2024 korraldusega nr 279 Kuusalu küla Üraski kinnistu (35301:001:1823) detailplaneeringu ja kinnitas lähteülesande.   ...

02.oktoobril kell 17:00 toimus Kuusalu vallavalitsuses Leesi küla Leesiranna kinnistu detailplaneeringu avaliku väljapaneku tulemuste avalik arutelu. Avaliku väljapaneku jooksul laekus üks kiri...

Leesi küla Leesiranna kinnistu detailplaneeringu avaliku väljapaneku järgse avaliku arutelu tulemus

02.oktoobril kell 17:00 toimus Kuusalu vallavalitsuses Leesi küla Leesiranna kinnistu detailplaneeringu avaliku väljapaneku tulemuste avalik arutelu. Avaliku väljapaneku jooksul laekus üks kiri...

Kuusalu Vallavalitsus teatab, et algatas 3.oktoobril 2024 korraldusega nr 261 Kiiu aleviku Oja-Peetri kinnistu (35201:003:0011) detailplaneeringu ja kinnitas lähteülesande.   ...

Kiiu aleviku Oja-Peetri kinnistu detailplaneeringu algatamine ja lähteülesande kinnitamine

Kuusalu Vallavalitsus teatab, et algatas 3.oktoobril 2024 korraldusega nr 261 Kiiu aleviku Oja-Peetri kinnistu (35201:003:0011) detailplaneeringu ja kinnitas lähteülesande.   ...

Anname teada, et Kuusalu Vallavalitsuse 3.oktoobri 2024 korraldusega nr 262 võeti vastu Kiiu aleviku Veski tn 1 kinnistu (35201:003:0750)  detailplaneering. Detailplaneeringu avaliku...

Kiiu aleviku Veski tn 1 kinnistu detailplaneeringu avalik väljapanek

Anname teada, et Kuusalu Vallavalitsuse 3.oktoobri 2024 korraldusega nr 262 võeti vastu Kiiu aleviku Veski tn 1 kinnistu (35201:003:0750)  detailplaneering. Detailplaneeringu avaliku...

Anname teada, et Kuusalu Vallavalitsuse 3.oktoobri 2024 korraldusega nr 260 võeti vastu Kiiu aleviku Oru kinnistu (35201:003:0551)  detailplaneering. Detailplaneeringu avaliku väljapaneku...

Kiiu aleviku Oru kinnistu detailplaneeringu avalik väljapanek

Anname teada, et Kuusalu Vallavalitsuse 3.oktoobri 2024 korraldusega nr 260 võeti vastu Kiiu aleviku Oru kinnistu (35201:003:0551)  detailplaneering. Detailplaneeringu avaliku väljapaneku...

Anname teada, et Kuusalu Vallavolikogu 24.aprilli 2024 korraldusega nr 20 võeti vastu Kaberla küla Lehe kinnistu (35201:001:0297)  detailplaneering. Detailplaneeringu avaliku...

Kaberla küla Lehe kinnistu detailplaneeringu avaliku väljapaneku täiendav teavitus

Anname teada, et Kuusalu Vallavolikogu 24.aprilli 2024 korraldusega nr 20 võeti vastu Kaberla küla Lehe kinnistu (35201:001:0297)  detailplaneering. Detailplaneeringu avaliku...

Kuusalu Vallavalitsus teatab, et algatas 12.septembril 2024 korraldusega nr 238 Valkla küla Pärtli tee 1 (35201:001:0356) kinnistu detailplaneeringu ja kinnitas lähteülesande.   ...

Valkla küla Pärtli tee 1 kinnistu detailplaneeringu algatamine ja lähteülesande kinnitamine

Kuusalu Vallavalitsus teatab, et algatas 12.septembril 2024 korraldusega nr 238 Valkla küla Pärtli tee 1 (35201:001:0356) kinnistu detailplaneeringu ja kinnitas lähteülesande.   ...

Showing 1 - 20 of 81 results.
Items per Page20
of 5