Uudised ja teated
Mäepea küla Liivamaa kinnistu detailplaneeringu eskiislahenduse tutvustus
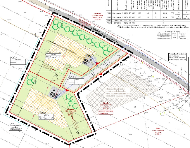
Kuusalu Vallavalitsus teatab, et algatas 13.aprillil 2023 korraldusega nr 147 Mäepea küla Liivamaa (35301:001:1875) kinnistu detailplaneeringu ja kinnitas lähteülesande. Detailplaneeringu eskiismaterjalidega saab tutvuda kuni 14.jaanuarini 2026 käesolevas postituses ja eelneval kokkuleppel Kuusalu vallamajas kohapeal. Eelpool nimetatud ajani saab esitada eskiislahendusele omapoolseid ettepanekuid/vastuväiteid aadressile vallavalitsus@kuusalu.ee.
Detailplaneeringuga soovitakse eraldada 8,04 ha suurusest hoonestamata maatulundusmaa sihtotstarbega kinnistust kaks elamukrunti suurustega 3600 m2 ja üks transpordimaa krunt. Planeeringuala suurus on ca 0,8 ha.
Planeeritav ala asub hajaasustusalal, kehtiva Kuusalu valla üldplaneeringu kohasel nn valgel alal. Valge ala üldplaneeringu kaardil tähendab, et antud aladel maakasutuse sihtotstarve ei muutu ja selle muutmist tulevikus ei piirata. Ka pole nendele aladele ette nähtud suuremaid ja eraldi käsitlemist väärivaid kitsendusi ega piiranguid. Juurdepääs planeeritavale alale on tagatud Kiiu-Jaanukse teelt. Vastavalt Kuusalu valla üldplaneeringule tuleb koostada detailplaneering hajaasustusega aladel, kui soovitakse ehituskrunti, mis on väiksem kui 1,5 ha. Minimaalseks elamukrundi suuruseks on üldplaneeringuga haja-asustusega aladel ette nähtud 0,36 ha. Menetletav detailplaneering on üldplaneeringule vastav.
Lisainfo tel 606 6379 või e-post kadi.raudla@kuusalu.ee.
Seotud failid:
-
4_Mäepea küla Liivamaa kinnistu_DP_Põhijoonis tehnovõrkudega_22.10.2025.pdf -
1_Mäepea küla Liivamaa kinnistu_DP_Situatsiooniskeem.pdf -
Mäepea küla Liivamaa kinnistu DP_Seletuskiri_17.12.2025.pdf -
2_Mäepea küla Liivamaa kinnistu_DP_Olemasolev olukord.pdf -
5_Mäepea küla Liivamaa kinnistu_DP_Mahuline illustratsioon.pdf -
3_Mäepea küla Liivamaa kinnistu_DP_Kontaktvööndi analüüs.pdf