Uudised ja teated
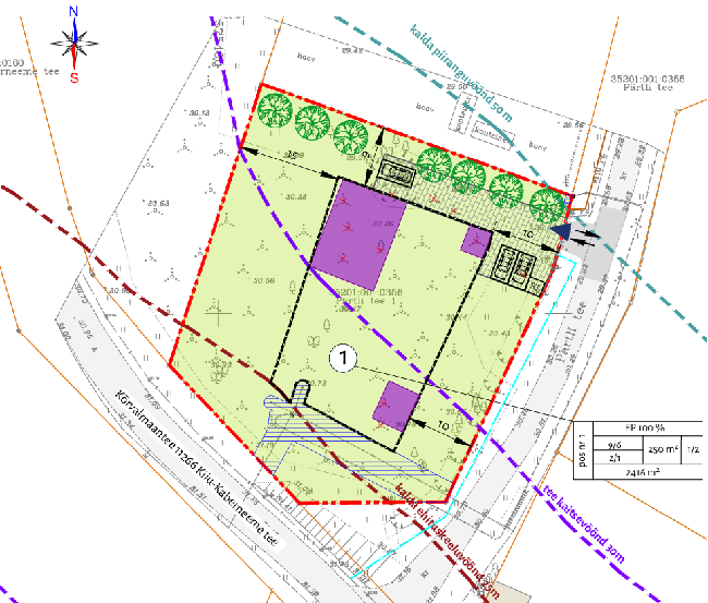
Valkla küla Joosepi ja Tammejõe kinnistute detailplaneeringu eskiislahenduse avalik väljapanek
Kuusalu Vallavalitsus teatab, et algatas 19.juunil 2025 korraldusega nr 197 Valkla küla Joosepi (35301:001:0271) ja Tammejõe (35201:001:0360) kinnistute detailplaneeringu ja kinnitas...
Preemiad Harjumaa harrastusteatrite festivalilt
Kuusalu valla näitetrupid riisusid koore Harjumaa harrastusteatrite festivalilt - palju õnne, oleme uhked! Grand Prix - Kuusalurahva Teater "Kogu aeg tuleb nutt peale ehk sinna, kuhu...
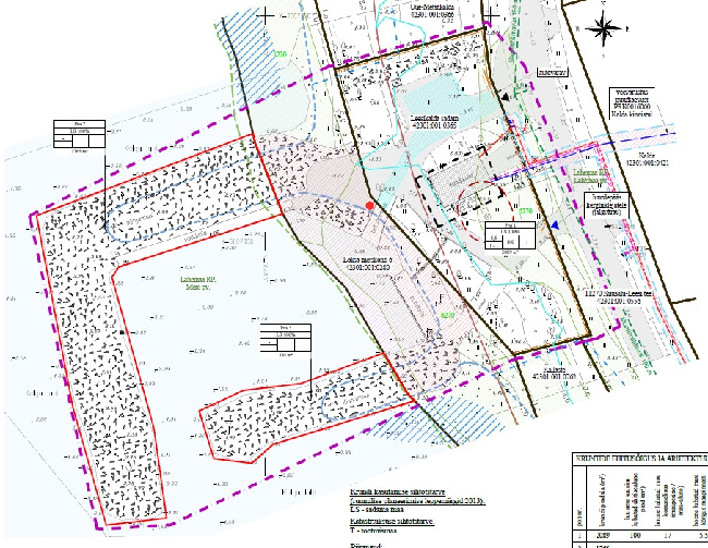
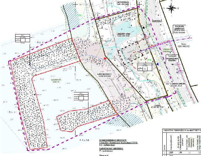
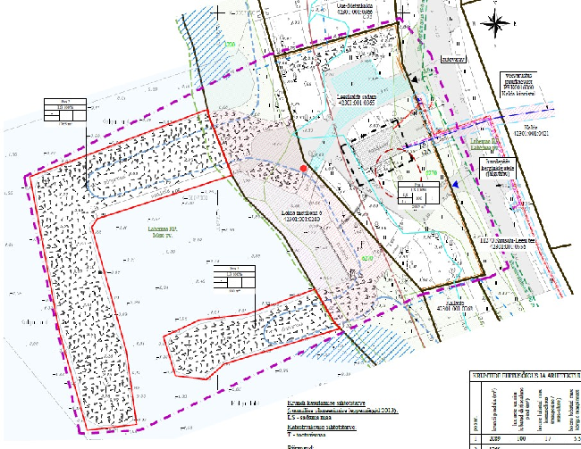
Leesi küla Leesikalda sadama eskiislahenduse avalik väljapanek
Kuusalu Vallavalitsus teatab, et algatas 27.juunil 2024 korraldusega nr 187 Leesi küla Leesikalda sadama kinnistu (42301:001:0365) detailplaneeringu ja kinnitas lähteülesande. Detailplaneeringu...
Ootame nominente Kuusalu valla aasta tegija tunnustuskonkursile
Aasta lõpp on märkamise ja tunnustamise aeg! Kuusalu valla 2025. aasta silmapaistvamate tegijate ja tegude nominentide esitamine on avatud 14. novembrist kuni 7. detsembrini...
Üritused Kuusalu vallas 12.-20. novembril
Uus nädal, uued kohtumised! Soovime kõigile põnevaid elamusi kohalike ettevõtmiste nautimisel. Foto: "Paukjärve torni juures", Kuusalu valla fotokonkurss 2025 Autor: Madis Praks ...
Huvihariduse ja huvitegevuse taotlusvoor on avatud
Kuusalu valla huvihariduse ja huvitegevuse toetuse taotlusvoor on avatud kuni 1. detsembrini. Kuusalu valla huvihariduse ja -tegevuse projektitoetuse eesmärk on toetada Kuusalu valla...
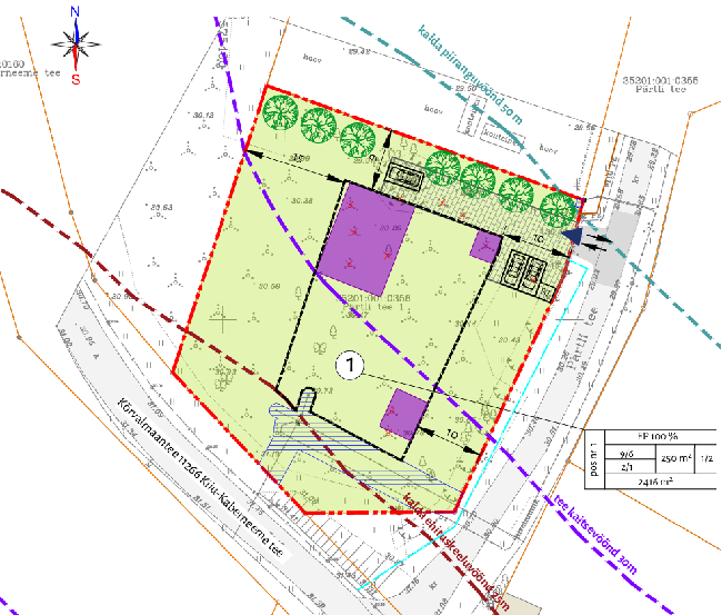
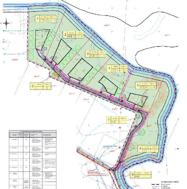
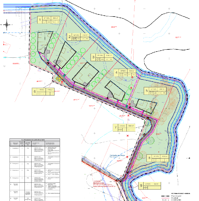
Ilmastalu küla Metsaääre tee 1, 2, 3, 4, 5, 7, Metsaääre tee ja Metsaserva kinnistute eskiislahenduse avalik väljapanek
Kuusalu Vallavalitsus teatab, et Kuusalu Vallavolikogu algatas 18.juunil 2025 otsusega nr 20 Ilmastalu küla Metsaääre tee 1, 2, 3, 4, 5, 7, Metsaääre tee ja Metsaserva...
Üritused Kuusalu vallas 5.-12. novembril
Hilissügisesed pimedad ja vihmamärjad ajad on saabunud, hoiame hinge helge meie vallas pakutavate üritustega. Mõnusat nautimist! Foto: "Kuusalu valla triipkood", Kuusalu valla fotokonkurss...
Soovitame esimese lume eel üle kontrollida oma kodutee
Ega tali taeva jää – ilmateenistus lubab juba peagi esimest lund, seega soovitame selleks valmis olla ning kontrollida üle oma kodutee. Piirkondlikud talihooldajad...
Hanketeade: valla eriotstarbeliste liinivedude teenindamine
Kuusalu vallavalitsus on välja kuulutanud hanke "Valla eriotstarbeliste liinivedude teenindamine Kuusalu ja Loksa piirkonnas 2026. aastal". Hanke sisu on Kuusalu valla elanike transport valla...
Hanketeade: Kuusalu valla erivajadusega laste transporditeenuse osutamine
Hanke eesmärk on transporditeenuse osutamine Kuusalu valla erivajadusega lastele 2026. aastal. Riigihanke viitenumber on 302341 ning hanke dokumendid ja andmed nähtavad riigihangete...
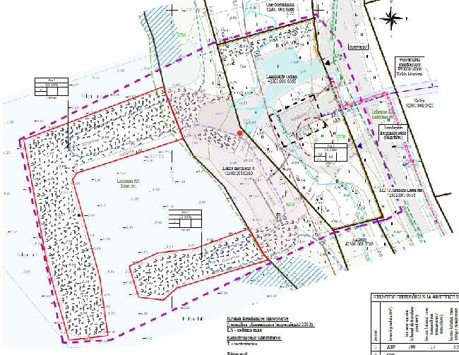
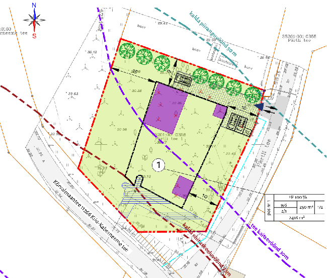
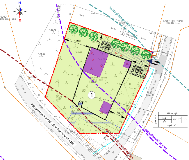
Kaberla küla Kutikse kinnistu detailplaneeringu algatamine ja lähteülesande kinnitamine
Kuusalu Vallavalitsus teatab, et algatas 16.oktoobril 2025 korraldusega nr 284 Kaberla küla Kutikse (35201:001:0245) kinnistu detailplaneeringu ja kinnitas lähteülesande. ...
Kuusalu vallas testitakse sireeni helitugevust ja erinevaid helifaile
Päästeamet annab teada, et teisipäeval, 4. novembril kell 10-16 tehakse Kuusalu vallas Suru mõisa lähedal keskpolügooni äärealal ühe sireeniga helitugevuse mõõtmise jätkuteste. Ohtu ei ole ja...
Kuusalu valla koalitsioonileping on sõlmitud: loe ka lepingu sisu
Täna, 31. oktoobril sõlmisid valimisliit Ühine Kodu, erakond Parempoolsed ja Eesti Keskerakond koalitsioonilepingu. Koalitsioonilepinguga saab tutvuda SIIN . Ühise Kodu valimisliidu...
Aita leida Kuusalu valla AASTA NOOR 2025
Otsime noort, kellele omistada aunimetus Kuusalu valla aasta noor 2025 . Aasta noor on: 7-26-aastane Kuusalu valla registrijärgne elanik Ettevõtlik ja silmapaistev Oma...
Üritused Kuusalu vallas 31. oktoobril – 6. novembril
On saabumas hingedeaeg ning kohalike ürituste kalender on seekord tavapärasest hõredam, kuid kindlasti mitte vähem kvaliteetsem. Mõnusat nautimist, aja maha võtmist ning enese sisse vaatamist! ...
Päästeamet testib neljapäeval suuremates asulates sireenvõrgustiku valmisolekut
Neljapäeval, 30.10, vahemikus kell 14-15 viib päästeamet koos siseministeeriumi infotehnoloogia- ja arenduskeskusega (SMIT) läbi sireenivõrgustiku tehnilise testi. Kõikides...
Koolibussid sõidavad taas tavapärase graafiku järgi
Infoks koolibusside kasutajatele - Kuusalu Keskkooli uue hooneosa ehituse ajal õppetööks kasutatud asenduspindadel on töö lõppenud, kogu koolipere on koos ning bussid sõidavad taas tavapärase...
Harjumaa aasta tegijate konkurss lõpeb juba reedel
Aasta lõpp on märkamise ja tunnustamise aeg! Harjumaa Ettevõtlus- ja Arenduskeskus on välja kuulutanud traditsioonilise aasta tegija konkursi, kuhu Kuusalu vallast on alati laekunud arvukalt...
Euroopa Sotsiaalfondi+ toetusmeede „Sotsiaalne kaasatus kogukondades“
Euroopa Sotsiaalfondi+ toetusmeetme „Sotsiaalne kaasatus kogukondades" Arenduskoja LEADER tegevusrühma tegevuspiirkonnas taotlusvoor on avatud 10. (kl 8.00) –14. (kl 16.49) november 2025. ...