Uudised ja teated

Alates 5. jaanuarist töötab Kuusalu vallavalitsuses 0,25 kohaga uus kriisispetsialist Riina Vahisalu, kes elab Kehras. Ta on pärit Jõelähtme vallast, kuulub Kaitseliitu ning õpib praegu...

Kuusalu valla kriisispetsialistina alustas tööd Riina Vahisalu

Alates 5. jaanuarist töötab Kuusalu vallavalitsuses 0,25 kohaga uus kriisispetsialist Riina Vahisalu, kes elab Kehras. Ta on pärit Jõelähtme vallast, kuulub Kaitseliitu ning õpib praegu...

Kohalik LEADER tegevusrühm MTÜ Arenduskoda võtab vastu LEADER strateegia meetmete 2026. a toetuste projektitaotlusi. Meetme 1.1. Mikro- ja väikeettevõtete arendamine, Meetme 2.1. Kogukonna...

Arenduskoja märtsis avanevate LEADER toetuse meetmete infopäev

Kohalik LEADER tegevusrühm MTÜ Arenduskoda võtab vastu LEADER strateegia meetmete 2026. a toetuste projektitaotlusi. Meetme 1.1. Mikro- ja väikeettevõtete arendamine, Meetme 2.1. Kogukonna...

Käesoleval nädalal teevad Eesti õhuruumis treeninglende, sealhulgas madallende, Balti riikides paiknevad NATO õhuturbe lennuvahendid. Treeninglendude käigus võib toimuda ka ülehelikiirusel...

Treeninglennud Eesti õhuruumis

Käesoleval nädalal teevad Eesti õhuruumis treeninglende, sealhulgas madallende, Balti riikides paiknevad NATO õhuturbe lennuvahendid. Treeninglendude käigus võib toimuda ka ülehelikiirusel...

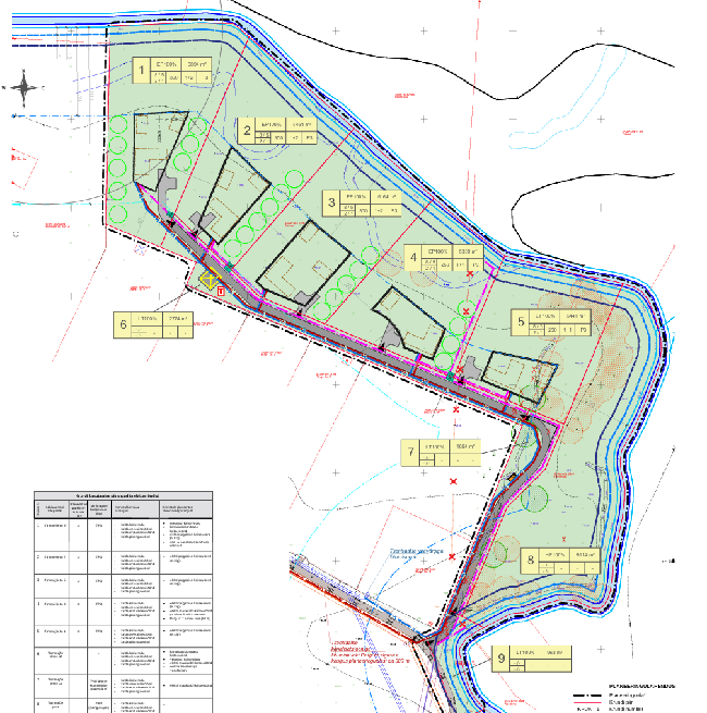
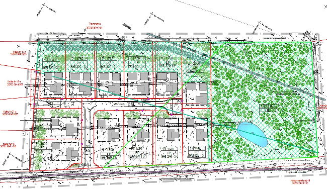
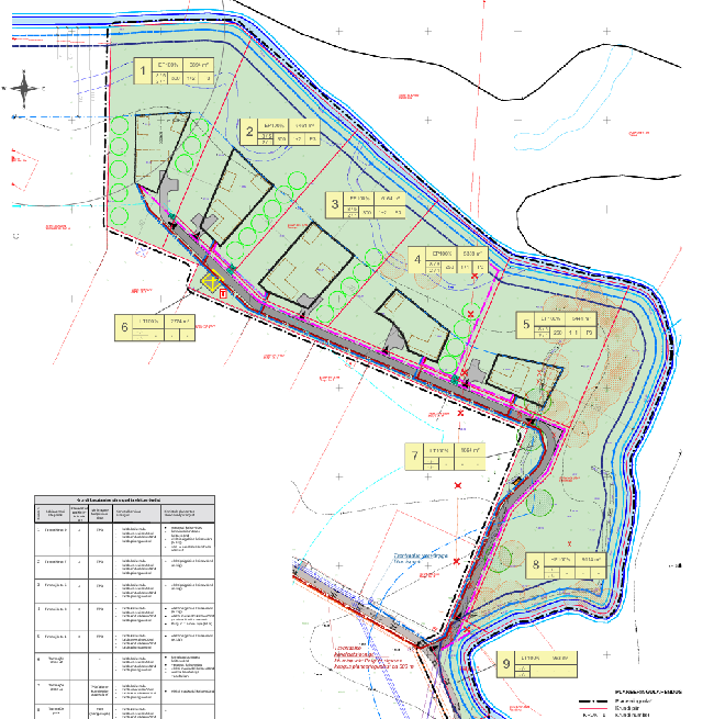
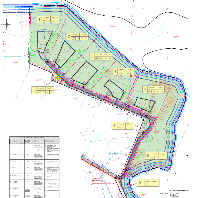
Kuusalu Vallavalitsus annab teada, et Kuusalu Vallavolikogu algatas 18.juunil 2025 otsusega nr 20 Ilmastalu küla Metsaääre tee 1, 2, 3, 4, 5, 7, Metsaääre tee ja Metsaserva kinnistute ...

Ilmastalu küla Metsaääre tee 1, 2, 3, 4, 5, 7, Metsaääre tee ja Metsaserva kinnistute detailplaneeringu eskiislahenduse avaliku väljapaneku tulemuste avalik arutelu

Kuusalu Vallavalitsus annab teada, et Kuusalu Vallavolikogu algatas 18.juunil 2025 otsusega nr 20 Ilmastalu küla Metsaääre tee 1, 2, 3, 4, 5, 7, Metsaääre tee ja Metsaserva kinnistute ...

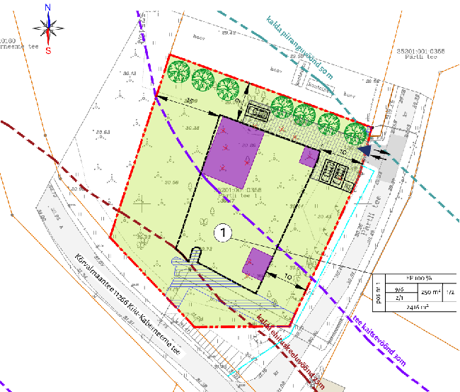
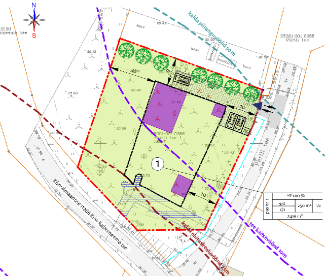
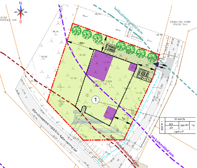
Kuusalu Vallavalitsus teatab, et algatas 16.oktoobril 2025 korraldusega nr 284 Kaberla küla Kutikse (35201:001:0245) kinnistu detailplaneeringu ja kinnitas lähteülesande. Detailplaneeringu...

Kaberla küla Kutikse kinnistu detailplaneeringu eskiislahenduse tutvustus

Kuusalu Vallavalitsus teatab, et algatas 16.oktoobril 2025 korraldusega nr 284 Kaberla küla Kutikse (35201:001:0245) kinnistu detailplaneeringu ja kinnitas lähteülesande. Detailplaneeringu...

Harjumaa Spordiliit võttis kokku Harjumaa 2025. aasta spordiaasta ning loomulikult ei jäänud tähelepanuta ka Kuusalu valla silmapaistvad spordihinged. Palju õnne, Harjumaa aasta sportlik...

Harjumaa aasta sportlik pere on perekond TUISK Kuusalust

Harjumaa Spordiliit võttis kokku Harjumaa 2025. aasta spordiaasta ning loomulikult ei jäänud tähelepanuta ka Kuusalu valla silmapaistvad spordihinged. Palju õnne, Harjumaa aasta sportlik...

Jätkame valla 2025. aasta kroonikafilmi episoodide tutvustamist. Järgmine lugu viib meid rannakeele põnevasse maailma. Pohiranna alal on sajandeid räägitud ja räägitakse kirderannikumurde...

Valla kroonikafilmi episoodide tutvustus: Pohiranna rannakeel

Jätkame valla 2025. aasta kroonikafilmi episoodide tutvustamist. Järgmine lugu viib meid rannakeele põnevasse maailma. Pohiranna alal on sajandeid räägitud ja räägitakse kirderannikumurde...

Uus aasta tõi uusi alguseid ka Kuusalu noortekeskusesse Noorsootöötajana astus ametisse Alice Lipp-Paju,  kellel on noortega töötamise kogemust alates 2015. aastast. Ta töötas...

Noorsootöötajana asus Kuusalus tööle Alice Lipp-Paju

Uus aasta tõi uusi alguseid ka Kuusalu noortekeskusesse Noorsootöötajana astus ametisse Alice Lipp-Paju,  kellel on noortega töötamise kogemust alates 2015. aastast. Ta töötas...

Alates järgmisest esmaspäevast, 12. jaanuarist väljub õpilasliin nr 2 viis minutit hiljem. Õpilasliinile nr 3 lisandub peatus Karjaku rist (Uuri) ja seoses sellega nihkuvad alates Muuksist kõik...

Muudatused koolibussiliindel nr 2 ja 3

Alates järgmisest esmaspäevast, 12. jaanuarist väljub õpilasliin nr 2 viis minutit hiljem. Õpilasliinile nr 3 lisandub peatus Karjaku rist (Uuri) ja seoses sellega nihkuvad alates Muuksist kõik...

Päästeamet annab teada, et viimaste nädalate miinuskraadid on kasvatanud siseveekogude pinnale tugeva jääkatte ning alates tänasest tohib minna siseveekogude jääle. Enne jääle minekut tasub...

Enne jääle minekut veendu, et see kannab

Päästeamet annab teada, et viimaste nädalate miinuskraadid on kasvatanud siseveekogude pinnale tugeva jääkatte ning alates tänasest tohib minna siseveekogude jääle. Enne jääle minekut tasub...

Kui talvemõnude nautimisest aega üle jääb, on Kuusalu vallas nädalalõpul pakkuda ka mõned tubasemad tegevused! Kui midagi oleks nimekirja lisada, andke palun teada! ÜRITUSED KUUSALU VALLAS...

Üritused Kuusalu vallas 9.-11. jaanuaril

Kui talvemõnude nautimisest aega üle jääb, on Kuusalu vallas nädalalõpul pakkuda ka mõned tubasemad tegevused! Kui midagi oleks nimekirja lisada, andke palun teada! ÜRITUSED KUUSALU VALLAS...

Kuusalu kalmistul kehtib alates jaanuarist uus eeskiri, millega saab tutvuda SIIN . Hauaplatside kasutamiseks on vajalik sõlmida kasutusleping, mille vajadus tuleneb 2012. aastal kehtima...

Kuusalu kalmistul kehtib alates jaanuarist uus eeskiri

Kuusalu kalmistul kehtib alates jaanuarist uus eeskiri, millega saab tutvuda SIIN . Hauaplatside kasutamiseks on vajalik sõlmida kasutusleping, mille vajadus tuleneb 2012. aastal kehtima...

Kuusalu vallavalitsuse kontaktisik lumetõrje osas on majandusspetsialist Madis Praks, 5330 7301,  madis.praks@kuusalu.ee Kuusalu valla talvise lumetõrje piirkonnad ja...

Talviste teehooldajate piirkonnad ja kontaktid

Kuusalu vallavalitsuse kontaktisik lumetõrje osas on majandusspetsialist Madis Praks, 5330 7301,  madis.praks@kuusalu.ee Kuusalu valla talvise lumetõrje piirkonnad ja...

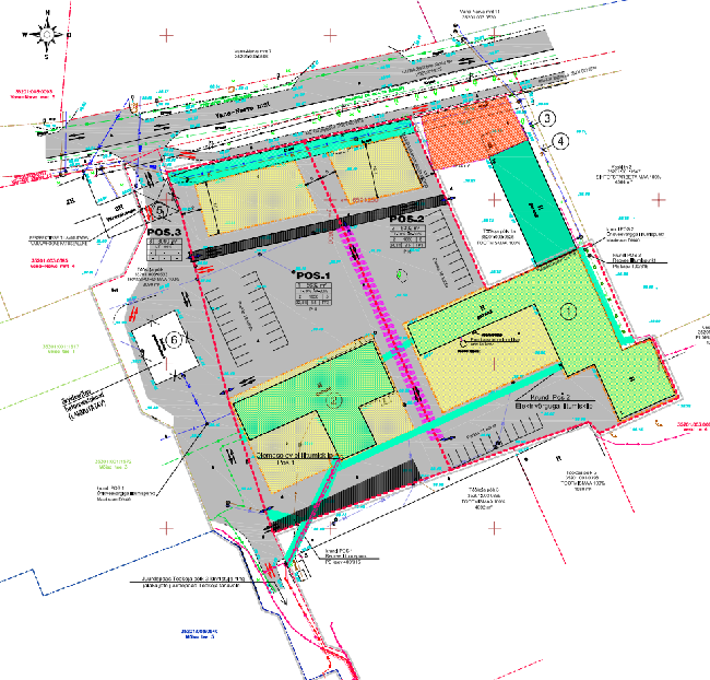
Kuusalu Vallavalitsusele on esitatud projekteerimistingimuste taotlus Mäepea küla Kuusiku-VII, Kuusiku-VI, Kuusiku-V ja Kuusiku-III kinnistute detailplaneeringu tingimuste täpsustamiseks...

Projekteerimistingimuste andmine Mäepea küla Kuusiku-VII, Kuusiku-VI, Kuusiku-V ja Kuusiku-III kinnistute detailplaneeringu tingimuste täpsustamiseks

Kuusalu Vallavalitsusele on esitatud projekteerimistingimuste taotlus Mäepea küla Kuusiku-VII, Kuusiku-VI, Kuusiku-V ja Kuusiku-III kinnistute detailplaneeringu tingimuste täpsustamiseks...

Anname teada, et Kuusalu Vallavalitsuse 18.detsembri 2025 korraldusega nr 358 võeti vastu Kuusalu aleviku Kuusalu tee 41 (35201:004:0039) ja Kuusalu tee 43 (35201:004:0064) kinnistute ning...

Kuusalu aleviku Kuusalu tee 41, Kuusalu tee 43 ning lähiala kinnistute detailplaneeringu avalik väljapanek

Anname teada, et Kuusalu Vallavalitsuse 18.detsembri 2025 korraldusega nr 358 võeti vastu Kuusalu aleviku Kuusalu tee 41 (35201:004:0039) ja Kuusalu tee 43 (35201:004:0064) kinnistute ning...

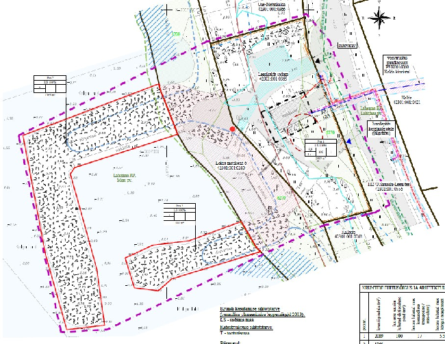
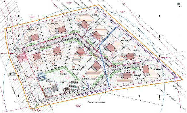
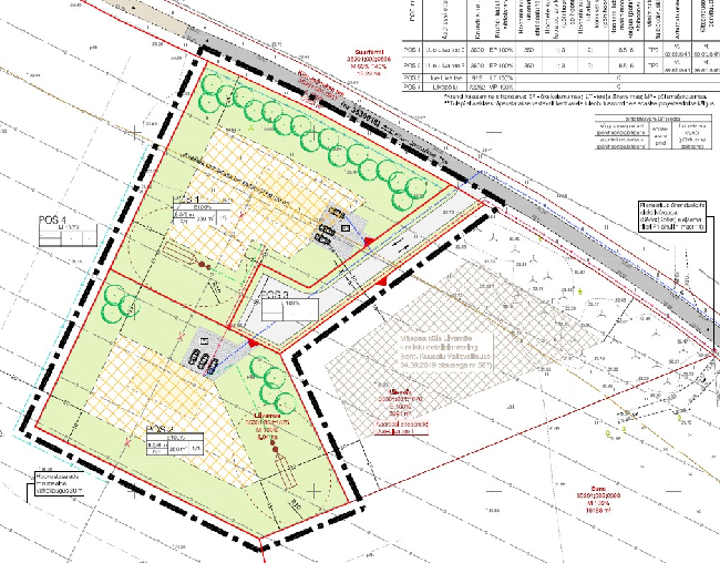
Kuusalu Vallavalitsus teatab, et algatas 13.aprillil 2023 korraldusega nr 147 Mäepea küla Liivamaa (35301:001:1875) kinnistu detailplaneeringu ja kinnitas lähteülesande. Detailplaneeringu...

Mäepea küla Liivamaa kinnistu detailplaneeringu eskiislahenduse tutvustus

Kuusalu Vallavalitsus teatab, et algatas 13.aprillil 2023 korraldusega nr 147 Mäepea küla Liivamaa (35301:001:1875) kinnistu detailplaneeringu ja kinnitas lähteülesande. Detailplaneeringu...

Hea Kuusalu keskkooli vilistlane, endine või praegune koolitöötaja! Edastame kutse kokkutulekule: Ootame kõiki Kuusalu Keskkooli vilistlasi, endiseid ja praeguseid töötajaid suurele...

Kuusalu keskkool kutsub vilistlasi ja koolitöötajaid kokkutulekule

Hea Kuusalu keskkooli vilistlane, endine või praegune koolitöötaja! Edastame kutse kokkutulekule: Ootame kõiki Kuusalu Keskkooli vilistlasi, endiseid ja praeguseid töötajaid suurele...

Hajaasustuse programmi tänavuse taotlusvooru kuupäevad on avalikustatud, soovitame huvilistel asuda varakult mõtlema, kas ja kuidas oleks taotlusvoorust abi elukvaliteedi tõstmisel. 2....

Hajaasustuse programm avaneb 2. veebruaril

Hajaasustuse programmi tänavuse taotlusvooru kuupäevad on avalikustatud, soovitame huvilistel asuda varakult mõtlema, kas ja kuidas oleks taotlusvoorust abi elukvaliteedi tõstmisel. 2....

Kuusalu lasteaed vajab alates 9. veebuarist täiskoormusega abiõpetaja ametikohale ema- ja vanemapuhkuse asendajat. Nõutav vähemalt keskharidus. Tööle asumise soovist palume teada anda...

Kuusalu lasteaed pakub tööd abiõpetajale

Kuusalu lasteaed vajab alates 9. veebuarist täiskoormusega abiõpetaja ametikohale ema- ja vanemapuhkuse asendajat. Nõutav vähemalt keskharidus. Tööle asumise soovist palume teada anda...

Kellel kommid saamata - laste jõulukommipakke saab vallamajast kätte veel kuni selle nädala neljapäevani. E, T ja N kell 8-16, K kell 8-18. *** Kingime jõulukommipaki Kuusalu valla...

Laste jõulukommipakke saab kätte veel kuni neljapäevani

Kellel kommid saamata - laste jõulukommipakke saab vallamajast kätte veel kuni selle nädala neljapäevani. E, T ja N kell 8-16, K kell 8-18. *** Kingime jõulukommipaki Kuusalu valla...

Näitan: 1-20
Elemente lehe kohta20
of 129