Uudised ja teated

Kuusalu Vallavalitsusele on esitatud projekteerimistingimuste taotlus Mäepea küla Kuusiku-VII, Kuusiku-VI, Kuusiku-V ja Kuusiku-III kinnistute detailplaneeringu tingimuste täpsustamiseks...

Projekteerimistingimuste andmine Mäepea küla Kuusiku-VII, Kuusiku-VI, Kuusiku-V ja Kuusiku-III kinnistute detailplaneeringu tingimuste täpsustamiseks

Kuusalu Vallavalitsusele on esitatud projekteerimistingimuste taotlus Mäepea küla Kuusiku-VII, Kuusiku-VI, Kuusiku-V ja Kuusiku-III kinnistute detailplaneeringu tingimuste täpsustamiseks...

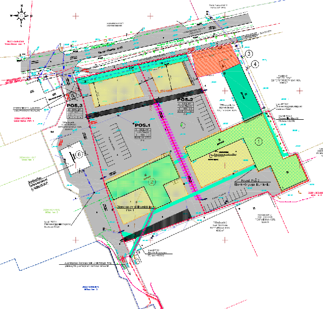
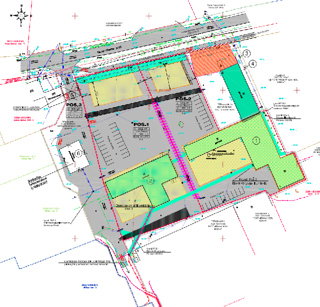
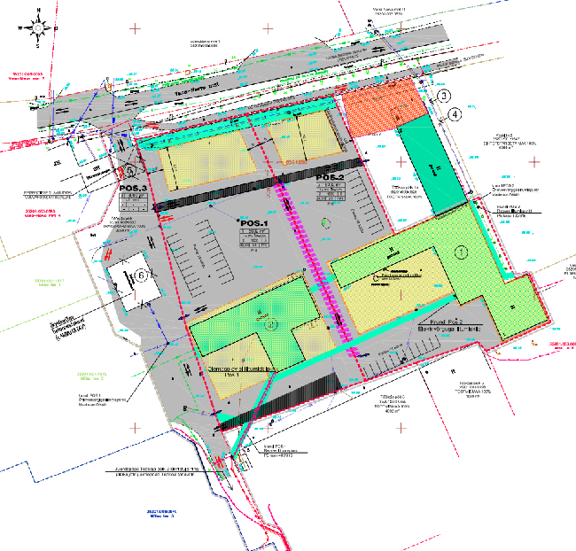
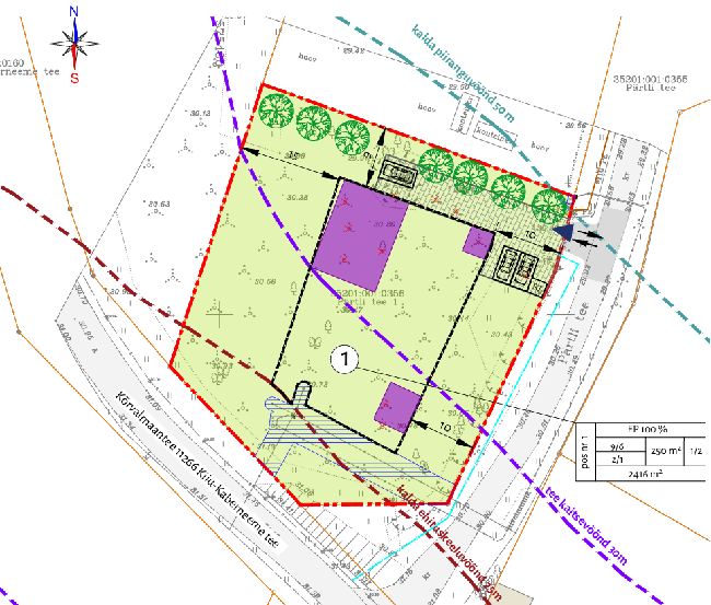
Anname teada, et Kuusalu Vallavalitsuse 18.detsembri 2025 korraldusega nr 358 võeti vastu Kuusalu aleviku Kuusalu tee 41 (35201:004:0039) ja Kuusalu tee 43 (35201:004:0064) kinnistute ning...

Kuusalu aleviku Kuusalu tee 41, Kuusalu tee 43 ning lähiala kinnistute detailplaneeringu avalik väljapanek

Anname teada, et Kuusalu Vallavalitsuse 18.detsembri 2025 korraldusega nr 358 võeti vastu Kuusalu aleviku Kuusalu tee 41 (35201:004:0039) ja Kuusalu tee 43 (35201:004:0064) kinnistute ning...

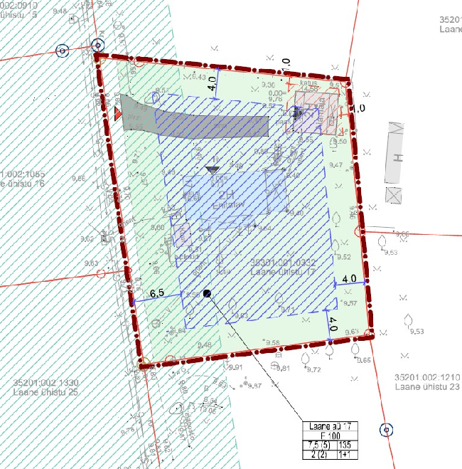
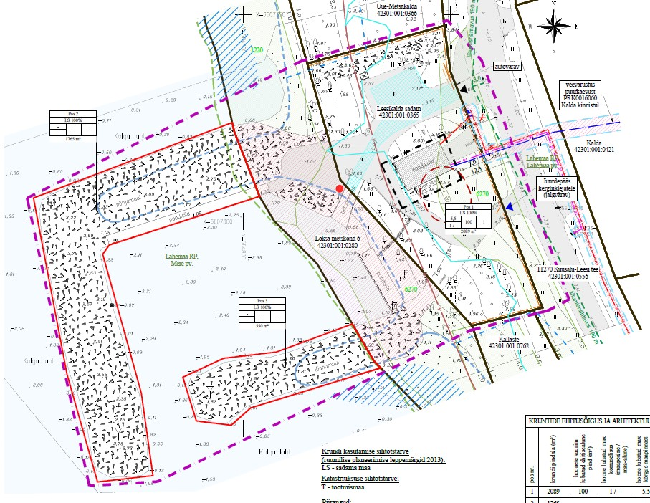
Kuusalu Vallavalitsus teatab, et algatas 13.aprillil 2023 korraldusega nr 147 Mäepea küla Liivamaa (35301:001:1875) kinnistu detailplaneeringu ja kinnitas lähteülesande. Detailplaneeringu...

Mäepea küla Liivamaa kinnistu detailplaneeringu eskiislahenduse tutvustus

Kuusalu Vallavalitsus teatab, et algatas 13.aprillil 2023 korraldusega nr 147 Mäepea küla Liivamaa (35301:001:1875) kinnistu detailplaneeringu ja kinnitas lähteülesande. Detailplaneeringu...

Hea Kuusalu keskkooli vilistlane, endine või praegune koolitöötaja! Edastame kutse kokkutulekule: Ootame kõiki Kuusalu Keskkooli vilistlasi, endiseid ja praeguseid töötajaid suurele...

Kuusalu keskkool kutsub vilistlasi ja koolitöötajaid kokkutulekule

Hea Kuusalu keskkooli vilistlane, endine või praegune koolitöötaja! Edastame kutse kokkutulekule: Ootame kõiki Kuusalu Keskkooli vilistlasi, endiseid ja praeguseid töötajaid suurele...

Hajaasustuse programmi tänavuse taotlusvooru kuupäevad on avalikustatud, soovitame huvilistel asuda varakult mõtlema, kas ja kuidas oleks taotlusvoorust abi elukvaliteedi tõstmisel. 2....

Hajaasustuse programm avaneb 2. veebruaril

Hajaasustuse programmi tänavuse taotlusvooru kuupäevad on avalikustatud, soovitame huvilistel asuda varakult mõtlema, kas ja kuidas oleks taotlusvoorust abi elukvaliteedi tõstmisel. 2....

Kuusalu lasteaed vajab alates veebruari keskpaigast täiskoormusega abiõpetaja ametikohale ema- ja vanemapuhkuse asendajat. Nõutav vähemalt keskharidus. Tööle asumise soovist palume teada...

Kuusalu lasteaed pakub tööd abiõpetajale

Kuusalu lasteaed vajab alates veebruari keskpaigast täiskoormusega abiõpetaja ametikohale ema- ja vanemapuhkuse asendajat. Nõutav vähemalt keskharidus. Tööle asumise soovist palume teada...

Kellel kommid saamata - laste jõulukommipakke saab vallamajast kätte veel kuni selle nädala neljapäevani. E, T ja N kell 8-16, K kell 8-18. *** Kingime jõulukommipaki Kuusalu valla...

Laste jõulukommipakke saab kätte veel kuni neljapäevani

Kellel kommid saamata - laste jõulukommipakke saab vallamajast kätte veel kuni selle nädala neljapäevani. E, T ja N kell 8-16, K kell 8-18. *** Kingime jõulukommipaki Kuusalu valla...

Täna, 3. jaanuaril kell 10.30 mälestasime Vabadussõjas langenuid Valkla lahingu kivi juures ja samal ajal ka Kuusalu kalmistul mälestussamba juures. Vaikuseminutit peeti ja küünlad süüdati ka...

Vabadussõjas võidelnute mälestuspäeva tähistamine

Täna, 3. jaanuaril kell 10.30 mälestasime Vabadussõjas langenuid Valkla lahingu kivi juures ja samal ajal ka Kuusalu kalmistul mälestussamba juures. Vaikuseminutit peeti ja küünlad süüdati ka...

On aeg heita pilk rahvastikuregistrisse, et näha, milliseid muutuseid tõi aasta lõpp statistikas: Kuusalu valla rahvaarv seisuga 30.11.2025 oli 6571 elanikku. Detsembrikuus...

Rahvaarvu muutusest Kuusalu vallas

On aeg heita pilk rahvastikuregistrisse, et näha, milliseid muutuseid tõi aasta lõpp statistikas: Kuusalu valla rahvaarv seisuga 30.11.2025 oli 6571 elanikku. Detsembrikuus...

Imeilusat uut aastat! Suuremad pühad ja pidustused on möödas, argipäev hiilib ligi ning talv on end täie hooga sisse seadnud. Heidame pilgu, mis üritused aitavad uude aastasse paremini...

Head uut aastat! Üritused Kuusalu vallas 3.-4. jaanuaril

Imeilusat uut aastat! Suuremad pühad ja pidustused on möödas, argipäev hiilib ligi ning talv on end täie hooga sisse seadnud. Heidame pilgu, mis üritused aitavad uude aastasse paremini...

Laupäeval, 3. jaanuaril kell 10.30 tähistame Vabadussõjas võidelnute mälestuspäeva Kuusalu kalmistul Vabadussõja mälestussamba juures ja Valkla lahingu kivi juures. 2026. aastal möödub 106...

Vabadussõjas võidelnute mälestuspäeva tähistamine

Laupäeval, 3. jaanuaril kell 10.30 tähistame Vabadussõjas võidelnute mälestuspäeva Kuusalu kalmistul Vabadussõja mälestussamba juures ja Valkla lahingu kivi juures. 2026. aastal möödub 106...

Kuusalu vallavalitsuse töökorraldus pühadeperioodil: 22.12 vallamaja avatud kell 8-16 23.12 töö kodukontoris kuni kell 13 29.12 vallamaja avatud kell 8-16 30.12. tööpäev kodukontoris...

Soovime rahulikke jõulupühi

Kuusalu vallavalitsuse töökorraldus pühadeperioodil: 22.12 vallamaja avatud kell 8-16 23.12 töö kodukontoris kuni kell 13 29.12 vallamaja avatud kell 8-16 30.12. tööpäev kodukontoris...

Aitäh neile, kes on meiega! Kuusalu valla sissekirjutusega isikud saavad kampaaniaperioodil kingituseks: Tasuta  kasutada  Kuusalu spordikeskuse  ujulat ühe korra...

Kodanikukuu kingitus: tasuta ujumine 27.-31. detsembril

Aitäh neile, kes on meiega! Kuusalu valla sissekirjutusega isikud saavad kampaaniaperioodil kingituseks: Tasuta  kasutada  Kuusalu spordikeskuse  ujulat ühe korra...

KUUSALU KIRIK 24. detsembril kell 16 jõuluõhtu JUMALATEENISTUS. Laulab segakoor Hea Tuju Esmaspäev, juhatab Kai Peterson. Neljapäeval, 25. detsembril kell 11 Kristuse sündimise...

Pühadeaegsed jumalateenistused Kuusalu vallas ja Loksal

KUUSALU KIRIK 24. detsembril kell 16 jõuluõhtu JUMALATEENISTUS. Laulab segakoor Hea Tuju Esmaspäev, juhatab Kai Peterson. Neljapäeval, 25. detsembril kell 11 Kristuse sündimise...

Täna avaneb kodanikukuu kalendriaken uue kingitusega neile, kes on päriselt meiega. Kiiu jäätmejaamas on 19. ja 20. detsembril kõik teenused Kuusalu valla sissekirjutusega isikutele TASUTA...

Täna ja homme on Kiiu jäätmejaama teenused Kuusalu valla sissekirjutusega isikutele TASUTA

Täna avaneb kodanikukuu kalendriaken uue kingitusega neile, kes on päriselt meiega. Kiiu jäätmejaamas on 19. ja 20. detsembril kõik teenused Kuusalu valla sissekirjutusega isikutele TASUTA...

Vallavalitsus viis läbi hanke ning sõlmis uued lepingud valla siseliinide teenindamiseks. Siseliinid jätkavad 2026. aastal senistel ehk väljakujunenud päevadel ja kellaaegadel, kuid muutused...

Valla bussiliinid sõidavad uuel aastal sama graafiku järgi

Vallavalitsus viis läbi hanke ning sõlmis uued lepingud valla siseliinide teenindamiseks. Siseliinid jätkavad 2026. aastal senistel ehk väljakujunenud päevadel ja kellaaegadel, kuid muutused...

Tänane kroonikafilmi episoodi tutvustus viib meid Kolgaküla rahvamajja, kus toimuvad ülipopulaarsed mälumängud, mida viib läbi Andres Kaarmann (Andrese mälumängud). 2025. aasta kroonikafilm...

Kroonikafilmi episoodi tutvustus: Kolgaküla mälumängusari

Tänane kroonikafilmi episoodi tutvustus viib meid Kolgaküla rahvamajja, kus toimuvad ülipopulaarsed mälumängud, mida viib läbi Andres Kaarmann (Andrese mälumängud). 2025. aasta kroonikafilm...

Kuusalu valla pearaamatupidaja Ly Korotejev-Piir: „Väga oluline on iga inimese sissekirjutus, kui ta kasutab kohalikku infrastruktuuri – nii saab panustada kodukandi elu korraldamisse. Vallale...

Kuusalu valla pearaamatupidaja Ly Korotejev-Piir: "Mida enam on maksumaksjaid, seda paremaid teenuseid saab vald pakkuda."

Kuusalu valla pearaamatupidaja Ly Korotejev-Piir: „Väga oluline on iga inimese sissekirjutus, kui ta kasutab kohalikku infrastruktuuri – nii saab panustada kodukandi elu korraldamisse. Vallale...

Töökorraldus pühadeperioodil: 18.12 vallamaja avatud kell 8-12 19.12 töö kodukontoris 8-14 22.12 vallamaja avatud kell 8-16 23.12 töö kodukontoris kuni kell 13 29.12 vallamaja...

Vallavalitsuse töökorraldus pühadeperioodil

Töökorraldus pühadeperioodil: 18.12 vallamaja avatud kell 8-12 19.12 töö kodukontoris 8-14 22.12 vallamaja avatud kell 8-16 23.12 töö kodukontoris kuni kell 13 29.12 vallamaja...

Kuusalu vallavolikogu pidas täna, 17. detsembril 3. istungi. Vallavolikogu otsustas: Määrata vallavanema töötasuks 4200 eurot kuus ja maksta vallavanemale seoses isikliku sõiduauto...

Kuusalu vallavolikogu 17. detsembri OTSUSED

Kuusalu vallavolikogu pidas täna, 17. detsembril 3. istungi. Vallavolikogu otsustas: Määrata vallavanema töötasuks 4200 eurot kuus ja maksta vallavanemale seoses isikliku sõiduauto...

Näitan: 1-20
Elemente lehe kohta20
of 128