Uudised ja teated

Uus nädal, uued kohtumised! Soovime kõigile põnevaid elamusi kohalike ettevõtmiste nautimisel. Foto: "Paukjärve torni juures", Kuusalu valla fotokonkurss 2025 Autor: Madis Praks ...

Üritused Kuusalu vallas 12.-20. novembril

Uus nädal, uued kohtumised! Soovime kõigile põnevaid elamusi kohalike ettevõtmiste nautimisel. Foto: "Paukjärve torni juures", Kuusalu valla fotokonkurss 2025 Autor: Madis Praks ...

Kuusalu valla huvihariduse ja huvitegevuse toetuse taotlusvoor on avatud kuni 1. detsembrini. Kuusalu valla huvihariduse ja -tegevuse projektitoetuse eesmärk on toetada Kuusalu valla...

Huvihariduse ja huvitegevuse taotlusvoor on avatud

Kuusalu valla huvihariduse ja huvitegevuse toetuse taotlusvoor on avatud kuni 1. detsembrini. Kuusalu valla huvihariduse ja -tegevuse projektitoetuse eesmärk on toetada Kuusalu valla...

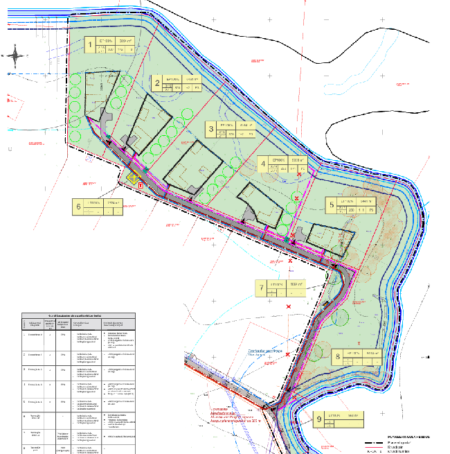
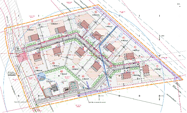
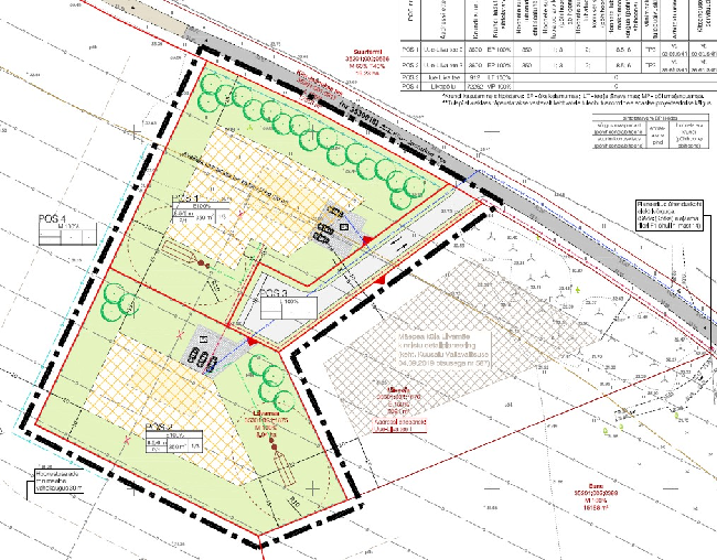
Kuusalu Vallavalitsus teatab, et Kuusalu Vallavolikogu algatas 18.juunil 2025 otsusega nr 20 Ilmastalu küla Metsaääre tee 1, 2, 3, 4, 5, 7, Metsaääre tee ja Metsaserva...

Ilmastalu küla Metsaääre tee 1, 2, 3, 4, 5, 7, Metsaääre tee ja Metsaserva kinnistute eskiislahenduse avalik väljapanek

Kuusalu Vallavalitsus teatab, et Kuusalu Vallavolikogu algatas 18.juunil 2025 otsusega nr 20 Ilmastalu küla Metsaääre tee 1, 2, 3, 4, 5, 7, Metsaääre tee ja Metsaserva...

Hilissügisesed pimedad ja vihmamärjad ajad on saabunud, hoiame hinge helge meie vallas pakutavate üritustega. Mõnusat nautimist! Foto: "Kuusalu valla triipkood", Kuusalu valla fotokonkurss...

Üritused Kuusalu vallas 5.-12. novembril

Hilissügisesed pimedad ja vihmamärjad ajad on saabunud, hoiame hinge helge meie vallas pakutavate üritustega. Mõnusat nautimist! Foto: "Kuusalu valla triipkood", Kuusalu valla fotokonkurss...

Ega tali taeva jää – ilmateenistus lubab juba peagi esimest lund, seega soovitame selleks valmis olla ning kontrollida üle oma kodutee.   Piirkondlikud talihooldajad...

Soovitame esimese lume eel üle kontrollida oma kodutee

Ega tali taeva jää – ilmateenistus lubab juba peagi esimest lund, seega soovitame selleks valmis olla ning kontrollida üle oma kodutee.   Piirkondlikud talihooldajad...

Kuusalu vallavalitsus on välja kuulutanud hanke "Valla eriotstarbeliste liinivedude teenindamine Kuusalu ja Loksa piirkonnas 2026. aastal". Hanke sisu on Kuusalu valla elanike transport valla...

Hanketeade: valla eriotstarbeliste liinivedude teenindamine

Kuusalu vallavalitsus on välja kuulutanud hanke "Valla eriotstarbeliste liinivedude teenindamine Kuusalu ja Loksa piirkonnas 2026. aastal". Hanke sisu on Kuusalu valla elanike transport valla...

Hanke eesmärk on transporditeenuse osutamine Kuusalu valla erivajadusega lastele 2026. aastal. Riigihanke viitenumber on 302341 ning hanke dokumendid ja andmed nähtavad riigihangete...

Hanketeade: Kuusalu valla erivajadusega laste transporditeenuse osutamine

Hanke eesmärk on transporditeenuse osutamine Kuusalu valla erivajadusega lastele 2026. aastal. Riigihanke viitenumber on 302341 ning hanke dokumendid ja andmed nähtavad riigihangete...

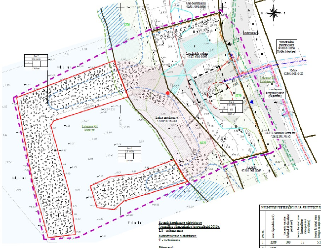
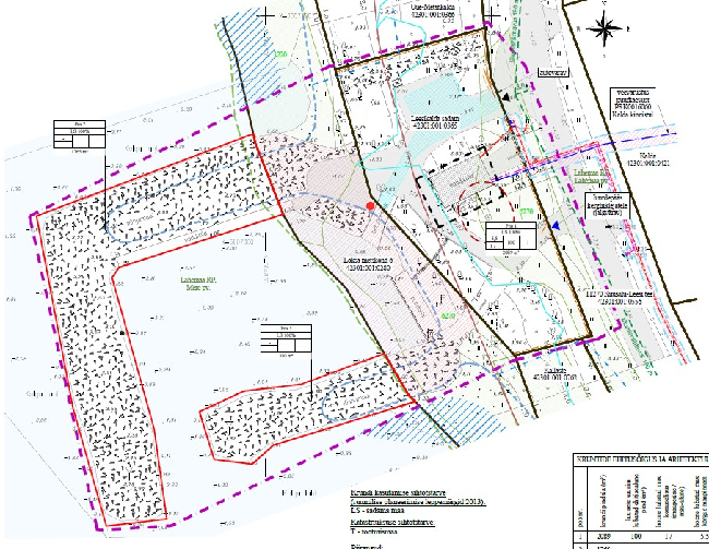
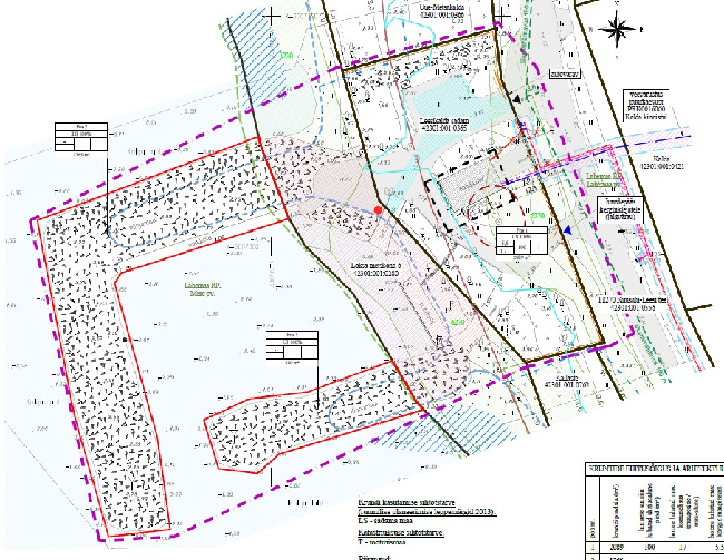
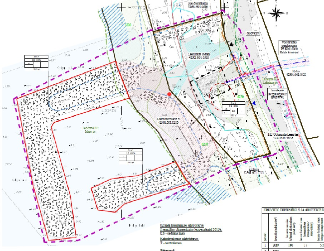
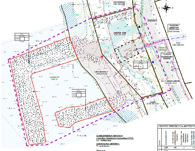
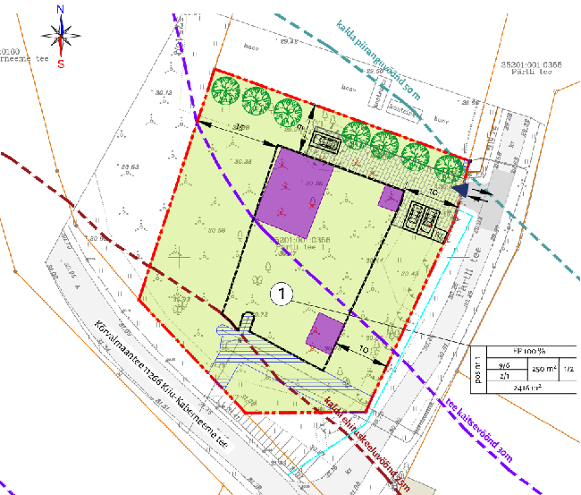
Kuusalu Vallavalitsus teatab, et algatas 16.oktoobril 2025 korraldusega nr 284 Kaberla küla Kutikse (35201:001:0245) kinnistu detailplaneeringu ja kinnitas lähteülesande.   ...

Kaberla küla Kutikse kinnistu detailplaneeringu algatamine ja lähteülesande kinnitamine

Kuusalu Vallavalitsus teatab, et algatas 16.oktoobril 2025 korraldusega nr 284 Kaberla küla Kutikse (35201:001:0245) kinnistu detailplaneeringu ja kinnitas lähteülesande.   ...

Päästeamet annab teada, et teisipäeval, 4. novembril kell 10-16 tehakse Kuusalu vallas Suru mõisa lähedal keskpolügooni äärealal ühe sireeniga helitugevuse mõõtmise jätkuteste. Ohtu ei ole ja...

Kuusalu vallas testitakse sireeni helitugevust ja erinevaid helifaile

Päästeamet annab teada, et teisipäeval, 4. novembril kell 10-16 tehakse Kuusalu vallas Suru mõisa lähedal keskpolügooni äärealal ühe sireeniga helitugevuse mõõtmise jätkuteste. Ohtu ei ole ja...

Täna, 31. oktoobril sõlmisid valimisliit Ühine Kodu, erakond Parempoolsed ja Eesti Keskerakond koalitsioonilepingu. Koalitsioonilepinguga saab tutvuda SIIN . Ühise Kodu valimisliidu...

Kuusalu valla koalitsioonileping on sõlmitud: loe ka lepingu sisu

Täna, 31. oktoobril sõlmisid valimisliit Ühine Kodu, erakond Parempoolsed ja Eesti Keskerakond koalitsioonilepingu. Koalitsioonilepinguga saab tutvuda SIIN . Ühise Kodu valimisliidu...

Otsime noort, kellele omistada aunimetus Kuusalu valla aasta noor 2025 . Aasta noor on: 7-26-aastane Kuusalu valla registrijärgne elanik Ettevõtlik ja silmapaistev Oma...

Aita leida Kuusalu valla AASTA NOOR 2025

Otsime noort, kellele omistada aunimetus Kuusalu valla aasta noor 2025 . Aasta noor on: 7-26-aastane Kuusalu valla registrijärgne elanik Ettevõtlik ja silmapaistev Oma...

On saabumas hingedeaeg ning kohalike ürituste kalender on seekord tavapärasest hõredam, kuid kindlasti mitte vähem kvaliteetsem. Mõnusat nautimist, aja maha võtmist ning enese sisse vaatamist! ...

Üritused Kuusalu vallas 31. oktoobril – 6. novembril

On saabumas hingedeaeg ning kohalike ürituste kalender on seekord tavapärasest hõredam, kuid kindlasti mitte vähem kvaliteetsem. Mõnusat nautimist, aja maha võtmist ning enese sisse vaatamist! ...

Neljapäeval, 30.10, vahemikus kell 14-15 viib päästeamet koos siseministeeriumi infotehnoloogia- ja arenduskeskusega (SMIT) läbi sireenivõrgustiku tehnilise testi. Kõikides...

Päästeamet testib neljapäeval suuremates asulates sireenvõrgustiku valmisolekut

Neljapäeval, 30.10, vahemikus kell 14-15 viib päästeamet koos siseministeeriumi infotehnoloogia- ja arenduskeskusega (SMIT) läbi sireenivõrgustiku tehnilise testi. Kõikides...

Infoks koolibusside kasutajatele - Kuusalu Keskkooli uue hooneosa ehituse ajal õppetööks kasutatud asenduspindadel on töö lõppenud, kogu koolipere on koos ning bussid sõidavad taas tavapärase...

Koolibussid sõidavad taas tavapärase graafiku järgi

Infoks koolibusside kasutajatele - Kuusalu Keskkooli uue hooneosa ehituse ajal õppetööks kasutatud asenduspindadel on töö lõppenud, kogu koolipere on koos ning bussid sõidavad taas tavapärase...

Aasta lõpp on märkamise ja tunnustamise aeg! Harjumaa Ettevõtlus- ja Arenduskeskus on välja kuulutanud traditsioonilise aasta tegija konkursi, kuhu Kuusalu vallast on alati laekunud arvukalt...

Harjumaa aasta tegijate konkurss lõpeb juba reedel

Aasta lõpp on märkamise ja tunnustamise aeg! Harjumaa Ettevõtlus- ja Arenduskeskus on välja kuulutanud traditsioonilise aasta tegija konkursi, kuhu Kuusalu vallast on alati laekunud arvukalt...

Euroopa Sotsiaalfondi+ toetusmeetme „Sotsiaalne kaasatus kogukondades" Arenduskoja LEADER tegevusrühma tegevuspiirkonnas taotlusvoor on avatud 10. (kl 8.00) –14. (kl 16.49) november 2025. ...

Euroopa Sotsiaalfondi+ toetusmeede „Sotsiaalne kaasatus kogukondades“

Euroopa Sotsiaalfondi+ toetusmeetme „Sotsiaalne kaasatus kogukondades" Arenduskoja LEADER tegevusrühma tegevuspiirkonnas taotlusvoor on avatud 10. (kl 8.00) –14. (kl 16.49) november 2025. ...

Arenduskoja juhatus kinnitas 23. oktoobril 2025. a MTÜ Arenduskoda LEADER strateegia perioodiks 2023–2027 rakenduskava ja eelarve 2026. aastaks. 2026. aastal toimuvad taotlusvoorud...

Eelinfo: Arenduskoja 2026. aasta taotlusvoorud

Arenduskoja juhatus kinnitas 23. oktoobril 2025. a MTÜ Arenduskoda LEADER strateegia perioodiks 2023–2027 rakenduskava ja eelarve 2026. aastaks. 2026. aastal toimuvad taotlusvoorud...

Vaata tööpakkumisi täpsemalt SIIT.
Alates tänasest on avatud andeka sportlase toetamise taotlusvoor. Taotlust on võimalik esitada kuni 17.11.2025 SPOKU keskkonnas: ...

Andeka sportlase toetamise taotlusvoor on avatud

Alates tänasest on avatud andeka sportlase toetamise taotlusvoor. Taotlust on võimalik esitada kuni 17.11.2025 SPOKU keskkonnas: ...

On aeg valimistest hinge tõmmata ning kosutada end meeldiva ja põnevaga, mida meie valla tegijad pakuvad! Foto: "Part maandumas". Kuusalu valla fotokonkurss 2025. Autor: Andres Heintalu ...

Üritused Kuusalu vallas 23.-28. oktoobril

On aeg valimistest hinge tõmmata ning kosutada end meeldiva ja põnevaga, mida meie valla tegijad pakuvad! Foto: "Part maandumas". Kuusalu valla fotokonkurss 2025. Autor: Andres Heintalu ...

Näitan: 1-20
Elemente lehe kohta20
of 125