Uudised ja teated

Tali on teel! Aeg hubasteks ja tubasteks tegevusteks ja meeleolukateks elamusteks. Foto: "Tantsuhoos", Kuusalu valla fotokonkurss 2025 Autor: Andrus Heintalu Kolmapäeval, 19....

Üritused Kuusalu vallas 19.-26. novembril

Tali on teel! Aeg hubasteks ja tubasteks tegevusteks ja meeleolukateks elamusteks. Foto: "Tantsuhoos", Kuusalu valla fotokonkurss 2025 Autor: Andrus Heintalu Kolmapäeval, 19....

Palju õnne, Harjumaa aasta vabaühendus 2025 - Veljo Tormise Kultuuriselts! Veljo Tormise Kultuuriselts pälvis tiitli põhjendusega, et selts on 2025. aastal tegutsenud nii Harjumaa ja...

Veljo Tormise Kultuuriselts pälvis Harju aasta vabaühenduse tiitli

Palju õnne, Harjumaa aasta vabaühendus 2025 - Veljo Tormise Kultuuriselts! Veljo Tormise Kultuuriselts pälvis tiitli põhjendusega, et selts on 2025. aastal tegutsenud nii Harjumaa ja...

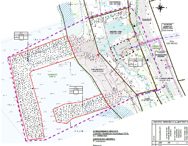
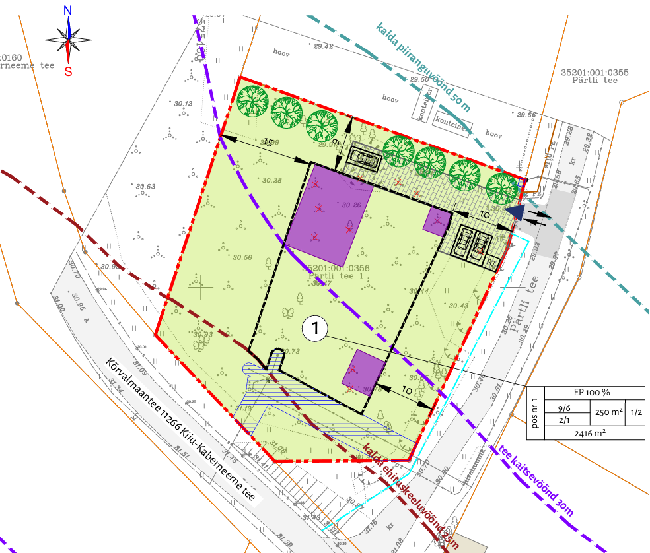
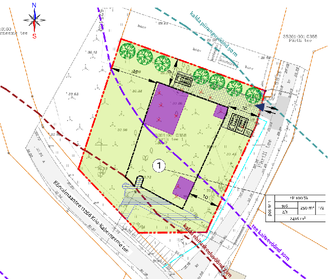
Kuusalu Vallavalitsus teatab, et algatas 19.juunil 2025 korraldusega nr 197 Valkla küla Joosepi (35301:001:0271) ja Tammejõe (35201:001:0360) kinnistute detailplaneeringu ja kinnitas...

Valkla küla Joosepi ja Tammejõe kinnistute detailplaneeringu eskiislahenduse avalik väljapanek

Kuusalu Vallavalitsus teatab, et algatas 19.juunil 2025 korraldusega nr 197 Valkla küla Joosepi (35301:001:0271) ja Tammejõe (35201:001:0360) kinnistute detailplaneeringu ja kinnitas...

Kuusalu valla näitetrupid riisusid koore Harjumaa harrastusteatrite festivalilt - palju õnne, oleme uhked! Grand Prix - Kuusalurahva Teater "Kogu aeg tuleb nutt peale ehk sinna, kuhu...

Preemiad Harjumaa harrastusteatrite festivalilt

Kuusalu valla näitetrupid riisusid koore Harjumaa harrastusteatrite festivalilt - palju õnne, oleme uhked! Grand Prix - Kuusalurahva Teater "Kogu aeg tuleb nutt peale ehk sinna, kuhu...

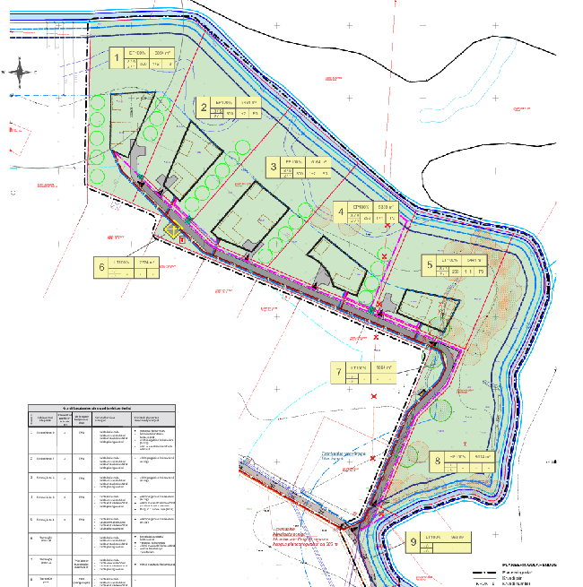
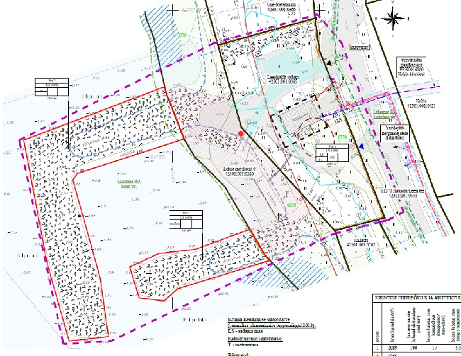
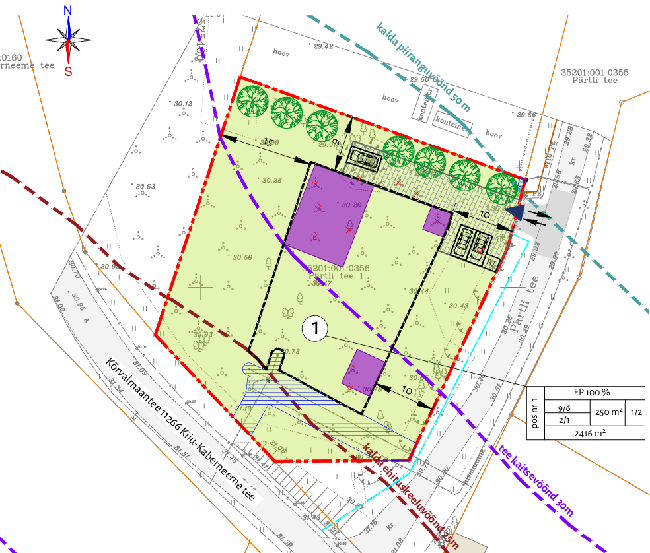
Kuusalu Vallavalitsus teatab, et algatas 27.juunil 2024 korraldusega nr 187 Leesi küla Leesikalda sadama kinnistu (42301:001:0365) detailplaneeringu ja kinnitas lähteülesande. Detailplaneeringu...

Leesi küla Leesikalda sadama eskiislahenduse avalik väljapanek

Kuusalu Vallavalitsus teatab, et algatas 27.juunil 2024 korraldusega nr 187 Leesi küla Leesikalda sadama kinnistu (42301:001:0365) detailplaneeringu ja kinnitas lähteülesande. Detailplaneeringu...

Aasta lõpp on märkamise ja tunnustamise aeg! Kuusalu valla 2025. aasta silmapaistvamate tegijate ja tegude nominentide esitamine on avatud  14. novembrist kuni 7. detsembrini...

Ootame nominente Kuusalu valla aasta tegija tunnustuskonkursile

Aasta lõpp on märkamise ja tunnustamise aeg! Kuusalu valla 2025. aasta silmapaistvamate tegijate ja tegude nominentide esitamine on avatud  14. novembrist kuni 7. detsembrini...

Uus nädal, uued kohtumised! Soovime kõigile põnevaid elamusi kohalike ettevõtmiste nautimisel. Foto: "Paukjärve torni juures", Kuusalu valla fotokonkurss 2025 Autor: Madis Praks ...

Üritused Kuusalu vallas 12.-20. novembril

Uus nädal, uued kohtumised! Soovime kõigile põnevaid elamusi kohalike ettevõtmiste nautimisel. Foto: "Paukjärve torni juures", Kuusalu valla fotokonkurss 2025 Autor: Madis Praks ...

Kuusalu valla huvihariduse ja huvitegevuse toetuse taotlusvoor on avatud kuni 1. detsembrini. Kuusalu valla huvihariduse ja -tegevuse projektitoetuse eesmärk on toetada Kuusalu valla...

Huvihariduse ja huvitegevuse taotlusvoor on avatud

Kuusalu valla huvihariduse ja huvitegevuse toetuse taotlusvoor on avatud kuni 1. detsembrini. Kuusalu valla huvihariduse ja -tegevuse projektitoetuse eesmärk on toetada Kuusalu valla...

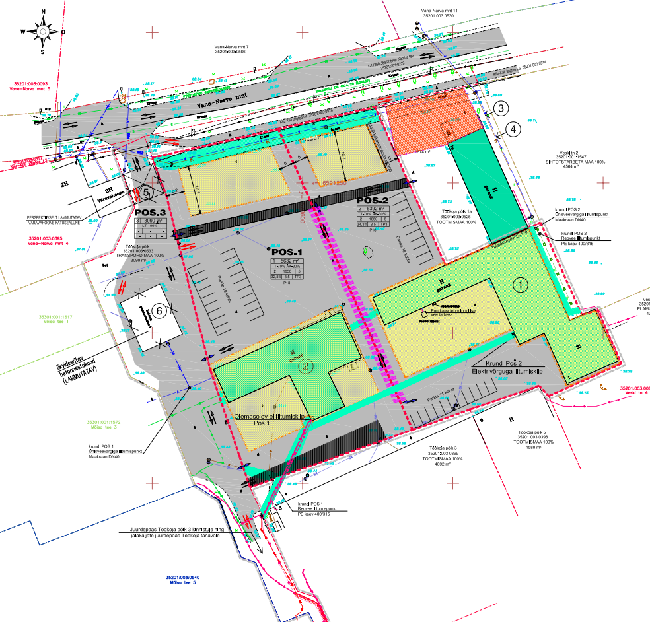
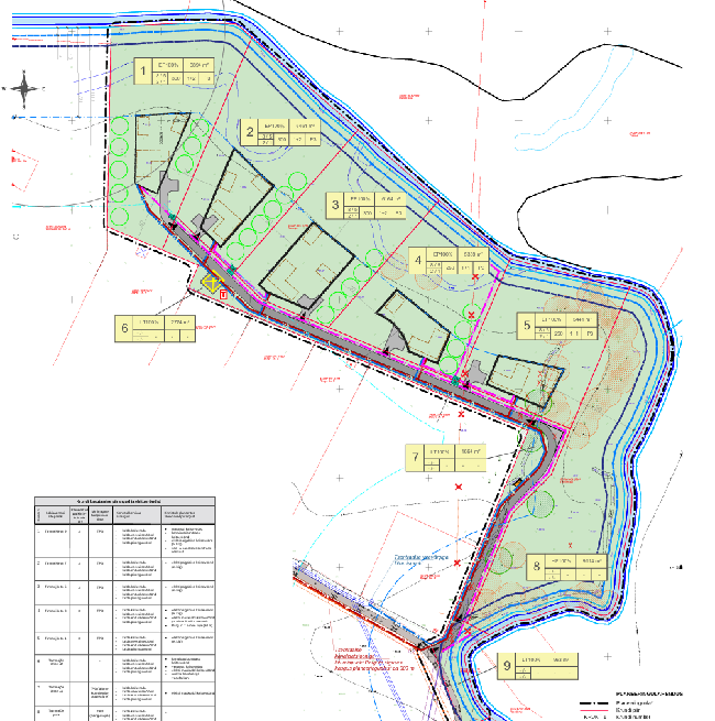
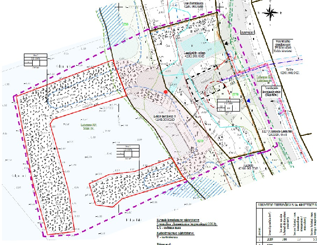
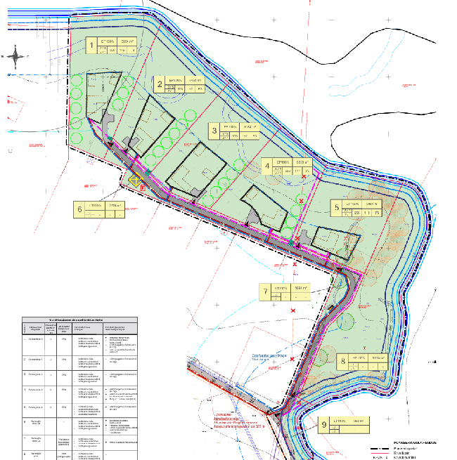
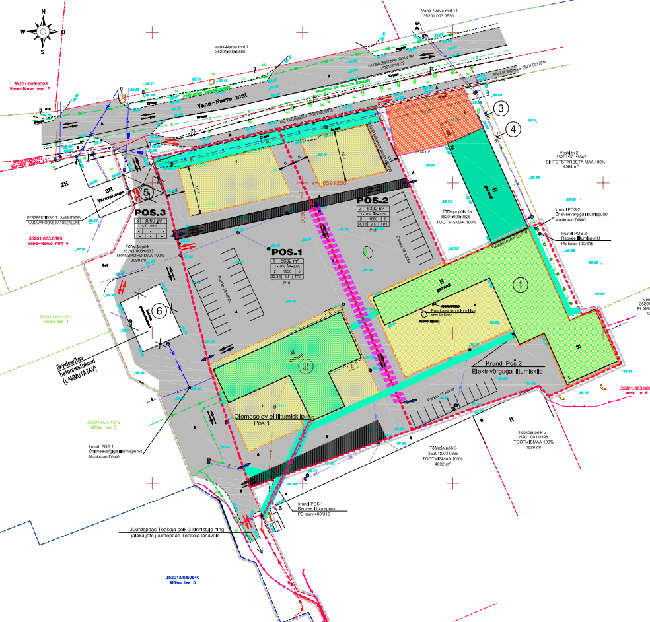
Kuusalu Vallavalitsus teatab, et Kuusalu Vallavolikogu algatas 18.juunil 2025 otsusega nr 20 Ilmastalu küla Metsaääre tee 1, 2, 3, 4, 5, 7, Metsaääre tee ja Metsaserva...

Ilmastalu küla Metsaääre tee 1, 2, 3, 4, 5, 7, Metsaääre tee ja Metsaserva kinnistute eskiislahenduse avalik väljapanek

Kuusalu Vallavalitsus teatab, et Kuusalu Vallavolikogu algatas 18.juunil 2025 otsusega nr 20 Ilmastalu küla Metsaääre tee 1, 2, 3, 4, 5, 7, Metsaääre tee ja Metsaserva...

Hilissügisesed pimedad ja vihmamärjad ajad on saabunud, hoiame hinge helge meie vallas pakutavate üritustega. Mõnusat nautimist! Foto: "Kuusalu valla triipkood", Kuusalu valla fotokonkurss...

Üritused Kuusalu vallas 5.-12. novembril

Hilissügisesed pimedad ja vihmamärjad ajad on saabunud, hoiame hinge helge meie vallas pakutavate üritustega. Mõnusat nautimist! Foto: "Kuusalu valla triipkood", Kuusalu valla fotokonkurss...

Ega tali taeva jää – ilmateenistus lubab juba peagi esimest lund, seega soovitame selleks valmis olla ning kontrollida üle oma kodutee.   Piirkondlikud talihooldajad...

Soovitame esimese lume eel üle kontrollida oma kodutee

Ega tali taeva jää – ilmateenistus lubab juba peagi esimest lund, seega soovitame selleks valmis olla ning kontrollida üle oma kodutee.   Piirkondlikud talihooldajad...

Kuusalu vallavalitsus on välja kuulutanud hanke "Valla eriotstarbeliste liinivedude teenindamine Kuusalu ja Loksa piirkonnas 2026. aastal". Hanke sisu on Kuusalu valla elanike transport valla...

Hanketeade: valla eriotstarbeliste liinivedude teenindamine

Kuusalu vallavalitsus on välja kuulutanud hanke "Valla eriotstarbeliste liinivedude teenindamine Kuusalu ja Loksa piirkonnas 2026. aastal". Hanke sisu on Kuusalu valla elanike transport valla...

Hanke eesmärk on transporditeenuse osutamine Kuusalu valla erivajadusega lastele 2026. aastal. Riigihanke viitenumber on 302341 ning hanke dokumendid ja andmed nähtavad riigihangete...

Hanketeade: Kuusalu valla erivajadusega laste transporditeenuse osutamine

Hanke eesmärk on transporditeenuse osutamine Kuusalu valla erivajadusega lastele 2026. aastal. Riigihanke viitenumber on 302341 ning hanke dokumendid ja andmed nähtavad riigihangete...

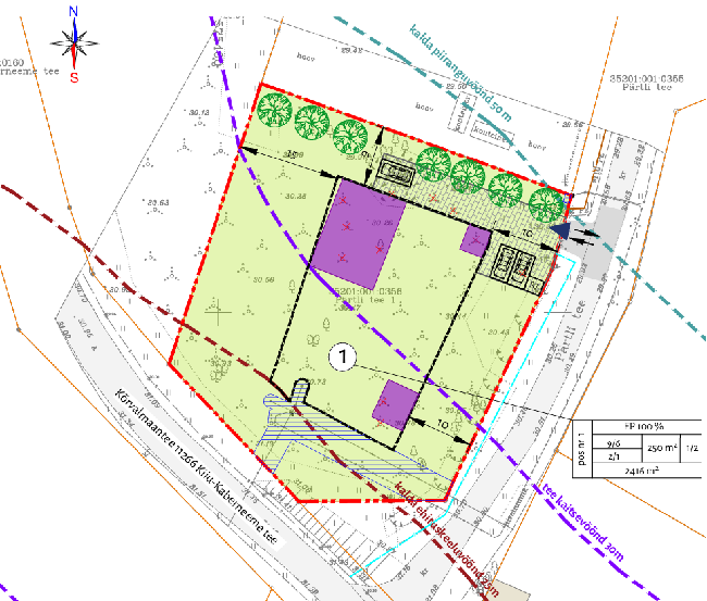
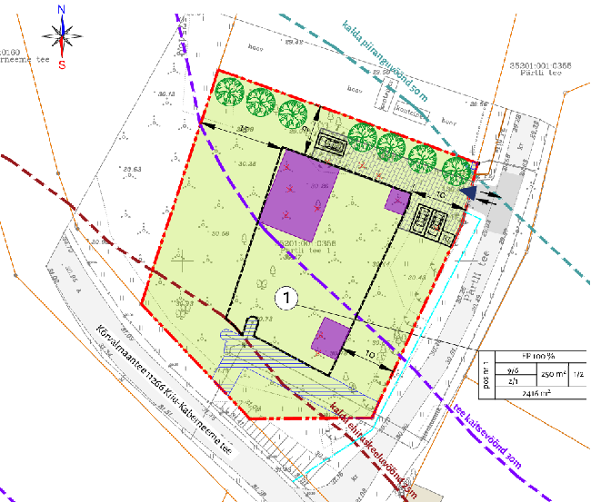
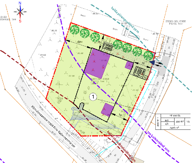
Kuusalu Vallavalitsus teatab, et algatas 16.oktoobril 2025 korraldusega nr 284 Kaberla küla Kutikse (35201:001:0245) kinnistu detailplaneeringu ja kinnitas lähteülesande.   ...

Kaberla küla Kutikse kinnistu detailplaneeringu algatamine ja lähteülesande kinnitamine

Kuusalu Vallavalitsus teatab, et algatas 16.oktoobril 2025 korraldusega nr 284 Kaberla küla Kutikse (35201:001:0245) kinnistu detailplaneeringu ja kinnitas lähteülesande.   ...

Päästeamet annab teada, et teisipäeval, 4. novembril kell 10-16 tehakse Kuusalu vallas Suru mõisa lähedal keskpolügooni äärealal ühe sireeniga helitugevuse mõõtmise jätkuteste. Ohtu ei ole ja...

Kuusalu vallas testitakse sireeni helitugevust ja erinevaid helifaile

Päästeamet annab teada, et teisipäeval, 4. novembril kell 10-16 tehakse Kuusalu vallas Suru mõisa lähedal keskpolügooni äärealal ühe sireeniga helitugevuse mõõtmise jätkuteste. Ohtu ei ole ja...

Täna, 31. oktoobril sõlmisid valimisliit Ühine Kodu, erakond Parempoolsed ja Eesti Keskerakond koalitsioonilepingu. Koalitsioonilepinguga saab tutvuda SIIN . Ühise Kodu valimisliidu...

Kuusalu valla koalitsioonileping on sõlmitud: loe ka lepingu sisu

Täna, 31. oktoobril sõlmisid valimisliit Ühine Kodu, erakond Parempoolsed ja Eesti Keskerakond koalitsioonilepingu. Koalitsioonilepinguga saab tutvuda SIIN . Ühise Kodu valimisliidu...

Otsime noort, kellele omistada aunimetus Kuusalu valla aasta noor 2025 . Aasta noor on: 7-26-aastane Kuusalu valla registrijärgne elanik Ettevõtlik ja silmapaistev Oma...

Aita leida Kuusalu valla AASTA NOOR 2025

Otsime noort, kellele omistada aunimetus Kuusalu valla aasta noor 2025 . Aasta noor on: 7-26-aastane Kuusalu valla registrijärgne elanik Ettevõtlik ja silmapaistev Oma...

On saabumas hingedeaeg ning kohalike ürituste kalender on seekord tavapärasest hõredam, kuid kindlasti mitte vähem kvaliteetsem. Mõnusat nautimist, aja maha võtmist ning enese sisse vaatamist! ...

Üritused Kuusalu vallas 31. oktoobril – 6. novembril

On saabumas hingedeaeg ning kohalike ürituste kalender on seekord tavapärasest hõredam, kuid kindlasti mitte vähem kvaliteetsem. Mõnusat nautimist, aja maha võtmist ning enese sisse vaatamist! ...

Neljapäeval, 30.10, vahemikus kell 14-15 viib päästeamet koos siseministeeriumi infotehnoloogia- ja arenduskeskusega (SMIT) läbi sireenivõrgustiku tehnilise testi. Kõikides...

Päästeamet testib neljapäeval suuremates asulates sireenvõrgustiku valmisolekut

Neljapäeval, 30.10, vahemikus kell 14-15 viib päästeamet koos siseministeeriumi infotehnoloogia- ja arenduskeskusega (SMIT) läbi sireenivõrgustiku tehnilise testi. Kõikides...

Infoks koolibusside kasutajatele - Kuusalu Keskkooli uue hooneosa ehituse ajal õppetööks kasutatud asenduspindadel on töö lõppenud, kogu koolipere on koos ning bussid sõidavad taas tavapärase...

Koolibussid sõidavad taas tavapärase graafiku järgi

Infoks koolibusside kasutajatele - Kuusalu Keskkooli uue hooneosa ehituse ajal õppetööks kasutatud asenduspindadel on töö lõppenud, kogu koolipere on koos ning bussid sõidavad taas tavapärase...

Näitan: 1-20
Elemente lehe kohta20
of 125