Uudised ja teated

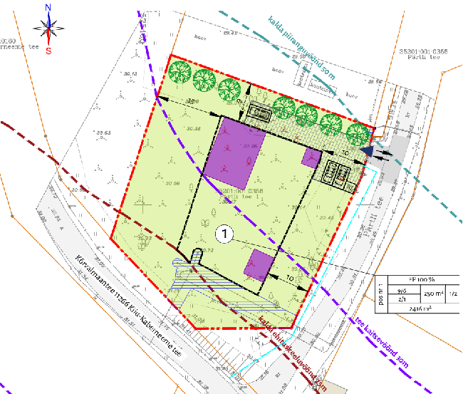
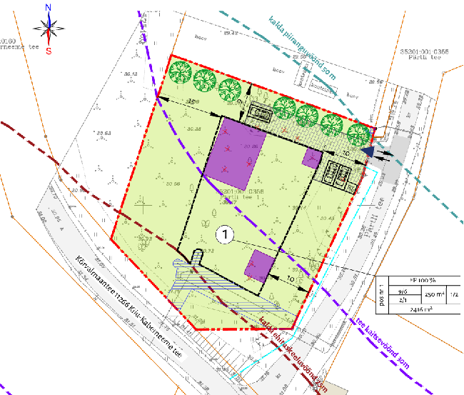
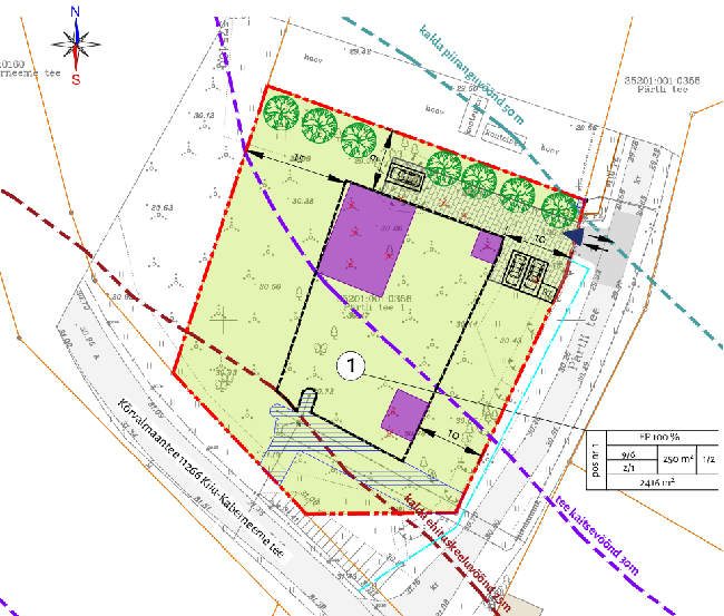
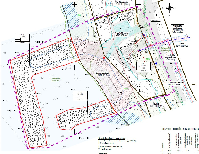
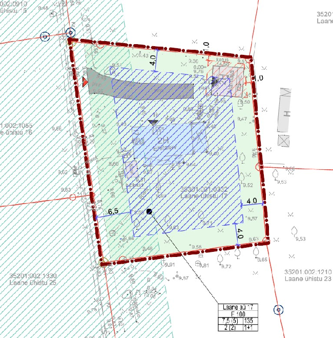
Anname teada, et Kuusalu Vallavalitsuse 16. oktoobri 2025 korraldusega nr 287  võeti vastu Andineeme küla Tülivere ühistu 19 (35202:002:0190)   kinnistu detailplaneering. ...

Andineeme küla Tülivere ühistu 19 kinnistu detailplaneeringu avalik väljapanek

Anname teada, et Kuusalu Vallavalitsuse 16. oktoobri 2025 korraldusega nr 287  võeti vastu Andineeme küla Tülivere ühistu 19 (35202:002:0190)   kinnistu detailplaneering. ...

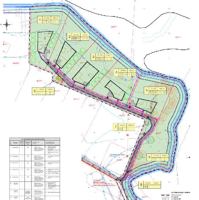
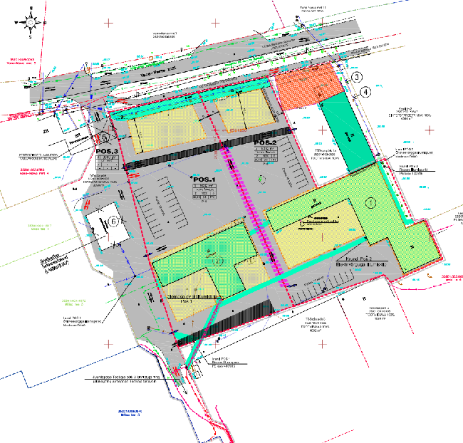
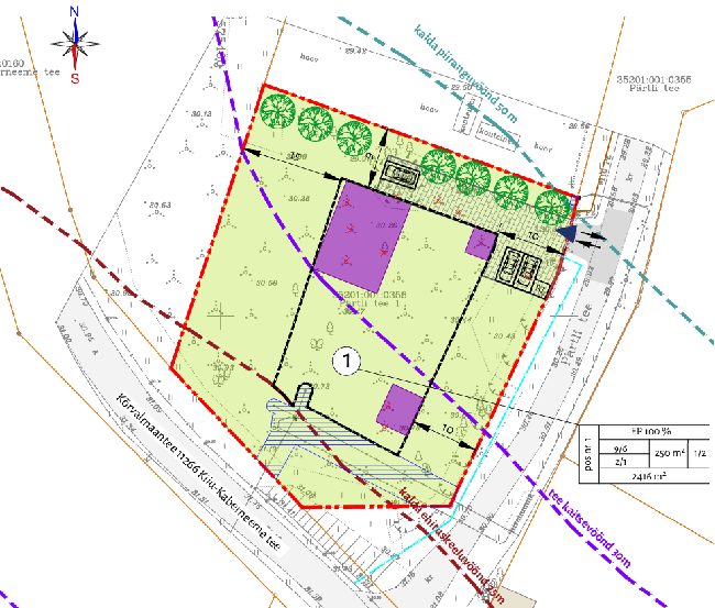
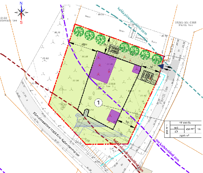
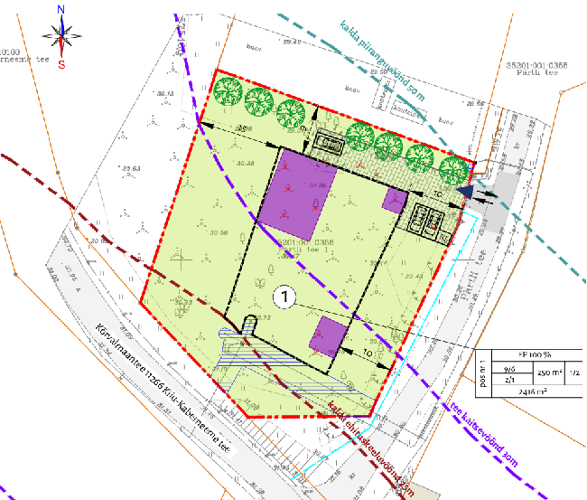
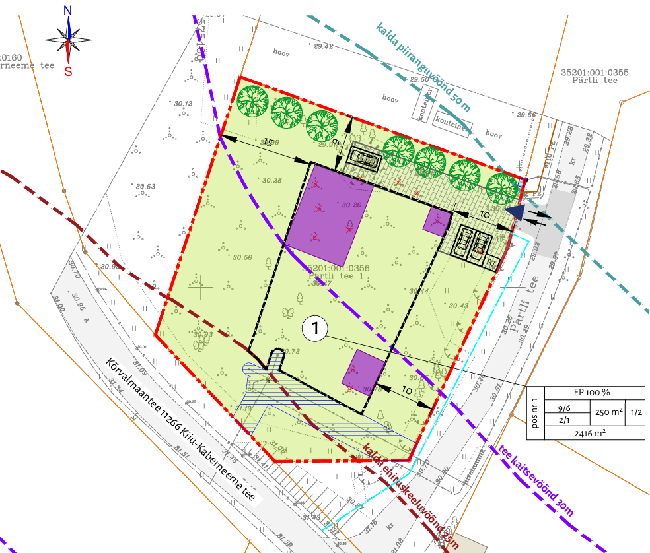
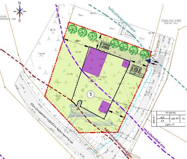
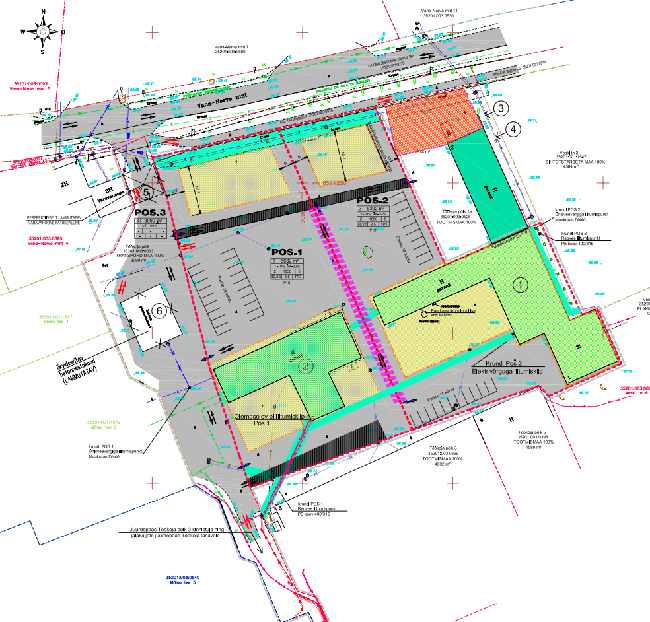
Anname teada, et Kuusalu Vallavalitsuse 16.oktoobri 2025 korraldusega nr 285 võeti vastu Sõitme küla Liivametsa (35301:001:0930)   kinnistu detailplaneering.  Detailplaneeringu...

Sõitme küla Liivametsa kinnistu detailplaneeringu avalik väljapanek

Anname teada, et Kuusalu Vallavalitsuse 16.oktoobri 2025 korraldusega nr 285 võeti vastu Sõitme küla Liivametsa (35301:001:0930)   kinnistu detailplaneering.  Detailplaneeringu...

Hääled loetakse avalikult üle 20. oktoobril kell 10 Kuusalu vallamajas Kuusalu vallas andsid oma (kehtiva) hääle 3165 valijat ning valimisaktiivsus oli 61,5%, mis on üle Eesti keskmise. Suur...

Esialgne valimistulemus on selgunud

Hääled loetakse avalikult üle 20. oktoobril kell 10 Kuusalu vallamajas Kuusalu vallas andsid oma (kehtiva) hääle 3165 valijat ning valimisaktiivsus oli 61,5%, mis on üle Eesti keskmise. Suur...

Head valimispäeva! Täna kell 9-20 on avatud kaks hääletamisruumi - Hugo Lepnurme Kuusalu Kunstide Koolis ning Kolgaküla rahvamajas. E-hääletada enam ei saa, küll aga saab tulla...

Täna on valimispäev! Valima saab tulla Kuusalu kunstidekooli või Kolgaküla rahvamajja

Head valimispäeva! Täna kell 9-20 on avatud kaks hääletamisruumi - Hugo Lepnurme Kuusalu Kunstide Koolis ning Kolgaküla rahvamajas. E-hääletada enam ei saa, küll aga saab tulla...

Kuusalu keskkooli koolipere ootab kõiki huvilisi tutvuma uue liginullenergiahoonega pühapäeval, 26. oktoobril kell 11-14 . Sissepääs kooli peaukse kaudu.  

Avatud uste päevad Kuusalu keskkoolis

Kuusalu keskkooli koolipere ootab kõiki huvilisi tutvuma uue liginullenergiahoonega pühapäeval, 26. oktoobril kell 11-14 . Sissepääs kooli peaukse kaudu.  

Üks oluline samm on taas astutud – ehitaja andis eile, 16. oktoobril vallale üle Kuusalu Keskkooli uue liginullenergiahoone, mis on ehitatud endise võimla ning vana algklasside hooneosa asemele....

Ehitaja andis vallale üle Kuusalu keskkooli uue liginullenergiahoone

Üks oluline samm on taas astutud – ehitaja andis eile, 16. oktoobril vallale üle Kuusalu Keskkooli uue liginullenergiahoone, mis on ehitatud endise võimla ning vana algklasside hooneosa asemele....

Olete oodatud osa saama meie vallas pakutavatest tegevustest, mida jätkub taaskord igale maitsele! Kui midagi on nimekirjast puudu, palume kommentaarides teada anda. Foto: "Üksildane...

Üritused Kuusalu vallas 16.-23. oktoobril

Olete oodatud osa saama meie vallas pakutavatest tegevustest, mida jätkub taaskord igale maitsele! Kui midagi on nimekirjast puudu, palume kommentaarides teada anda. Foto: "Üksildane...

Kuusalu valla haridusasutuste töötajad käisid inspiratsiooni saamas ja mõtteid vahetamas Soomes meie sõprusvallas Sipoos. Külastusreis toimus 7. oktoobril ja delegatsiooni kuulusid 19...

Haridusvaldkonna õppereis Soome Sipoosse

Kuusalu valla haridusasutuste töötajad käisid inspiratsiooni saamas ja mõtteid vahetamas Soomes meie sõprusvallas Sipoos. Külastusreis toimus 7. oktoobril ja delegatsiooni kuulusid 19...

Oled mõelnud, et tänavu sügisel võiks leida proovida midagi täiesti uut? Täiendada ennast mõne vahva oskusega? Panna ennast proovile? Kui jah, siis Kuusalu vallas stardib homsest täiskasvanud...

Homsest stardib Kuusalu vallas täiskasvanud õppija nädal - tulge õpiampsudele!

Oled mõelnud, et tänavu sügisel võiks leida proovida midagi täiesti uut? Täiendada ennast mõne vahva oskusega? Panna ennast proovile? Kui jah, siis Kuusalu vallas stardib homsest täiskasvanud...

Algas teine valimispäev! Jätkuvalt saab e-hääletada ning jaoskonda tulla Kiiu mõisa kell 12-20. Alates homsest Kiius jaoskonnas enam hääletada ei saa. Kus saab, vaata siit: ...

Algas teine valimispäev: ootame jaoskonda Kiidu või e-hääletama

Algas teine valimispäev! Jätkuvalt saab e-hääletada ning jaoskonda tulla Kiiu mõisa kell 12-20. Alates homsest Kiius jaoskonnas enam hääletada ei saa. Kus saab, vaata siit: ...

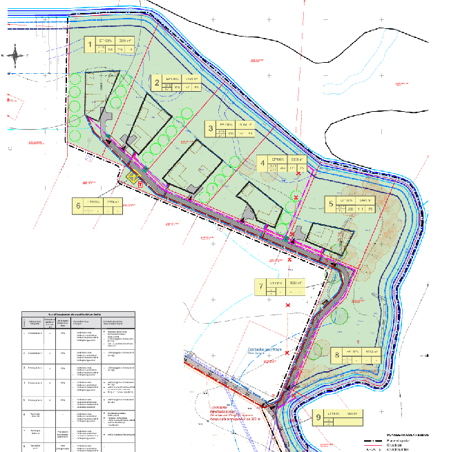
Kuusalu Vallavalitsus teatab, et Kuusalu Vallavolikogu algatas 1.oktoobril 2025 otsusega nr 34 Ilmastalu küla Kalda tn 17a (35203:004:0255), Kalda tn 19a (35203:004:0256) ja Kalda tn 21a...

Ilmastalu küla Kalda tn 17a, 19a ja 21a kinnistute detailplaneeringu algatamine

Kuusalu Vallavalitsus teatab, et Kuusalu Vallavolikogu algatas 1.oktoobril 2025 otsusega nr 34 Ilmastalu küla Kalda tn 17a (35203:004:0255), Kalda tn 19a (35203:004:0256) ja Kalda tn 21a...

13. oktoobril pisut tormisel päeval tähistasime olulist verstaposti meie valla meretraditsioonide edendamises. Avasime Salmistu sadama multifunktsionaalse hoone, kus saab korraldada kalanduse ja...

Salmistu sadamahoone on avatud

13. oktoobril pisut tormisel päeval tähistasime olulist verstaposti meie valla meretraditsioonide edendamises. Avasime Salmistu sadama multifunktsionaalse hoone, kus saab korraldada kalanduse ja...

Kuusalu valla valimisdebatt Kolgaküla rahvamajas algab 13. oktoobril kell 18. Otseülekannet näeb Kuusalu valla Youtube'i kanalist.   Debatil esinevad: Eesti Keskerakond – ...

Kuusalu valla valimisdebati otseülekanne

Kuusalu valla valimisdebatt Kolgaküla rahvamajas algab 13. oktoobril kell 18. Otseülekannet näeb Kuusalu valla Youtube'i kanalist.   Debatil esinevad: Eesti Keskerakond – ...

KOV valimiste e-hääletus avatakse täna kell 9 ning jaoskond kell 12. Tuletame siinkohal meelde, kus ja millal on avatud valimisjaoskonnad Kuusalu vallas: Kiiu mõisas E 13.10 ja T 14.10 kell...

Täna algab KOV valimiste e-hääletus ning on avatud jaoskond Kiiu mõisas

KOV valimiste e-hääletus avatakse täna kell 9 ning jaoskond kell 12. Tuletame siinkohal meelde, kus ja millal on avatud valimisjaoskonnad Kuusalu vallas: Kiiu mõisas E 13.10 ja T 14.10 kell...

Kuusalu vallas traditsiooniks saanud orienteerumismängu kolmanda hooaja kokkuvõtted on tehtud ning kõige innukamad orienteerujad ka tänatud. Raamatuaastale pühendatud orienteerumismäng...

Tänavuse orienteerumismängu lõpetas kultuuririkas tänuõhtu

Kuusalu vallas traditsiooniks saanud orienteerumismängu kolmanda hooaja kokkuvõtted on tehtud ning kõige innukamad orienteerujad ka tänatud. Raamatuaastale pühendatud orienteerumismäng...

Palju õnne, meie armas Kuusalu vald! Meie koduvalla 87. sünnipäev oli juba mõned päevad tagasi, 7. oktoobril, kuid pidu toimus hoopis täna õhtul Kuusalu rahvamajas koos saalitäie rahvaga. ...

Kuusalu valla 87. aastapäeva pidu

Palju õnne, meie armas Kuusalu vald! Meie koduvalla 87. sünnipäev oli juba mõned päevad tagasi, 7. oktoobril, kuid pidu toimus hoopis täna õhtul Kuusalu rahvamajas koos saalitäie rahvaga. ...

Kuusalu valla traditsioonilisele fotokonkursile esitati tänavu 117 imelist fotot. Suur tänu kõikide fotode esitajatele! 10. oktoobril Kuusalu valla 87. aastapäeva peol selgusid ka parimatest...

Fotokonkursi võitjad on selgunud

Kuusalu valla traditsioonilisele fotokonkursile esitati tänavu 117 imelist fotot. Suur tänu kõikide fotode esitajatele! 10. oktoobril Kuusalu valla 87. aastapäeva peol selgusid ka parimatest...

Spordi treeningrühmade toetusvooru saab taotlusi esitada alates tänasest, 10. oktoobrist kuni 3. novembrini 2025. Enne taotlemist palume kindlasti tutvuda kehtiva korraga: ...

Spordi treeningrühmade taotlusvoor on avatud

Spordi treeningrühmade toetusvooru saab taotlusi esitada alates tänasest, 10. oktoobrist kuni 3. novembrini 2025. Enne taotlemist palume kindlasti tutvuda kehtiva korraga: ...

ÜRITUSED KUUSALU VALLAS 9.-16. oktoobril Käimas on Kuusalu valla sünnipäevanädal ning peagi on algamas kohalike omavalitsuse volikogude valimisperiood! Kutsume kõiki sellel pidulikumal...

Üritused Kuusalu vallas 9.-16. oktoobril

ÜRITUSED KUUSALU VALLAS 9.-16. oktoobril Käimas on Kuusalu valla sünnipäevanädal ning peagi on algamas kohalike omavalitsuse volikogude valimisperiood! Kutsume kõiki sellel pidulikumal...

Head Muuksi küla elanikud - teid oodatakse koosolekule Muuksi küla koosolek toimub 25. oktoobril kell 10.30 Toomani talus. Päevakorras on külavanema tagasiastumine, uue külavanema...

Kutse Muuksi küla koosolekule

Head Muuksi küla elanikud - teid oodatakse koosolekule Muuksi küla koosolek toimub 25. oktoobril kell 10.30 Toomani talus. Päevakorras on külavanema tagasiastumine, uue külavanema...

Näitan: 1-20
Elemente lehe kohta20
of 124