Uudised ja teated

Avatud on Kuusalu valla KOGUKONNAELU EDENDAJA 2025 rahvahääletus! Täname kõiki, kes esitasid kandidaate Kuusalu valla aasta tegijate konkursile. Konkurss tõestas taas, et meie vallas on...

Algas Kuusalu valla aasta kogukonnaelu edendaja rahvahääletus

Avatud on Kuusalu valla KOGUKONNAELU EDENDAJA 2025 rahvahääletus! Täname kõiki, kes esitasid kandidaate Kuusalu valla aasta tegijate konkursile. Konkurss tõestas taas, et meie vallas on...

Peamised tööülesanded on hoonete ja rajatiste projekteerimistingimuste taotluste menetlemine, ehitusalase riikliku järelevalve teostamine, ehitiste ehitamise ja kasutamise seaduslikkuse ning...

Kuusalu vallavalitsus pakub tööd ehitusõiguse spetsialist-juristile

Peamised tööülesanded on hoonete ja rajatiste projekteerimistingimuste taotluste menetlemine, ehitusalase riikliku järelevalve teostamine, ehitiste ehitamise ja kasutamise seaduslikkuse ning...

Päästeamet testib sel kolmapäeval, 10. detsembril 2025 ohuteavituse süsteemi EE-ALARM. Testimise päeval saadetakse mobiiltelefonidesse SMS eelinfoga testi toimumise kohta. Vahemikus 15.00–15.10...

Päästeamet testib kolmapäeval õhusireene

Päästeamet testib sel kolmapäeval, 10. detsembril 2025 ohuteavituse süsteemi EE-ALARM. Testimise päeval saadetakse mobiiltelefonidesse SMS eelinfoga testi toimumise kohta. Vahemikus 15.00–15.10...

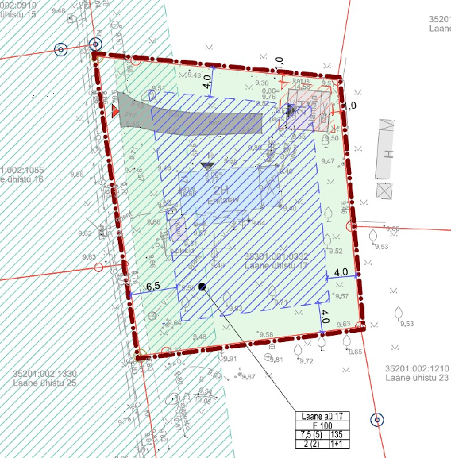
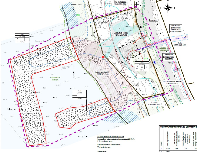
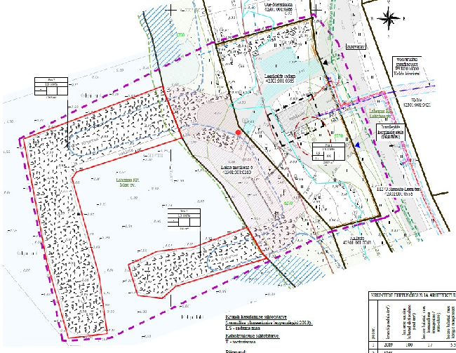
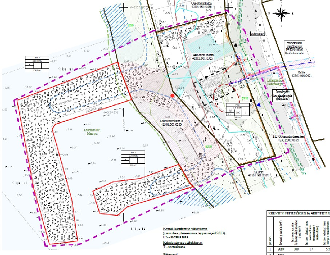
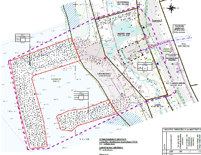
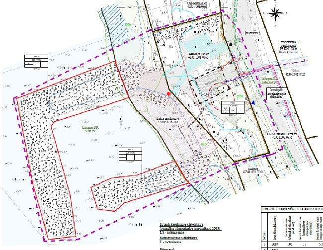
Kuusalu Vallavalitsus teatab, et algatas 13.novembril 2025 korraldusega nr 315 Salmistu küla Laane ühistu 17 (35301:001:0332) kinnistu detailplaneeringu ja kinnitas lähteülesande....

Salmistu küla Laane ühistu 17 kinnistu detailplaneeringu eskiislahenduse tutvustus

Kuusalu Vallavalitsus teatab, et algatas 13.novembril 2025 korraldusega nr 315 Salmistu küla Laane ühistu 17 (35301:001:0332) kinnistu detailplaneeringu ja kinnitas lähteülesande....

Kuusalu Vallavolikogu 11. koosseisu 2. istung toimub kolmapäeval, 10. detsembril 2025 kell 8.30 Kiiu mõisas (Mõisa tee 17). PÄEVAKORRA PROJEKT: 1. Isikliku kasutusõiguse...

Kutse volikogu istungile

Kuusalu Vallavolikogu 11. koosseisu 2. istung toimub kolmapäeval, 10. detsembril 2025 kell 8.30 Kiiu mõisas (Mõisa tee 17). PÄEVAKORRA PROJEKT: 1. Isikliku kasutusõiguse...

Õues läheb järjest pimedamaks, ka lumevalgus veel ei saabu. Teeme taas ülevaate, mida käesoleval nädalal Kuusalu vallas teha saab. Kolmapäeval, 3. detsembril Kell 10-15.20 Kuusalu...

Üritused Kuusalu vallas 3.-7. detsembril

Õues läheb järjest pimedamaks, ka lumevalgus veel ei saabu. Teeme taas ülevaate, mida käesoleval nädalal Kuusalu vallas teha saab. Kolmapäeval, 3. detsembril Kell 10-15.20 Kuusalu...

Kuusalu vallavolikogu uus koosseis pidas täna hommikul oma esimese istungi – volikogu esimeheks valiti taas Ulve Märtson, aseesimeheks Värner Lootsmann. Volikogu esimehe kandidaadiks esitati...

Volikogu esimeheks valiti Ulve Märtson, aseesimeheks Värner Lootsmann

Kuusalu vallavolikogu uus koosseis pidas täna hommikul oma esimese istungi – volikogu esimeheks valiti taas Ulve Märtson, aseesimeheks Värner Lootsmann. Volikogu esimehe kandidaadiks esitati...

Kuusalu Vallavolikogu 11. koosseisu esimene istung toimub 3. detsembril 2025 kell 8.30 Kiiu mõisas aadressil Mõisa tee 17, Kiiu (Kuusalu vallavalitsuse I korruse saalis).  PÄEVAKORRA...

Kuusalu vallavolikogu 3. detsembri istungi videoülekanne

Kuusalu Vallavolikogu 11. koosseisu esimene istung toimub 3. detsembril 2025 kell 8.30 Kiiu mõisas aadressil Mõisa tee 17, Kiiu (Kuusalu vallavalitsuse I korruse saalis).  PÄEVAKORRA...

Kodanikukampaania 2025  "Ole päriselt meiega" Kui elad Kuusalu vallas, aga pole end vallaelanikuks registreerinud, on nüüd parim aeg, et olla päriselt meiega! Kodanikukampaania...

Detsember on kodanikukuu - aitäh, et oled päriselt meiega

Kodanikukampaania 2025  "Ole päriselt meiega" Kui elad Kuusalu vallas, aga pole end vallaelanikuks registreerinud, on nüüd parim aeg, et olla päriselt meiega! Kodanikukampaania...

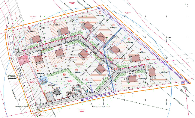
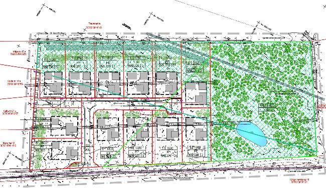
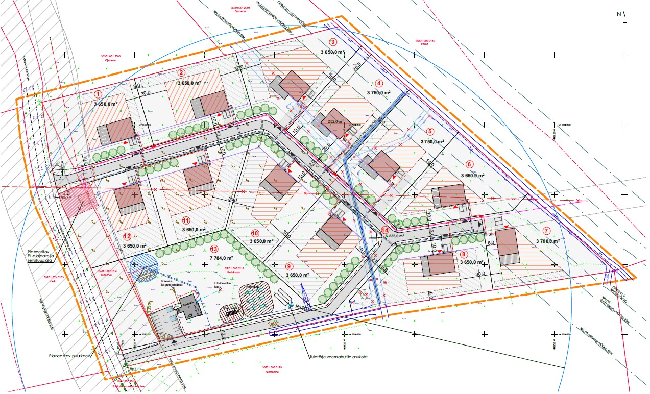
Kuusalu Vallavalitsus teatab, et Kuusalu Vallavolikogu algatas 30.aprillil 2025 otsusega nr 8 Kodasoo küla Seltsimaja (35201:003:0212) ja Teeserva (35201:003:0204) kinnistute detailplaneeringu...

Kodasoo küla Seltsimaja ja Teeserva kinnistute detailplaneeringu eskiislahenduse avalik väljapanek

Kuusalu Vallavalitsus teatab, et Kuusalu Vallavolikogu algatas 30.aprillil 2025 otsusega nr 8 Kodasoo küla Seltsimaja (35201:003:0212) ja Teeserva (35201:003:0204) kinnistute detailplaneeringu...

Kingime jõulukommipaki Kuusalu valla eelkooliealistele lastele ja kõikidele kuni 19-aastastele õpilastele. Eelkooliealised lapsed, kes käivad Kuusalu valla või Loksa linna lasteaias ning kuni...

Laste jõulukommipakke saab kätte alates 1. detsembrist

Kingime jõulukommipaki Kuusalu valla eelkooliealistele lastele ja kõikidele kuni 19-aastastele õpilastele. Eelkooliealised lapsed, kes käivad Kuusalu valla või Loksa linna lasteaias ning kuni...

Kuusalu Vallavolikogu 11. koosseisu esimene istung toimub 3. detsembril 2025 kell 8.30 Kiiu mõisas aadressil Mõisa tee 17, Kiiu (Kuusalu vallavalitsuse I korruse saalis).    ...

Kutse volikogu istungile

Kuusalu Vallavolikogu 11. koosseisu esimene istung toimub 3. detsembril 2025 kell 8.30 Kiiu mõisas aadressil Mõisa tee 17, Kiiu (Kuusalu vallavalitsuse I korruse saalis).    ...

Pime aeg on saabunud, kuid esimene advent muudab eluolu kindlasti valgemaks. Ootame osalema Kuusalu vallas toimuvatel mitmekülgsetes ja sisukates ettevõtmistes. Foto: pixabay ...

Üritused Kuusalu vallas 26.11-2.12

Pime aeg on saabunud, kuid esimene advent muudab eluolu kindlasti valgemaks. Ootame osalema Kuusalu vallas toimuvatel mitmekülgsetes ja sisukates ettevõtmistes. Foto: pixabay ...

Kiiu Kiigepõnni lasteaed otsib oma meeskonda täiskohaga kokka. Kandideerimine kestab 12. detsembrini ning tööle oodatakse asuma uue aasta jaanuarist.

Kiiu lasteaed pakub tööd kokale

Kiiu Kiigepõnni lasteaed otsib oma meeskonda täiskohaga kokka. Kandideerimine kestab 12. detsembrini ning tööle oodatakse asuma uue aasta jaanuarist.

Kuusalu valla valimiskomisjon kinnitas täna, 25. novembril kohalike volikogude valimistulemused ning uude volikogusse valitud isikute volitused hakkavad kehtima alates homsest, 26. novembrist. ...

Valimistulemused on ametlikult välja kuulutatud

Kuusalu valla valimiskomisjon kinnitas täna, 25. novembril kohalike volikogude valimistulemused ning uude volikogusse valitud isikute volitused hakkavad kehtima alates homsest, 26. novembrist. ...

Kuusalu Keskkooli gümnaasiumi näitetrupp Kõik Kordub pälvis reedel ja laupäeval toimunud festivalil Betti Alverile pühendatud XXXIII luulepäevade festivalil „Tähetund" laureaaditiitli kavaga...

Palju õnne! Kuusalu kooli näitetrupp Kõik Kordub tõi koju laureaaditiitli

Kuusalu Keskkooli gümnaasiumi näitetrupp Kõik Kordub pälvis reedel ja laupäeval toimunud festivalil Betti Alverile pühendatud XXXIII luulepäevade festivalil „Tähetund" laureaaditiitli kavaga...

Aasta lõpp on märkamise aeg!  Tunnustuse avaldajatega on ühinenud Kuusalu Ettevõtjate Liit , kes ootab valla aasta tegijate konkursil nominente kategooriasse " KuEL tunnustab 2025 ". ...

Kuusalu Ettevõtjate Liit ootab nominente aasta tootmisettevõtte tiitlile

Aasta lõpp on märkamise aeg!  Tunnustuse avaldajatega on ühinenud Kuusalu Ettevõtjate Liit , kes ootab valla aasta tegijate konkursil nominente kategooriasse " KuEL tunnustab 2025 ". ...

Palju õnne meie armsale Kuusalu raamatukogule 105. sünnipäeva puhul! Eile, 20. novembril tähistas Kuusalu raamatukogu oma sünnipäeva tordi ja kohvilauaga, esinema tuli ka kirjanik ja...

Kuusalu raamatukogu tähistas 105. sünnipäeva

Palju õnne meie armsale Kuusalu raamatukogule 105. sünnipäeva puhul! Eile, 20. novembril tähistas Kuusalu raamatukogu oma sünnipäeva tordi ja kohvilauaga, esinema tuli ka kirjanik ja...

Valminud on Kuusalu valla rahulolu-uuringu kokkuvõte - suur tänu kõikidele vastajatele, kes võtsid aja vastamiseks ning kommentaaride lisamiseks, teie tagasiside on meile väga kasulik! On...

Kuusalu valla rahulolu-uuringu tulemused

Valminud on Kuusalu valla rahulolu-uuringu kokkuvõte - suur tänu kõikidele vastajatele, kes võtsid aja vastamiseks ning kommentaaride lisamiseks, teie tagasiside on meile väga kasulik! On...

Tali on teel! Aeg hubasteks ja tubasteks tegevusteks ja meeleolukateks elamusteks. Foto: "Tantsuhoos", Kuusalu valla fotokonkurss 2025 Autor: Andrus Heintalu Kolmapäeval, 19....

Üritused Kuusalu vallas 19.-26. novembril

Tali on teel! Aeg hubasteks ja tubasteks tegevusteks ja meeleolukateks elamusteks. Foto: "Tantsuhoos", Kuusalu valla fotokonkurss 2025 Autor: Andrus Heintalu Kolmapäeval, 19....

Näitan: 1-20
Elemente lehe kohta20
of 126