Uudised ja teated

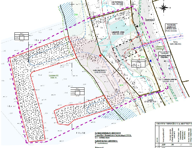
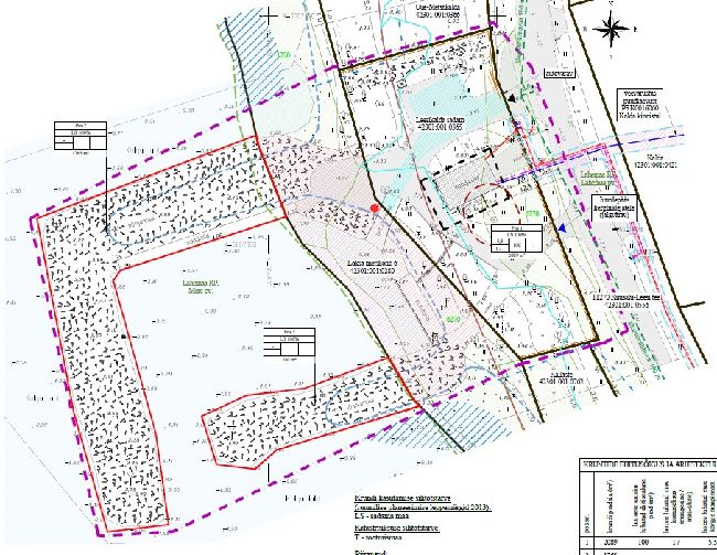
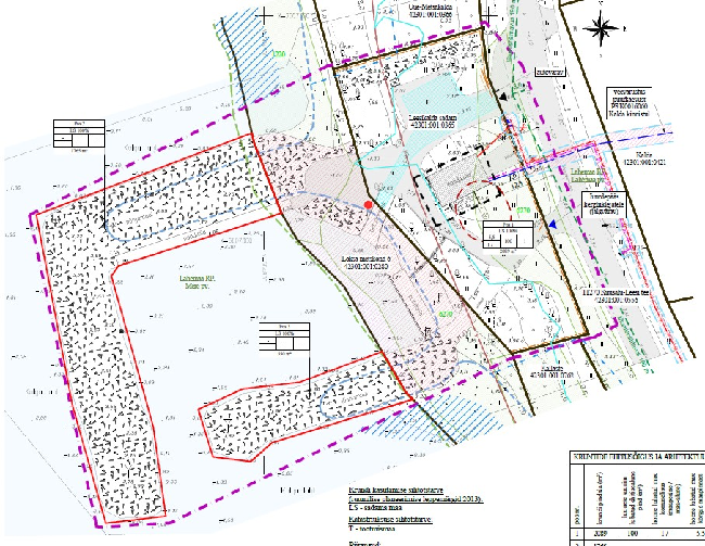
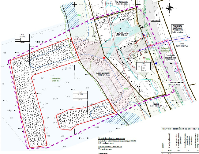
Kuusalu Vallavalitsus teatab, et Kuusalu Vallavolikogu kehtestas 25.märtsil 2026 otsusega nr 3 Kaberla küla Lehe kinnistu (35201:001:0297) detailplaneeringu.   ...

Kaberla küla Lehe kinnistu detailplaneeringu kehtestamine

Kuusalu Vallavalitsus teatab, et Kuusalu Vallavolikogu kehtestas 25.märtsil 2026 otsusega nr 3 Kaberla küla Lehe kinnistu (35201:001:0297) detailplaneeringu.   ...

Maa- ja ruumiamet korraldab avalikul elektroonilisel enampakkumisel riigi omandis olevate kinnisasjade kasutusse andmist. Pakkumisi saab elektrooniliselt esitada riigimaa oksjonikeskkonnas...

Enampakkumise teade: riigimaa andmine põllumajanduslikuks kasutamiseks

Maa- ja ruumiamet korraldab avalikul elektroonilisel enampakkumisel riigi omandis olevate kinnisasjade kasutusse andmist. Pakkumisi saab elektrooniliselt esitada riigimaa oksjonikeskkonnas...

Aprilli algus on tujukas, kuid kahtlemata pühademeeleolus! Mõnusat nautimist! Reedel, 3. aprillil 17.30 Hugo Lepnurme Kuusalu Kunstide Kooli parklas OTT taluturg Kell 20...

ÜRITUSED Kuusalu vallas 1.-8. aprillil

Aprilli algus on tujukas, kuid kahtlemata pühademeeleolus! Mõnusat nautimist! Reedel, 3. aprillil 17.30 Hugo Lepnurme Kuusalu Kunstide Kooli parklas OTT taluturg Kell 20...

Algas lasteaia suvisesse valverühma registreerumine! Valverühm töötab: Kiiu lasteaias 1.-12. juulil Kuusalu lasteaias 13.-31. juulil Avalduse saab esitada SPOKU-s: ...

Algas lasteaia suvisesse valverühma registreerumine

Algas lasteaia suvisesse valverühma registreerumine! Valverühm töötab: Kiiu lasteaias 1.-12. juulil Kuusalu lasteaias 13.-31. juulil Avalduse saab esitada SPOKU-s: ...

Kui saad Kaitseväelt teate võimalikust õhuohust: Jätka tavategevusi, kuid ole valvas. Kui sa drooni ei näe ega kuule, püsi väljas liikudes valvas ja ole valmis ohu märkamisel...

Õhuohuga seotud käitumisjuhis: mistahes sulle lähim siseruum on ohu korral parim varjumiskoht

Kui saad Kaitseväelt teate võimalikust õhuohust: Jätka tavategevusi, kuid ole valvas. Kui sa drooni ei näe ega kuule, püsi väljas liikudes valvas ja ole valmis ohu märkamisel...

Alates 1. aprillist töötab Kolga kooli direktori kohusetäitjana kooli assistent-projektijuht ning õpetaja õpetaja Melika Kindel. Kolga kooli senine juht Tõnu Valdma lahkus ametist ning...

Kolga kooli direktori kohusetäitja on MELIKA KINDEL

Alates 1. aprillist töötab Kolga kooli direktori kohusetäitjana kooli assistent-projektijuht ning õpetaja õpetaja Melika Kindel. Kolga kooli senine juht Tõnu Valdma lahkus ametist ning...

Tänasega saab Kuusalu vallas läbi märts ehk Digikuu. Kuusalu Noortekeskus viis Digikuu raames läbi Kolgas ja Kuusalus arvutikasutamise tasuta koolituse neile, kellel on vähesed või puuduvad...

Kuusalu valla noored õpetasid digioskusi

Tänasega saab Kuusalu vallas läbi märts ehk Digikuu. Kuusalu Noortekeskus viis Digikuu raames läbi Kolgas ja Kuusalus arvutikasutamise tasuta koolituse neile, kellel on vähesed või puuduvad...

Eile, 30. märtsil kohtusime vallamajas külade esindajatega, kes on huvitatud suvel kodukohvikupäeva korraldamisest oma külas. Ühise arutelu tulemusel jõudsime järeldusele, et Kuusalu valla...

Kuusalu valla kodukohvikusuvi 2026

Eile, 30. märtsil kohtusime vallamajas külade esindajatega, kes on huvitatud suvel kodukohvikupäeva korraldamisest oma külas. Ühise arutelu tulemusel jõudsime järeldusele, et Kuusalu valla...

Kuusalu vallavalitsus vabastas ametist Vihasoo külavanema Madis Praksi ja kinnitas uueks külavanemaks Andreas Piibemanni. Madis Praks astus ametist tagasi Vihasoo küla koosolekul, mis toimus...

Vihasoo uus külavanem on Andreas Piibemann

Kuusalu vallavalitsus vabastas ametist Vihasoo külavanema Madis Praksi ja kinnitas uueks külavanemaks Andreas Piibemanni. Madis Praks astus ametist tagasi Vihasoo küla koosolekul, mis toimus...

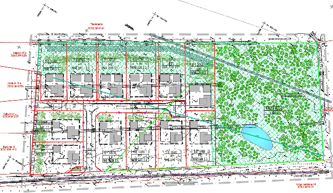
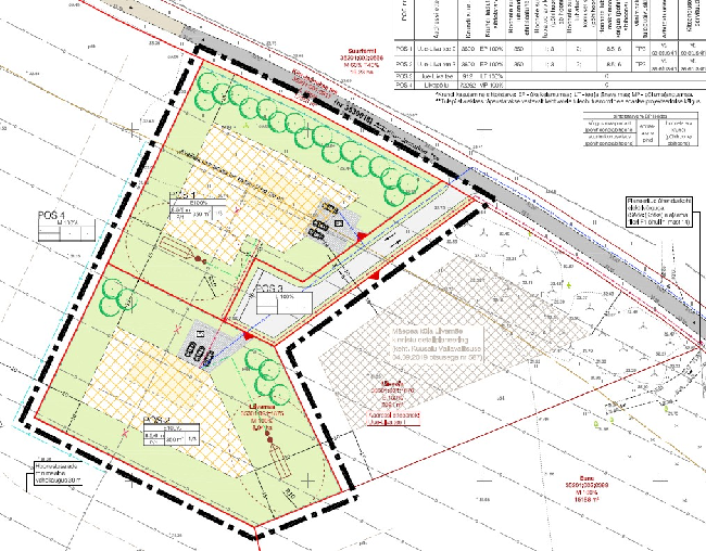
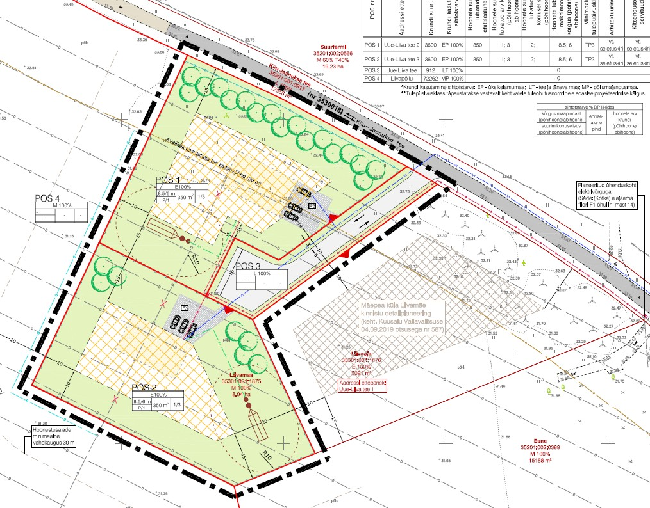
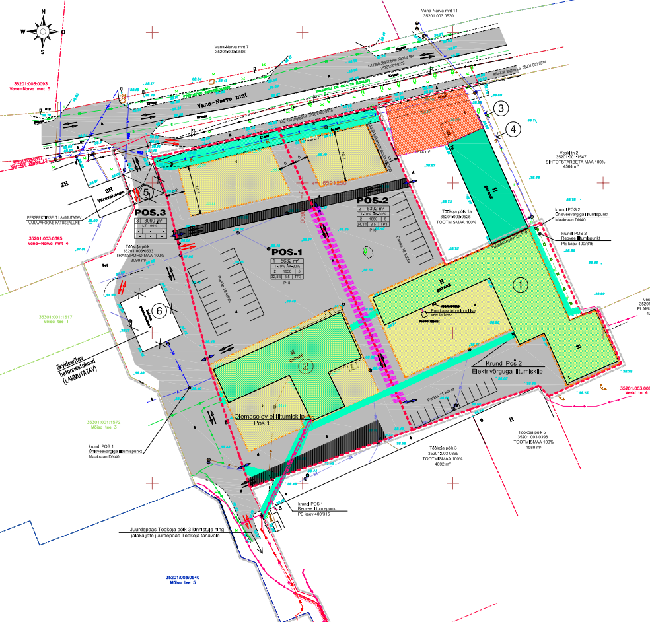
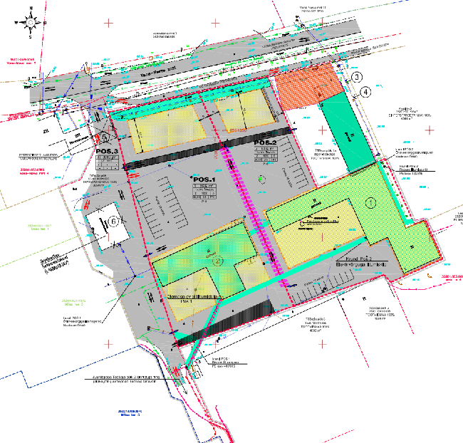
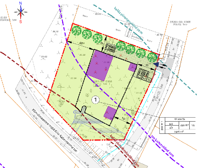
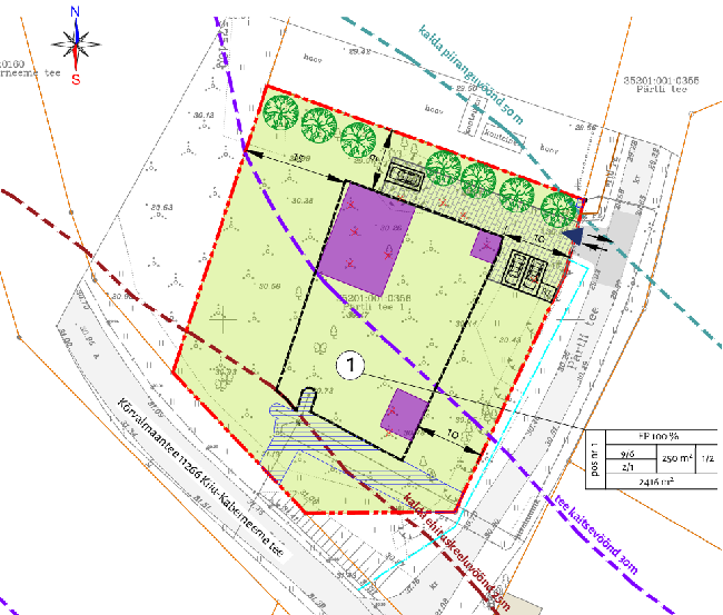
Kuusalu Vallavalitsusele on esitatud projekteerimistingimuste taotlus detailplaneeringu tingimuste täpsustamiseks Harjumaal Kuusalu vallas Kiiu alevikus asuvale Lehe tn 4  kinnistule...

Projekteerimistingimuste andmine Kiiu aleviku Lehe tn 4 kinnistu detailplaneeringu tingimuste täpsustamiseks

Kuusalu Vallavalitsusele on esitatud projekteerimistingimuste taotlus detailplaneeringu tingimuste täpsustamiseks Harjumaal Kuusalu vallas Kiiu alevikus asuvale Lehe tn 4  kinnistule...

Kuusalu valla Pärispea külas elav parasportlane AIN VILLAU tegi ajalugu! Milano-Cortina paralümpiamängud olid Eesti jaoks väga edukad, sest meie ratastoolikurlingu segapaar Kätlin Riidebach...

Parasportlane Ain Villau saavutas paraolümpial segapaaris võisteldes 7. koha

Kuusalu valla Pärispea külas elav parasportlane AIN VILLAU tegi ajalugu! Milano-Cortina paralümpiamängud olid Eesti jaoks väga edukad, sest meie ratastoolikurlingu segapaar Kätlin Riidebach...

Järgmisel nädalal, seoses suure reedega 3.04.2026, muutub valla siseste eribussiliinide sõiduplaan. Liinid nr 3 ja 4 teenindavad reisijaid reede asemel neljapäeval, 2.04.2026. Väljumisajad...

Muudatus valla siseste eribussiliinide graafikus seoses pühadega

Järgmisel nädalal, seoses suure reedega 3.04.2026, muutub valla siseste eribussiliinide sõiduplaan. Liinid nr 3 ja 4 teenindavad reisijaid reede asemel neljapäeval, 2.04.2026. Väljumisajad...

Töö sisu on lapsele abivajadusele vastava toe pakkumine Kiiu Kiigepõnni lasteaias ja Kuusalu lasteaias Jussike. Tööülesanneteks on lapse juhendamine, abistamine ja toetamine...

Kuusalu Hariduse Tugikeskus võtab tööle tugiisikud

Töö sisu on lapsele abivajadusele vastava toe pakkumine Kiiu Kiigepõnni lasteaias ja Kuusalu lasteaias Jussike. Tööülesanneteks on lapse juhendamine, abistamine ja toetamine...

Volikogu pidas 25. märtsil istungi. Vaatame üle olulisemad teemad, millest seal räägiti. Volikogu võttis vastu otsuse korraldada ümber Vihasoo lasteaed-algkool alates uuest õppeaastast. Kolga...

25.03.2026 volikogu istungi kokkuvõte

Volikogu pidas 25. märtsil istungi. Vaatame üle olulisemad teemad, millest seal räägiti. Volikogu võttis vastu otsuse korraldada ümber Vihasoo lasteaed-algkool alates uuest õppeaastast. Kolga...

25. märtsil 1949 küüditati Eestist vägivaldselt Siberisse üle 22 000 inimese, kolmest Balti riigist kokku üle 90 000 inimese, nende seas palju lapsi ja vanureid. Kuusalus mälestati...

Märtsiküüditamise 77. aastapäev Kuusalu vallas

25. märtsil 1949 küüditati Eestist vägivaldselt Siberisse üle 22 000 inimese, kolmest Balti riigist kokku üle 90 000 inimese, nende seas palju lapsi ja vanureid. Kuusalus mälestati...

Kevad on saabunud ning toob endaga kaasa rõõmu, värskuse ja hulgaliselt toredaid sündmusi – vaata, mida põnevat meie vallas sel nädalal toimub! Foto: Kuusalu valla  2025. aasta...

Üritused Kuusalu vallas

Kevad on saabunud ning toob endaga kaasa rõõmu, värskuse ja hulgaliselt toredaid sündmusi – vaata, mida põnevat meie vallas sel nädalal toimub! Foto: Kuusalu valla  2025. aasta...

Kaitsevägi teavitab:   Venemaa Ukraina-vastase agressioonisõja tõttu on IDA-VIRUMAA JA LÄÄNE-VIRUMAA PIIRKONNAS kaasnev droonioht. Kui näete, varjuge ja helistage 112. Lisainfo KRIIS.EE ja...

Kaitsevägi: Venemaa Ukraina-vastase agressioonisõja tõttu on IDA-VIRUMAA JA LÄÄNE-VIRUMAA PIIRKONNAS kaasnev droonioht

Kaitsevägi teavitab:   Venemaa Ukraina-vastase agressioonisõja tõttu on IDA-VIRUMAA JA LÄÄNE-VIRUMAA PIIRKONNAS kaasnev droonioht. Kui näete, varjuge ja helistage 112. Lisainfo KRIIS.EE ja...

Videoülekanne toimub Kuusalu valla Youtube kanalis . Kuusalu Vallavolikogu 11. koosseisu 6. istung toimub kolmapäeval, 25. märtsil 2026 kell 8.30 Kiiu mõisas (Mõisa tee...

Vallavolikogu 25. märtsi istungi videoülekanne

Videoülekanne toimub Kuusalu valla Youtube kanalis . Kuusalu Vallavolikogu 11. koosseisu 6. istung toimub kolmapäeval, 25. märtsil 2026 kell 8.30 Kiiu mõisas (Mõisa tee...

Kuusalu Vallavalitsus otsib 2026. aastaks teede ja tänavate mustkatendi löökaukude ja pragude parandajat. Töid tehakse vastavalt vajadusele kogu aasta jooksul ning nendega tuleb alustada...

Hankekutse. Kuusalu valla teede ja tänavate mustkatendi löökaukude ja kattepragude parandamine

Kuusalu Vallavalitsus otsib 2026. aastaks teede ja tänavate mustkatendi löökaukude ja pragude parandajat. Töid tehakse vastavalt vajadusele kogu aasta jooksul ning nendega tuleb alustada...

Alates 23. märtsist asus Kuusalu valla ehitusõiguse spetsialist-juristina tööle Ahti Randmere. Ahti Randmerel on pikaajaline kogemus kohaliku omavalitsuse töös. Ta on töötanud vallasekretärina...

Kuusalu vald sai uue ehitusõiguse spetsialist-juristi

Alates 23. märtsist asus Kuusalu valla ehitusõiguse spetsialist-juristina tööle Ahti Randmere. Ahti Randmerel on pikaajaline kogemus kohaliku omavalitsuse töös. Ta on töötanud vallasekretärina...

Näitan: 1-20
Elemente lehe kohta20
of 135