Uudised ja teated

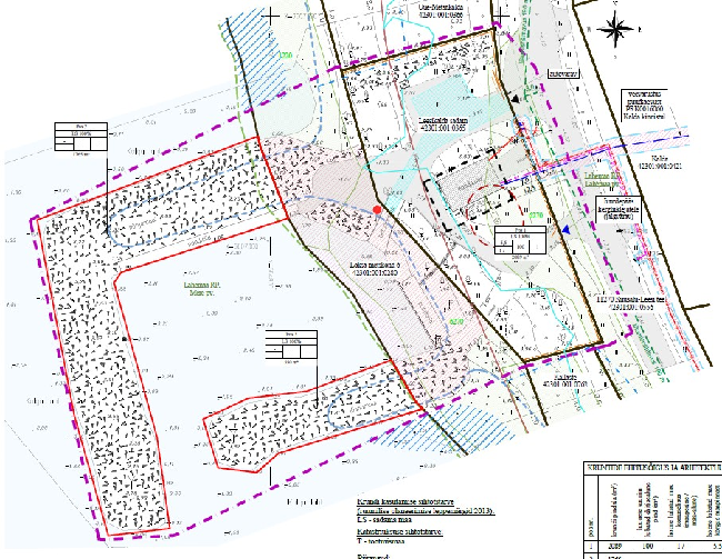
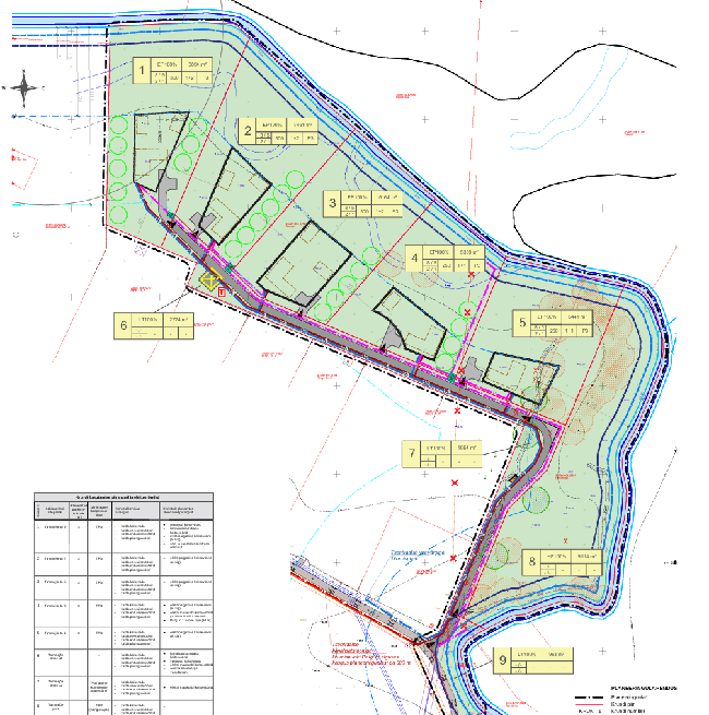
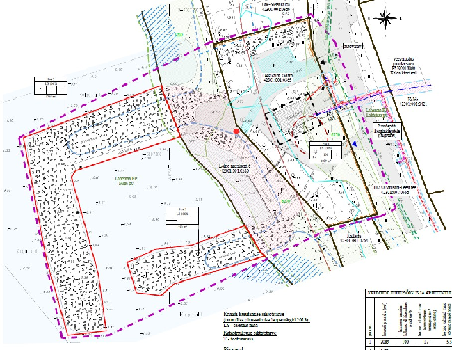
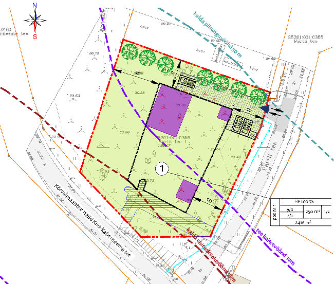
Kuusalu Vallavalitsusele on esitatud projekteerimistingimuste taotlus detailplaneeringu tingimuste täpsustamiseks Harjumaal Kuusalu vallas Kiiu alevikus asuvale Lehe tn 4  kinnistule...

Projekteerimistingimuste andmine Kiiu aleviku Lehe tn 4 kinnistu detailplaneeringu tingimuste täpsustamiseks

Kuusalu Vallavalitsusele on esitatud projekteerimistingimuste taotlus detailplaneeringu tingimuste täpsustamiseks Harjumaal Kuusalu vallas Kiiu alevikus asuvale Lehe tn 4  kinnistule...

Kuusalu valla Pärispea külas elav parasportlane AIN VILLAU tegi ajalugu! Milano-Cortina paralümpiamängud olid Eesti jaoks väga edukad, sest meie ratastoolikurlingu segapaar Kätlin Riidebach...

Parasportlane Ain Villau saavutas paraolümpial segapaaris võisteldes 7. koha

Kuusalu valla Pärispea külas elav parasportlane AIN VILLAU tegi ajalugu! Milano-Cortina paralümpiamängud olid Eesti jaoks väga edukad, sest meie ratastoolikurlingu segapaar Kätlin Riidebach...

Järgmisel nädalal, seoses suure reedega 3.04.2026, muutub valla siseste eribussiliinide sõiduplaan. Liinid nr 3 ja 4 teenindavad reisijaid reede asemel neljapäeval, 2.04.2026. Väljumisajad...

Muudatus valla siseste eribussiliinide graafikus seoses pühadega

Järgmisel nädalal, seoses suure reedega 3.04.2026, muutub valla siseste eribussiliinide sõiduplaan. Liinid nr 3 ja 4 teenindavad reisijaid reede asemel neljapäeval, 2.04.2026. Väljumisajad...

Töö sisu on lapsele abivajadusele vastava toe pakkumine Kiiu Kiigepõnni lasteaias ja Kuusalu lasteaias Jussike. Tööülesanneteks on lapse juhendamine, abistamine ja toetamine...

Kuusalu Hariduse Tugikeskus võtab tööle tugiisikud

Töö sisu on lapsele abivajadusele vastava toe pakkumine Kiiu Kiigepõnni lasteaias ja Kuusalu lasteaias Jussike. Tööülesanneteks on lapse juhendamine, abistamine ja toetamine...

Volikogu pidas 25. märtsil istungi. Vaatame üle olulisemad teemad, millest seal räägiti. Volikogu võttis vastu otsuse korraldada ümber Vihasoo lasteaed-algkool alates uuest õppeaastast. Kolga...

25.03.2026 volikogu istungi kokkuvõte

Volikogu pidas 25. märtsil istungi. Vaatame üle olulisemad teemad, millest seal räägiti. Volikogu võttis vastu otsuse korraldada ümber Vihasoo lasteaed-algkool alates uuest õppeaastast. Kolga...

25. märtsil 1949 küüditati Eestist vägivaldselt Siberisse üle 22 000 inimese, kolmest Balti riigist kokku üle 90 000 inimese, nende seas palju lapsi ja vanureid. Kuusalus mälestati...

Märtsiküüditamise 77. aastapäev Kuusalu vallas

25. märtsil 1949 küüditati Eestist vägivaldselt Siberisse üle 22 000 inimese, kolmest Balti riigist kokku üle 90 000 inimese, nende seas palju lapsi ja vanureid. Kuusalus mälestati...

Kevad on saabunud ning toob endaga kaasa rõõmu, värskuse ja hulgaliselt toredaid sündmusi – vaata, mida põnevat meie vallas sel nädalal toimub! Foto: Kuusalu valla  2025. aasta...

Üritused Kuusalu vallas

Kevad on saabunud ning toob endaga kaasa rõõmu, värskuse ja hulgaliselt toredaid sündmusi – vaata, mida põnevat meie vallas sel nädalal toimub! Foto: Kuusalu valla  2025. aasta...

Kaitsevägi teavitab:   Venemaa Ukraina-vastase agressioonisõja tõttu on IDA-VIRUMAA JA LÄÄNE-VIRUMAA PIIRKONNAS kaasnev droonioht. Kui näete, varjuge ja helistage 112. Lisainfo KRIIS.EE ja...

Kaitsevägi: Venemaa Ukraina-vastase agressioonisõja tõttu on IDA-VIRUMAA JA LÄÄNE-VIRUMAA PIIRKONNAS kaasnev droonioht

Kaitsevägi teavitab:   Venemaa Ukraina-vastase agressioonisõja tõttu on IDA-VIRUMAA JA LÄÄNE-VIRUMAA PIIRKONNAS kaasnev droonioht. Kui näete, varjuge ja helistage 112. Lisainfo KRIIS.EE ja...

Videoülekanne toimub Kuusalu valla Youtube kanalis . Kuusalu Vallavolikogu 11. koosseisu 6. istung toimub kolmapäeval, 25. märtsil 2026 kell 8.30 Kiiu mõisas (Mõisa tee...

Vallavolikogu 25. märtsi istungi videoülekanne

Videoülekanne toimub Kuusalu valla Youtube kanalis . Kuusalu Vallavolikogu 11. koosseisu 6. istung toimub kolmapäeval, 25. märtsil 2026 kell 8.30 Kiiu mõisas (Mõisa tee...

Kuusalu Vallavalitsus otsib 2026. aastaks teede ja tänavate mustkatendi löökaukude ja pragude parandajat. Töid tehakse vastavalt vajadusele kogu aasta jooksul ning nendega tuleb alustada...

Hankekutse. Kuusalu valla teede ja tänavate mustkatendi löökaukude ja kattepragude parandamine

Kuusalu Vallavalitsus otsib 2026. aastaks teede ja tänavate mustkatendi löökaukude ja pragude parandajat. Töid tehakse vastavalt vajadusele kogu aasta jooksul ning nendega tuleb alustada...

Alates 23. märtsist asus Kuusalu valla ehitusõiguse spetsialist-juristina tööle Ahti Randmere. Ahti Randmerel on pikaajaline kogemus kohaliku omavalitsuse töös. Ta on töötanud vallasekretärina...

Kuusalu vald sai uue ehitusõiguse spetsialist-juristi

Alates 23. märtsist asus Kuusalu valla ehitusõiguse spetsialist-juristina tööle Ahti Randmere. Ahti Randmerel on pikaajaline kogemus kohaliku omavalitsuse töös. Ta on töötanud vallasekretärina...

Eestis levib lindude gripp. Lindude gripp on Eestis aktiivselt levimas. Sel aastal on tuvastatud lindude grippi 26 metslinnul erinevates Eesti otstes, näiteks hiireviudel Võrus ja Saaremaal,...

Mida saad Sina teha, et piirata lindude gripi levikut?

Eestis levib lindude gripp. Lindude gripp on Eestis aktiivselt levimas. Sel aastal on tuvastatud lindude grippi 26 metslinnul erinevates Eesti otstes, näiteks hiireviudel Võrus ja Saaremaal,...

Kuni 7.04.2026 on avalikustatud Kuusalu valla kliima- ja energiakava dokumendid. Kliima- ja energiakava materjalidega on võimalik tutvuda SIIN .  Eelnõu kohta on võimalik ettepanekuid...

Kuusalu valla kliima- ja energiakava avalikustamine

Kuni 7.04.2026 on avalikustatud Kuusalu valla kliima- ja energiakava dokumendid. Kliima- ja energiakava materjalidega on võimalik tutvuda SIIN .  Eelnõu kohta on võimalik ettepanekuid...

Põhja-Eesti Ühistranspordikeskus annab teada, et alates  1. aprillist  toimuvad ida (Loksa) suunal järgmised muudatused, mis on tingitud ühistranspordi rahastuse vähendamisest: ...

Muudatused ida suuna sõiduplaanides alates 1. aprillist

Põhja-Eesti Ühistranspordikeskus annab teada, et alates  1. aprillist  toimuvad ida (Loksa) suunal järgmised muudatused, mis on tingitud ühistranspordi rahastuse vähendamisest: ...

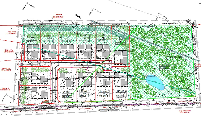
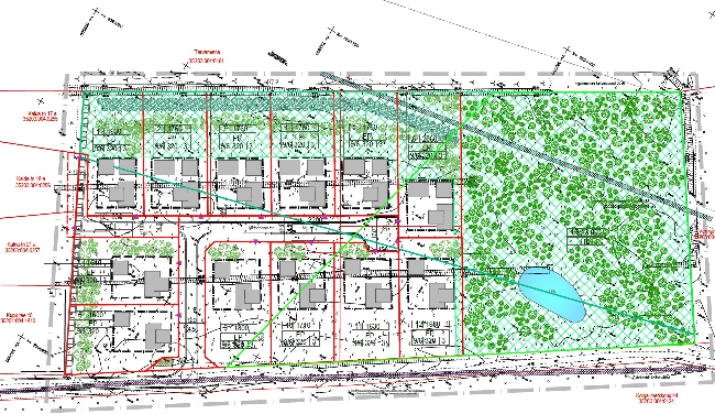
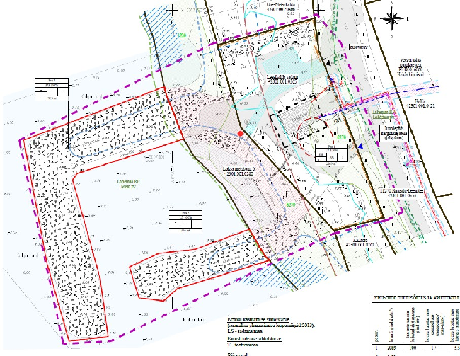
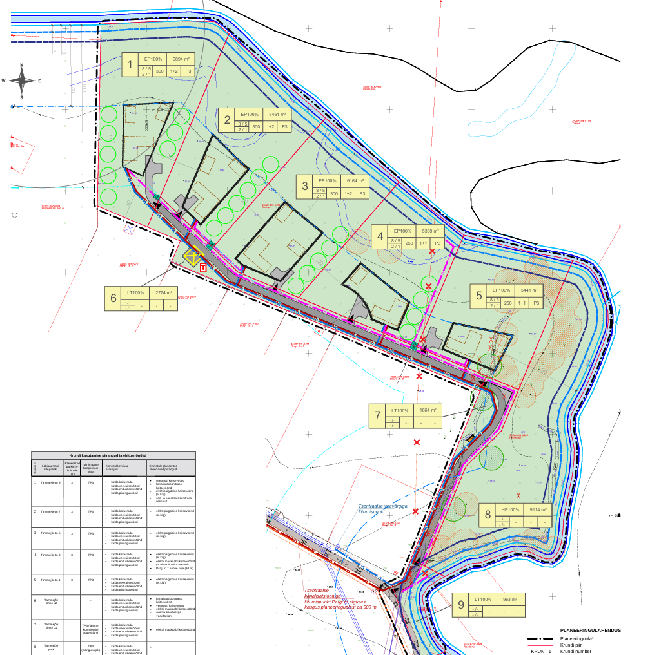
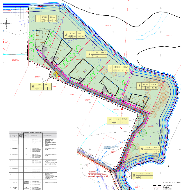
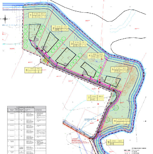
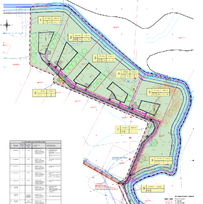
Kuusalu Vallavalitsus teatab, et algatas 12.märtsil 2026 korraldusega nr 66 Saunja küla Sibula (35201:003:0280) kinnistu detailplaneeringu ja kinnitas lähteülesande.   Huvitatud...

Saunja küla Sibula kinnistu detailplaneeringu algatamine ja lähteülesande kinnitamine

Kuusalu Vallavalitsus teatab, et algatas 12.märtsil 2026 korraldusega nr 66 Saunja küla Sibula (35201:003:0280) kinnistu detailplaneeringu ja kinnitas lähteülesande.   Huvitatud...

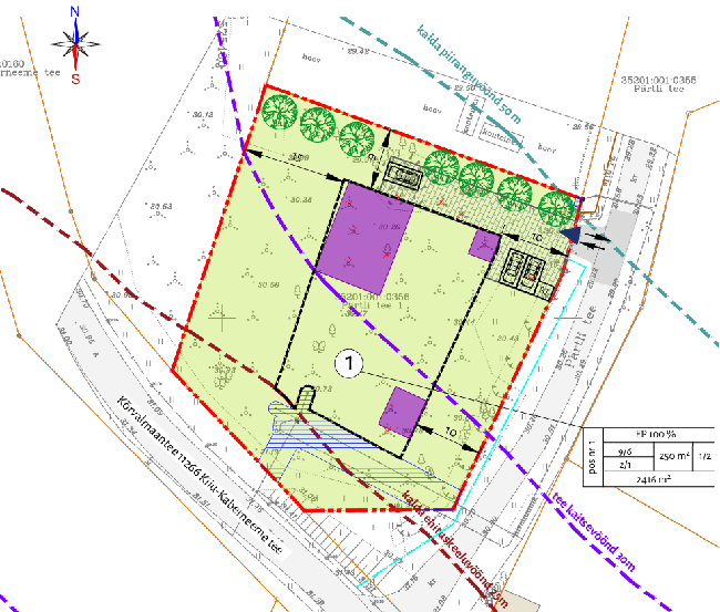
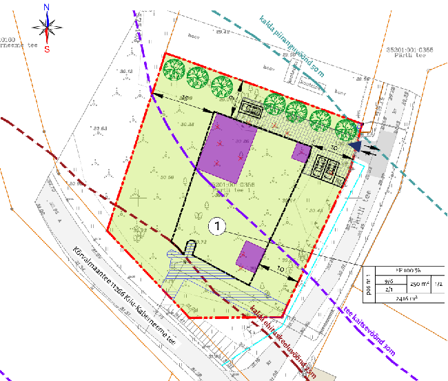
Kuusalu Vallavalitsus teatab, et algatas 12.märtsil 2026 korraldusega nr 67 Allika küla Kirsimaa (35201:002:1054) kinnistu detailplaneeringu ja kinnitas lähteülesande.   Huvitatud...

Allika küla Kirsimaa kinnistu detailplaneeringu algatamine ja lähteülesande kinnitamine

Kuusalu Vallavalitsus teatab, et algatas 12.märtsil 2026 korraldusega nr 67 Allika küla Kirsimaa (35201:002:1054) kinnistu detailplaneeringu ja kinnitas lähteülesande.   Huvitatud...

Meenutame 1949. aasta suurküüditamise ohvreid 25. märtsil kell 10.30 Kuusalu kalmistul okupatsiooniohvrite mälestuskivi ja seejärel keskväljakul mälestusmärgi juures. Asetame leinakimbud ja -küünlad.

Märtsiküüditamise 77. aastapäev Kuusalus

Meenutame 1949. aasta suurküüditamise ohvreid 25. märtsil kell 10.30 Kuusalu kalmistul okupatsiooniohvrite mälestuskivi ja seejärel keskväljakul mälestusmärgi juures. Asetame leinakimbud ja -küünlad.

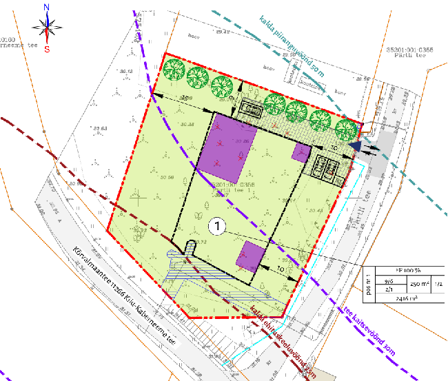
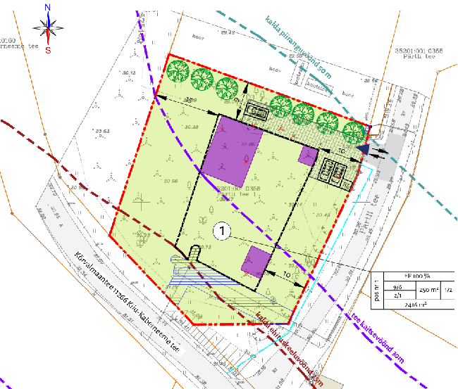
Kuusalu Vallavolikogu 11. koosseisu 6. istung toimub kolmapäeval, 25. märtsil 2026 kell 8.30 Kiiu mõisas (Mõisa tee 17). PÄEVAKORRA PROJEKT: 1. Kaberla küla Lehe kinnistu...

Kutse volikogu istungile

Kuusalu Vallavolikogu 11. koosseisu 6. istung toimub kolmapäeval, 25. märtsil 2026 kell 8.30 Kiiu mõisas (Mõisa tee 17). PÄEVAKORRA PROJEKT: 1. Kaberla küla Lehe kinnistu...

Alates tänasest on avatud Kuusalu valla eelarvest finantseeritava projektitoetuse taotlusvoor. Taotlus tuleb esitada taotluste menetlemise süsteemis SPOKU . Toetuse andmise eesmärk on...

Kuusalu valla projektitoetuste kevadvoor on avatud

Alates tänasest on avatud Kuusalu valla eelarvest finantseeritava projektitoetuse taotlusvoor. Taotlus tuleb esitada taotluste menetlemise süsteemis SPOKU . Toetuse andmise eesmärk on...

Kuusalu vallavalitsus kinnitas 19. märtsi istungil tänavuse külarahade jaotuse. Kuusalu vallas on 67 küla, millest 1.01.2026 seisuga on külavanem 48 külal. Külarahade kogusummast pool...

Külarahade jaotus 2026. aasta eelarvest

Kuusalu vallavalitsus kinnitas 19. märtsi istungil tänavuse külarahade jaotuse. Kuusalu vallas on 67 küla, millest 1.01.2026 seisuga on külavanem 48 külal. Külarahade kogusummast pool...

Näitan: 1-20
Elemente lehe kohta20
of 135