Planeeringute teated 2025-2026

Ilmastalu küla Metsaääre tee 1, 2, 3, 4, 5, 7, Metsaääre tee ja Metsaserva kinnistute eskiislahenduse avalik väljapanek

Kuusalu Vallavalitsus teatab, et Kuusalu Vallavolikogu algatas 18.juunil 2025 otsusega nr 20 Ilmastalu küla Metsaääre tee 1, 2, 3, 4, 5, 7, Metsaääre tee ja Metsaserva kinnistute detailplaneeringu ja kinnitas lähteülesande. Detailplaneeringu eskiismaterjalide avalik väljapanek kestab alates 26.novembrist kuni 26.detsembrini 2025.a. käesolevas postituses ja eelneval kokkuleppel Kuusalu vallamajas kohapeal. Eelpool nimetatud ajani saab esitada eskiislahendusele omapoolseid ettepanekuid/vastuväiteid aadressile vallavalitsus@kuusalu.ee.   
 

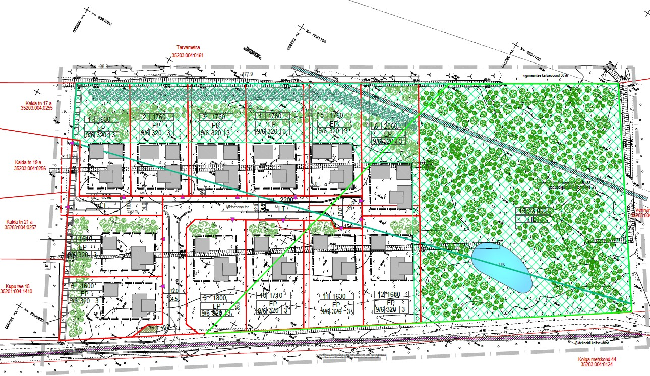
Metsaääre tee 1, 2, 3, 4, 5, 7, Metsaääre tee ja Metsaserva kinnistud on moodustatud vastavalt Kuusalu Vallavolikogu 03.05.2017 otsusega nr 24 kehtestatud Ilmastalu küla Metsaserva kinnistu detailplaneeringule. Detailplaneeringuga kavandati alale 6 elamukrunti, transpordimaa krunt ning ehitusõiguseta maaüksus rohealana. Alale on vastavalt planeeringu lahedusele seatud reaalservituut Kalda tn 17a, 19a ja 21a kinnistute juurdepääsu tagamiseks.

Uue detailplaneeringu algatamise taotlusega soovitakse alale kavandada 17 üksikelamukrunti, minimaalse suurusega 1200 m2. Juurdepääs kinnistule on võimalik rajada olemasolevalt munitsipaalomandis olevalt Kupu tee katastriüksuselt. 

Metsaääre tee 1, 2, 3, 4, 5, 7, Metsaääre tee ja Metsaserva kinnistud asuvad Kuusalu valla üldplaneeringu kohaselt haja-asustuses piirnedes tiheasustusalaga, osaliselt perspektiive elamualal ja osaliselt rohevööndi alal. Kehtestatud detailplaneeringuga on täpsustatud vööndite asetust. Kehtiva üldplaneeringu seletuskirja kohaselt on haja-asustuses elamute ehituskruntide minimaalne suurus 0,36 ha ja hoonete minimaalne kaugus naaberkruntide hoonestusest 30,0 m. Esitatud detailplaneeringu algatamise taotlus on kehtivat üldplaneeringut  muutev kavandatavate krundisuuruste osas. Üldplaneeringu muutmine on põhjendatud asjaoluga, et ala piirneb olemasoleva tiheasustusalaga, läheduses on planeeringu elluviimiseks vajalik taristu ja Kuusalu alevikus ei ole piisaval hulgal elamukruntide arendamiseks sobilikke alasid. Menetluses olevas üldplaneeringus on planeeritav ala kavandatud liita Kuusalu alevikuga ning tiheasustusalaga. Üldplaneeringuga tiheasustusaladele lubatud minimaalseks krundisuuruseks on menetluses olevas üldplaneeringus määratud 1200 m2

Lisainfo tel 606 6379 või e-post kadi.raudla@kuusalu.ee.