Planeeringute teated 2025

Kuusalu alevik Laane tn 29 kinnistu detailplaneeringu kehtestamine

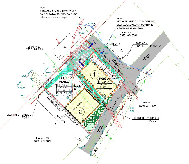
Kuusalu Vallavalitsus teatab, et kehtestas 16.oktoobril 2025 korraldusega nr 288 Kuusalu aleviku Laane tn 29 kinnistu (35201:004:0068) detailplaneeringu.
 
Detailplaneeringuga tehakse ettepanek 1303 m² suuruse kinnistu jagamiseks kaheks eraldi ärimaa sihtotstarbega krundiks. Vastavalt ehitisregistri andmetele asub Laane tn 29 kinnistul kauplus-saun (116046950) ning autoremondi töökoda (120796435). Kehtestamiseks esitatud detailplaneeringu lahenduse kohaselt jäävad olemasolevad hooned eraldi kruntidele.
Vastavalt kehtivale Kuusalu valla üldplaneeringule asub planeeritav ala tiheasustusalal. Kinnistut ümbritsevad kirdest ja edelast garaažiboksid, loodest katlamaja ja üle tänava paiknevad korterelamud. Juurdepääs kinnistule on tagatud avaliku kasutusega Laane tänavalt.
Detailplaneering on kooskõlastatud vastavalt lähteülesandes toodule tehnovõrkude valdajate ning Päästeametiga.
 
Detailplaneeringu elluviimisega ei kaasne eeldatavalt olulisi majanduslikke, sotsiaalseid ega kultuurilisi mõjusid, samuti ei kaasne olulist mõju looduskeskkonnale. 
 
Lisainfo Kadi.Raudla@kuusalu.ee või tel 606 6379.