Uudised ja teated

Kodasoo küla Seltsimaja ja Teeserva detailplaneeringu eskiislahenduse avalik väljapanek

Kuusalu Vallavalitsus teatab, et Kuusalu Vallavolikogu algatas 30.aprillil 2025 otsusega nr 8 Kodasoo küla Seltsimaja (35201:003:0212) ja Teeserva (35201:003:0204) kinnistute detailplaneeringu ja kinnitas lähteülesande. Detailplaneeringu eskiismaterjalidega saab tutvuda alates 17.detsembrist 2025 kuni 17.jaanuarini 2026.a. käesolevas postituses ja eelneval kokkuleppel Kuusalu vallamajas kohapeal. Eelpool nimetatud ajani saab esitada eskiislahendusele omapoolseid ettepanekuid/vastuväiteid aadressile vallavalitsus@kuusalu.ee.
 

Seltsimaja kinnistul asub Kodasoo küla seltsimaja hoone, mis käesoleval hetkel on ehitusjärgus ning aktiivse kasutuseta. Juurdepääs Seltsimaja kinnistule toimub Kodasoo-Kaberla teelt üle Teeserva kinnistu.

Planeeritav ala asub hajaasustusalal, kehtiva Kuusalu vallaüldplaneeringu kohasel nn valgel alal. Valge ala üldplaneeringu kaardil tähendab, et antud aladel maakasutuse sihtotstarve ei muutu ja selle muutmist tulevikus ei piirata. Ka pole nendele aladele ette nähtud suuremaid ja eraldi käsitlemist väärivaid kitsendusi ega piiranguid. Planeeritav ala ei ole kavandatud kehtivas üldplaneeringus perspektiivse elamualana, millest tulenevalt menetletakse Kodasoo küla Seltsimaja ja Teeserva kinnistute detailplaneeringut üldplaneeringut muutvana. Menetluses oleva üldplaneeringuga kavandatakse planeeritav ala olemasoleva Kodasoo küla kompaktse perspektiivse elamualana ning vähesel määral seltsimaja teenindamiseks sotsiaalmaana. Kehtiva üldplaneeringu muudatus on põhjendatav asjaoluga, et planeeritav ala asub logistiliselt hea ligipääsetavusega alal, Kodasoo küla olemasoleva kompaktse ala vahetus läheduses ning antud piirkonnas ei ole saadaval vabu ehitusõigusega krunte.

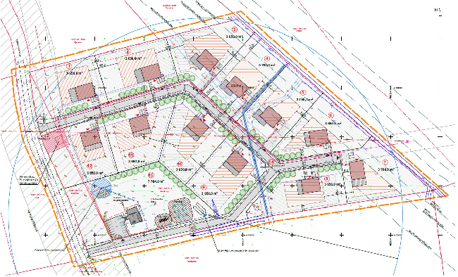
Antud detailplaneerigu kohaselt jagatakse Seltsimaja ja Teeserva kinnistud 14-ks kinnistuks. Kinnistu jagatakse 12-ks elamumaa kinnistuks, üheks teemaa kinnistuks ja üheks üldkasutatava maa kinnistuks. Seltsimaja ja Teeserva kinnistute jagamisel eraldatakse uutele kinnistutele ka uued aadressid.

Lisainfo tel 606 6379 või e-post kadi.raudla@kuusalu.ee.