 Planeeringute teated 2023
  Planeeringute teated 2023 
  Muuksi küla Käsperi-Hansu kinnistu detailplaneeringu kehtestamine
Kuusalu Vallavalitsus teatab, et kehtestas 28.detsembril 2023 korraldusega nr 524 Muuksi küla Käsperi-Hansu kinnistu (35203:001:0383) detailplaneeringu. ...
Kolga aleviku Kolga mõisa kinnistu detailplaneeringu kehtestamine
Kuusalu Vallavalitsus teatab, et kehtestas 21.detsembril 2023 korraldusega nr 517 Kolga aleviku Kolga mõisa kinnistu (35203:002:0081) detailplaneeringu. 29,46 ha suurusest Kolga mõisa...
Valkla küla Aiamaa kinnistu detailplaneeringu avalik väljapanek
Anname teada, et Kuusalu Vallavolikogu 13.detsembri 2023 otsusega nr 82 võeti vastu Valkla küla Aiamaa kinnistu (35301:001:0369) detailplaneering. Detailplaneeringu avaliku väljapaneku...
Kiiu aleviku Kruusimäe maaüksuste ja nende lähiala detailplaneeringu algatamine
Kuusalu Vallavalitsus teatab, et 13.detsembril 2023 otsusega nr 81 algatas Kuusalu Vallavolikogu Kiiu aleviku Kruusimäe maaüksuste (35201:003:0433 ja 35201:003:0039) detailplaneeringu, kinnitas...
Vihasoo küla Jõekalda ja Jõekalda tee kinnistute detailplaneeringu algatamine
Kuusalu Vallavalitsus teatab, et 13.detsembril 2023 otsusega nr 83 algatas Kuusalu Vallavolikogu Vihasoo küla Jõekalda (42301:004:0427) ja Jõekalda tee (35301:001:1770) kinnistute...
Sõitme küla Aasa kinnistu detailplaneeringu kehtestamine
Kuusalu Vallavalitsus teatab, et kehtestas 14.detsembril 2023 korraldusega nr 511 Sõitme küla Aasa kinnistu (35201:002:0793) detailplaneeringu. ...
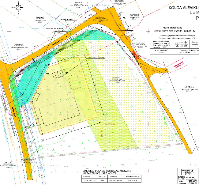
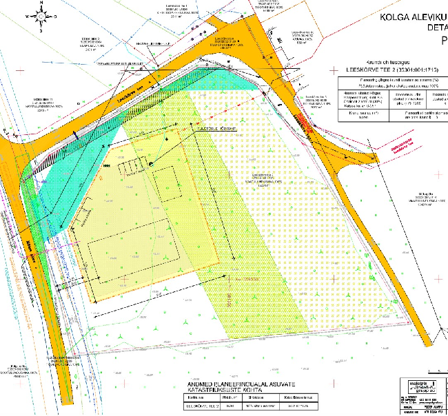
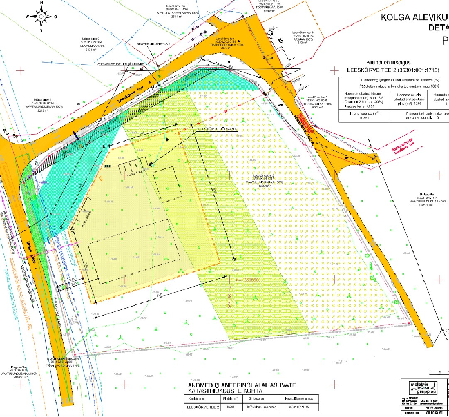
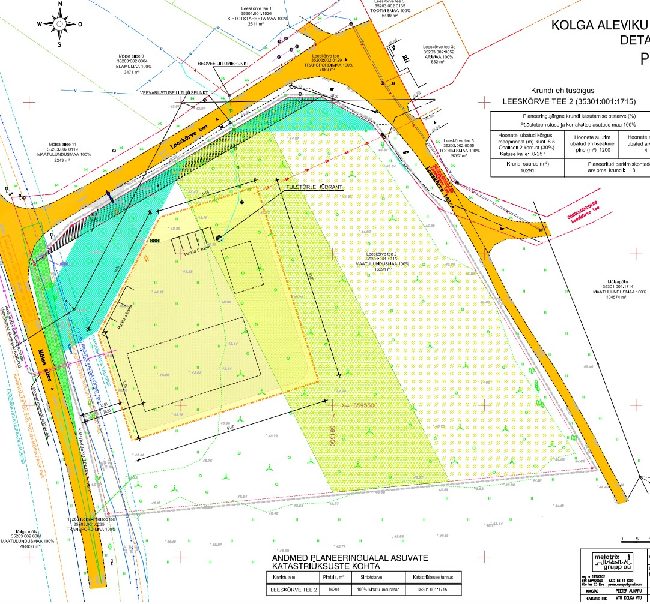
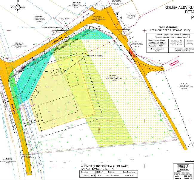
Kolga alevik Leeskõrve tee 2 kinnistu detailplaneeringu kehtestamine
Kuusalu Vallavalitsus teatab, et kehtestas 14.detsembril 2023 korraldusega nr 510 Kolga aleviku Leeskõrve tee 2 kinnistu (35301:001:1715) detailplaneeringu. ...
Sõitme küla Kalda kinnistu eskiislahenduse tutvustus
Kuusalu Vallavalitsus algatas 6.juulil 2023 korraldusega nr 299 Sõitme küla Kalda kinnistu (35301:001:0729) detailplaneeringu ja kinnitas lähteülesande. Detailplaneeringu...
Kuusalu küla Vana-Narva mnt 24, 28, 30 kinnistute detailplaneeringu avaliku väljapaneku järgne avalik arutelu
Kuusalu küla Vana-Narva mnt 24 (35201:002:1033), 28 (35201:002:0197), 30 (35201:002:0037) kinnistute detailplaneeringu avaliku väljapaneku jooksul laekus Kuusalu Vallavalitsusele üks kiri...
Kahala küla Pae kinnistu detailplaneeringu algatamine ja lähteülesande kinnitamine
Kuusalu Vallavalitsus teatab, et algatas 30.novembril 2023 korraldusega nr 483 Kahala küla Pae kinnistu (35301:001:1832) detailplaneeringu ja kinnitas lähteülesande. ...
Kolga-Aabla küla Allika kinnistu detailplaneeringu algatamine ja lähteülesande kinnitamine
Kuusalu Vallavalitsus teatab, et algatas 30.novembril 2023 korraldusega nr 484 Kolga-Aabla küla Allika kinnistu (42301:001:0183) detailplaneeringu ja kinnitas lähteülesande. ...
Kahala küla Alahaki kinnistu detailplaneeringu algatamine ja lähteülesande kinnitamine
Kuusalu Vallavalitsus teatab, et algatas 30.novembril 2023 korraldusega nr 480 Kahala küla Alahaki kinnistu (35203:003:0051) detailplaneeringu ja kinnitas lähteülesande. ...
Valkla küla Kahuranna kinnistu detailplaneeringu eskiislahenduse tutvustus
Kuusalu Vallavalitsus algatas 30.märtsil 2023 korraldusega nr 138 Valkla küla Kahuranna kinnistu (35201:001:0581) detailplaneeringu ja kinnitas lähteülesande. Detailplaneeringu...
Mäepea küla Pihlakavälja kinnistu detailplaneeringu algatamine ja lähteülesande kinnitamine
Kuusalu Vallavalitsus teatab, et algatas 30.novembril 2023 korraldusega nr 481 Mäepea küla Pihlakavälja kinnistu (35201:002:0816) detailplaneeringu ja kinnitas lähteülesande. ...
Kuusalu alevik Kalda tn 9 kinnistu detailplaneeringu kehtestamine
Kuusalu Vallavalitsus teatab, et kehtestas 30.novembril 2023 korraldusega nr 479 Kuusalu alevik Kalda tn 9 kinnistu (35201:004:1330) detailplaneeringu. ...
Sõitme küla Mereäärse kinnistu detailplaneeringu kehtestamine
Kuusalu Vallavalitsus teatab, et kehtestas 30.novembril 2023 korraldusega nr 482 Sõitme küla Mereäärse kinnistu (35201:002:0460) detailplaneeringu. ...
Kiiu alevik Koplivälja, Männituka ja Priiuse kinnistute detailplaneeringu algatamine ja lähteülesande kinnitamine
Kuusalu Vallavalitsus teatab, et algatas 30.novembril 2023 korraldusega nr 478 Kiiu aleviku Koplivälja (35201:003:0328), Männituka (35201:003:0329) ja Priiuse (35201:003:0331) kinnistute...
Viinistu küla Lepiku kinnistu detailplaneeringu algatamine, lähteülesande kinnitamine ning detailplaneeringule keskkonnamõju strateegilise hindamise mittealgatamine
Kuusalu Vallavalitsus teatab, et algatas 23.novembril 2023 korraldusega nr 466 Viinistu küla Lepiku kinnistu (42301:003:1240) detailplaneeringu ja kinnitas lähteülesande. ...
Kuusalu alevik Kuusalu tee 22 kinnistu ja selle lähiala detailplaneeringu algatamine ja lähteülesande kinnitamine
Kuusalu Vallavalitsus teatab, et algatas 23.novembril 2023 korraldusega nr 465 Kuusalu aleviku Kuusalu tee 22 (35201:004:0047) kinnistu ja selle lähiala detailplaneeringu ja kinnitas...
Kuusalu küla Vana-Narva mnt 24, 28, 30 kinnistute ja nende lähiala detailplaneeringu avalik väljapanek
Anname teada, et Kuusalu Vallavalitsuse 9.novembri 2023 korraldusega nr 449 võeti vastu Kuusalu küla Vana-Narva mnt 24 (35201:002:1033), 28 (35201:002:0197), 30 (35201:002:0037) kinnistute ja...