Salmistu küla Pedassaare tee 131 detailplaneeringu kinnistu eskiislahenduse tutvustus

Kuusalu Vallavalitsus teatab, et algatas 23.mail 2024 korraldusega nr 137 Salmistu küla Pedassaare tee 131 (35201:009:0008) kinnistu detailplaneeringu ja kinnitas lähteülesande. Detailplaneeringu eskiismaterjalidega saab tutvuda kuni 15.detsembrini 2024.a. käesolevas postituses ja Kuusalu vallamajas kohapeal. Eelpool nimetatud ajani saab esitada eskiislahendusele omapoolseid ettepanekuid/vastuväiteid aadressile vallavalitsus@kuusalu.ee.

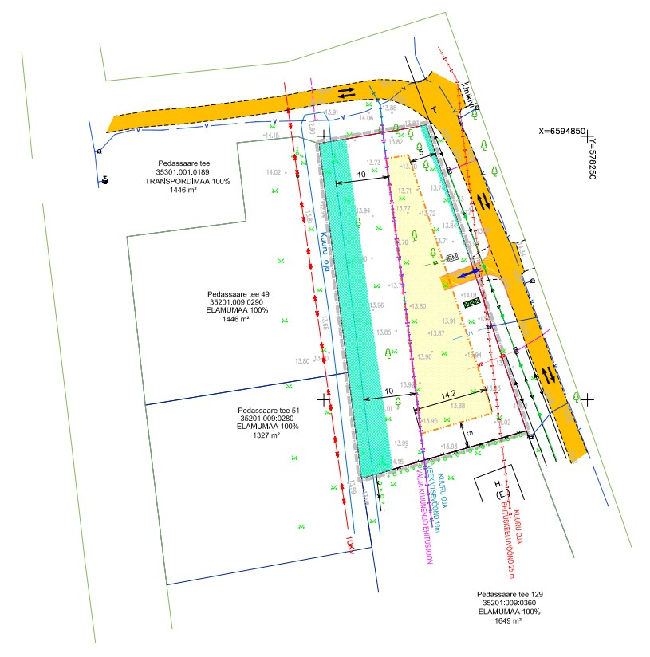
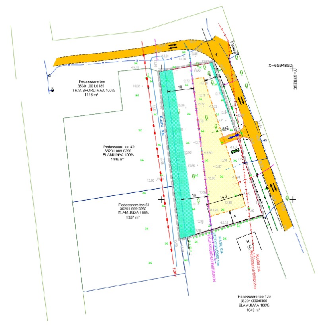
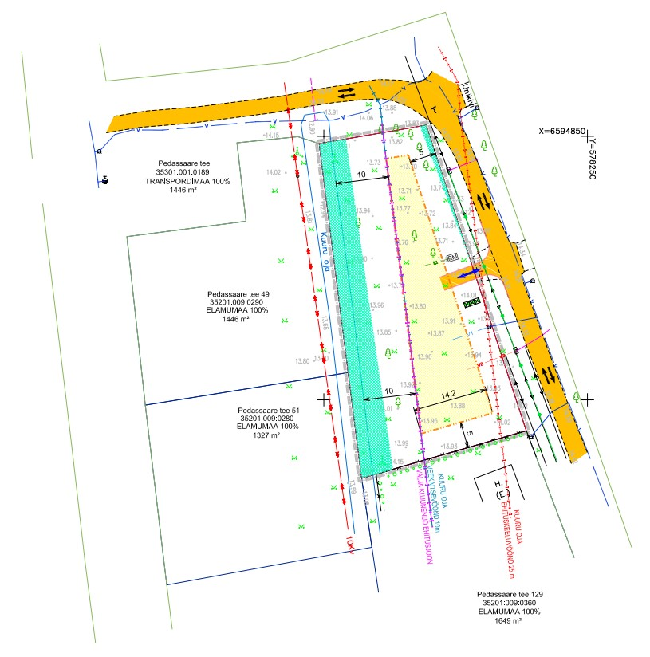
Huvitatud isik taotleb 1649 m2 suurusele kinnistule ehitusõiguse seadmist elamu ja abihoone rajamiseks. Kinnistu on elamumaa sihtotstarbega ning hoonestamata. Kinnistule juurdepääs on tagatud avaliku kasutusega  Pedassaare teelt. 

Üldplaneeringu kohaselt asub Pedassaare tee 131 kinnistu tiheasustusalal, elamualal, kus vastavalt planeerimisseaduse § 125 lõikele 1 on ehitusloakohustusliku hoone püstitamiseks või olemasoleva hoone laiendamiseks üle 33 protsendi selle esialgu kavandatud mahust vajalik koostada detailplaneering. Planeeringuga kavandatu on kooskõlas kehtiva Kuusalu valla üldplaneeringuga. 

Lisainfo tel 606 6379 või e-post kadi.raudla@kuusalu.ee