Planeeringute teated 2025

Kuusalu Vallavalitsus teatab, et algatas 29.mail 2025 korraldusega nr 174 Kolga-Aabla küla Lemeti (42301:001:0283) kinnistu detailplaneeringu ja kinnitas lähteülesande. Detailplaneeringu...

Kolga-Aabla küla Lemeti kinnistu detailplaneeringu eskiislahenduse tutvustus

Kuusalu Vallavalitsus teatab, et algatas 29.mail 2025 korraldusega nr 174 Kolga-Aabla küla Lemeti (42301:001:0283) kinnistu detailplaneeringu ja kinnitas lähteülesande. Detailplaneeringu...

Leesi küla Leesiranna (42301:001:0177) kinnistu  detailplaneeringu täiendava avaliku väljapaneku materjalidega saab tutvuda Kuusalu valla kodulehel, Kuusalu vallamajas kohapeal ja...

Leesi küla Leesiranna kinnistu detailplaneeringu avalik väljapanek ja avaliku väljapaneku tulemuste avalik arutelu

Leesi küla Leesiranna (42301:001:0177) kinnistu  detailplaneeringu täiendava avaliku väljapaneku materjalidega saab tutvuda Kuusalu valla kodulehel, Kuusalu vallamajas kohapeal ja...

Kuusalu Vallavalitsus annab teada, et Kuusalu Vallavolikogu algatas 18.juunil 2025 otsusega nr 20 Ilmastalu küla Metsaääre tee 1, 2, 3, 4, 5, 7, Metsaääre tee ja Metsaserva kinnistute ...

Ilmastalu küla Metsaääre tee 1, 2, 3, 4, 5, 7, Metsaääre tee ja Metsaserva kinnistute detailplaneeringu eskiislahenduse avaliku väljapaneku tulemuste avalik arutelu

Kuusalu Vallavalitsus annab teada, et Kuusalu Vallavolikogu algatas 18.juunil 2025 otsusega nr 20 Ilmastalu küla Metsaääre tee 1, 2, 3, 4, 5, 7, Metsaääre tee ja Metsaserva kinnistute ...

Kuusalu Vallavalitsus teatab, et algatas 16.oktoobril 2025 korraldusega nr 284 Kaberla küla Kutikse (35201:001:0245) kinnistu detailplaneeringu ja kinnitas lähteülesande. Detailplaneeringu...

Kaberla küla Kutikse kinnistu detailplaneeringu eskiislahenduse tutvustus

Kuusalu Vallavalitsus teatab, et algatas 16.oktoobril 2025 korraldusega nr 284 Kaberla küla Kutikse (35201:001:0245) kinnistu detailplaneeringu ja kinnitas lähteülesande. Detailplaneeringu...

Anname teada, et Kuusalu Vallavalitsuse 18.detsembri 2025 korraldusega nr 358 võeti vastu Kuusalu aleviku Kuusalu tee 41 (35201:004:0039) ja Kuusalu tee 43 (35201:004:0064) kinnistute ning...

Kuusalu aleviku Kuusalu tee 41, Kuusalu tee 43 ning lähiala kinnistute detailplaneeringu avalik väljapanek

Anname teada, et Kuusalu Vallavalitsuse 18.detsembri 2025 korraldusega nr 358 võeti vastu Kuusalu aleviku Kuusalu tee 41 (35201:004:0039) ja Kuusalu tee 43 (35201:004:0064) kinnistute ning...

Kuusalu Vallavalitsus teatab, et algatas 13.aprillil 2023 korraldusega nr 147 Mäepea küla Liivamaa (35301:001:1875) kinnistu detailplaneeringu ja kinnitas lähteülesande. Detailplaneeringu...

Mäepea küla Liivamaa kinnistu detailplaneeringu eskiislahenduse tutvustus

Kuusalu Vallavalitsus teatab, et algatas 13.aprillil 2023 korraldusega nr 147 Mäepea küla Liivamaa (35301:001:1875) kinnistu detailplaneeringu ja kinnitas lähteülesande. Detailplaneeringu...

Kuusalu Vallavalitsus teatab, et kehtestas 4.detsembril 2025 korraldusega nr 344 Andineeme küla Tülivere ühistu 19 kinnistu (35202:002:0190) detailplaneeringu.   ...

Andineeme küla Tülivere ühistu 19 kinnistu detailplaneeringu kehtestamine

Kuusalu Vallavalitsus teatab, et kehtestas 4.detsembril 2025 korraldusega nr 344 Andineeme küla Tülivere ühistu 19 kinnistu (35202:002:0190) detailplaneeringu.   ...

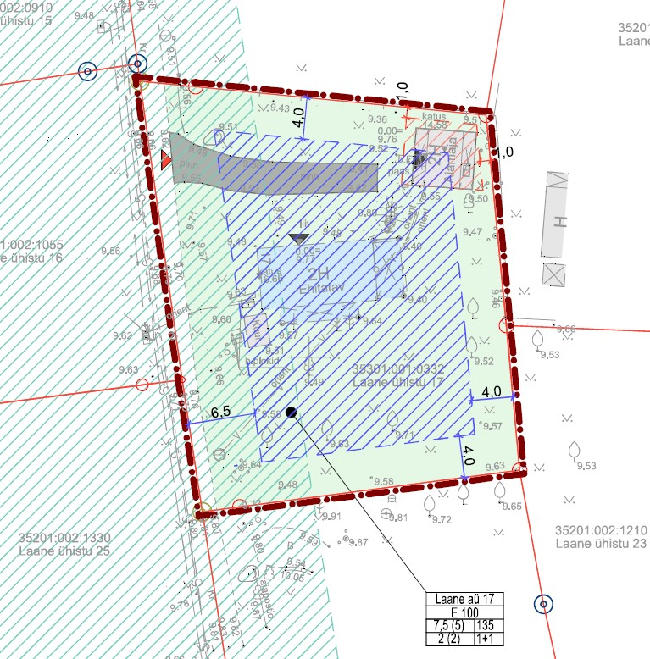
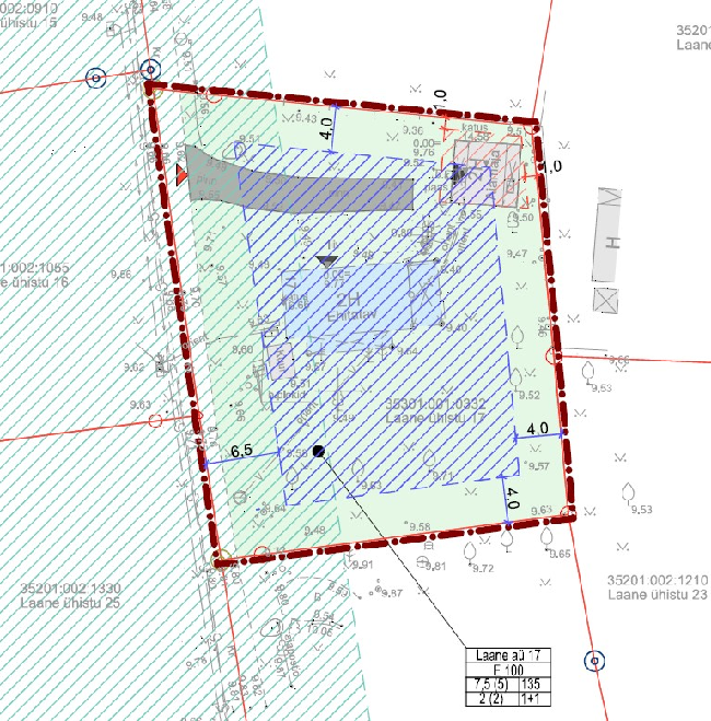
Kuusalu Vallavalitsus teatab, et algatas 13.novembril 2025 korraldusega nr 315 Salmistu küla Laane ühistu 17 (35301:001:0332) kinnistu detailplaneeringu ja kinnitas lähteülesande....

Salmistu küla Laane ühistu 17 kinnistu detailplaneeringu eskiislahenduse tutvustus

Kuusalu Vallavalitsus teatab, et algatas 13.novembril 2025 korraldusega nr 315 Salmistu küla Laane ühistu 17 (35301:001:0332) kinnistu detailplaneeringu ja kinnitas lähteülesande....

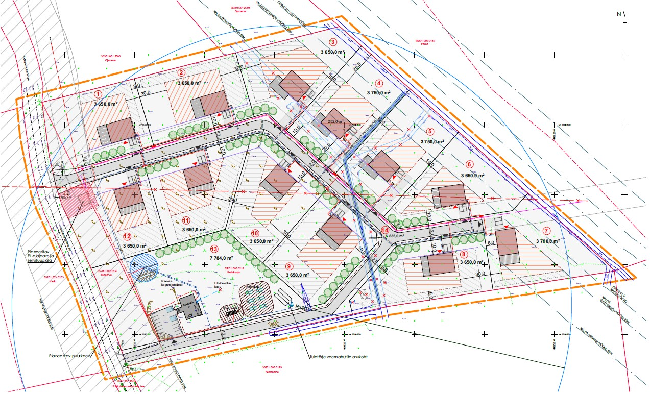
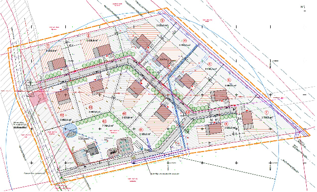
Kuusalu Vallavalitsus teatab, et Kuusalu Vallavolikogu algatas 30.aprillil 2025 otsusega nr 8 Kodasoo küla Seltsimaja (35201:003:0212) ja Teeserva (35201:003:0204) kinnistute detailplaneeringu...

Kodasoo küla Seltsimaja ja Teeserva kinnistute detailplaneeringu eskiislahenduse avalik väljapanek

Kuusalu Vallavalitsus teatab, et Kuusalu Vallavolikogu algatas 30.aprillil 2025 otsusega nr 8 Kodasoo küla Seltsimaja (35201:003:0212) ja Teeserva (35201:003:0204) kinnistute detailplaneeringu...

Kuusalu Vallavalitsus teatab, et algatas 13.novembril 2025 korraldusega nr 315 Salmistu küla Laane ühistu 17 (35301:001:0332) kinnistu detailplaneeringu ja kinnitas lähteülesande.   ...

Salmistu küla Laane ühistu 17 kinnistu detailplaneeringu algatamine ja lähteülesande kinnitamine

Kuusalu Vallavalitsus teatab, et algatas 13.novembril 2025 korraldusega nr 315 Salmistu küla Laane ühistu 17 (35301:001:0332) kinnistu detailplaneeringu ja kinnitas lähteülesande.   ...

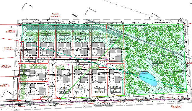
Kuusalu Vallavalitsus teatab, et algatas 19.juunil 2025 korraldusega nr 197 Valkla küla Joosepi (35301:001:0271) ja Tammejõe (35201:001:0360) kinnistute detailplaneeringu ja kinnitas...

Valkla küla Joosepi ja Tammejõe kinnistute detailplaneeringu eskiislahenduse avalik väljapanek

Kuusalu Vallavalitsus teatab, et algatas 19.juunil 2025 korraldusega nr 197 Valkla küla Joosepi (35301:001:0271) ja Tammejõe (35201:001:0360) kinnistute detailplaneeringu ja kinnitas...

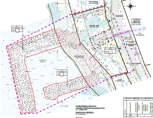
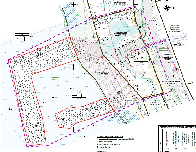
Kuusalu Vallavalitsus teatab, et algatas 27.juunil 2024 korraldusega nr 187 Leesi küla Leesikalda sadama kinnistu (42301:001:0365) detailplaneeringu ja kinnitas lähteülesande. Detailplaneeringu...

Leesi küla Leesikalda sadama eskiislahenduse avalik väljapanek

Kuusalu Vallavalitsus teatab, et algatas 27.juunil 2024 korraldusega nr 187 Leesi küla Leesikalda sadama kinnistu (42301:001:0365) detailplaneeringu ja kinnitas lähteülesande. Detailplaneeringu...

Kuusalu Vallavalitsus teatab, et Kuusalu Vallavolikogu algatas 18.juunil 2025 otsusega nr 20 Ilmastalu küla Metsaääre tee 1, 2, 3, 4, 5, 7, Metsaääre tee ja Metsaserva...

Ilmastalu küla Metsaääre tee 1, 2, 3, 4, 5, 7, Metsaääre tee ja Metsaserva kinnistute eskiislahenduse avalik väljapanek

Kuusalu Vallavalitsus teatab, et Kuusalu Vallavolikogu algatas 18.juunil 2025 otsusega nr 20 Ilmastalu küla Metsaääre tee 1, 2, 3, 4, 5, 7, Metsaääre tee ja Metsaserva...

Kuusalu Vallavalitsus teatab, et algatas 16.oktoobril 2025 korraldusega nr 284 Kaberla küla Kutikse (35201:001:0245) kinnistu detailplaneeringu ja kinnitas lähteülesande.   ...

Kaberla küla Kutikse kinnistu detailplaneeringu algatamine ja lähteülesande kinnitamine

Kuusalu Vallavalitsus teatab, et algatas 16.oktoobril 2025 korraldusega nr 284 Kaberla küla Kutikse (35201:001:0245) kinnistu detailplaneeringu ja kinnitas lähteülesande.   ...

Kuusalu Vallavalitsus teatab, et kehtestas 23.oktoobril 2025 korraldusega nr 295 Kaberla küla Tärdavälja kinnistu (35201:001:0105) detailplaneeringu.   Detailplaneeringuga...

Kaberla küla Tärdavälja kinnistu detailplaneeringu kehtestamine

Kuusalu Vallavalitsus teatab, et kehtestas 23.oktoobril 2025 korraldusega nr 295 Kaberla küla Tärdavälja kinnistu (35201:001:0105) detailplaneeringu.   Detailplaneeringuga...

Kuusalu Vallavalitsus teatab, et kehtestas 23.oktoobril 2025 korraldusega nr 296 Kuusalu küla Üraski kinnistu (35301:001:1823) detailplaneeringu.   ...

Kuusalu küla Üraski kinnistu detailplaneeringu kehtestamine

Kuusalu Vallavalitsus teatab, et kehtestas 23.oktoobril 2025 korraldusega nr 296 Kuusalu küla Üraski kinnistu (35301:001:1823) detailplaneeringu.   ...

Kuusalu Vallavalitsus teatab, et kehtestas 16.oktoobril 2025 korraldusega nr 286 Mäepea küla Söödisaare kinnistu (35301:001:1674) detailplaneeringu.   ...

Mäepea küla Söödisaare kinnistu detailplaneeringu kehtestamine

Kuusalu Vallavalitsus teatab, et kehtestas 16.oktoobril 2025 korraldusega nr 286 Mäepea küla Söödisaare kinnistu (35301:001:1674) detailplaneeringu.   ...

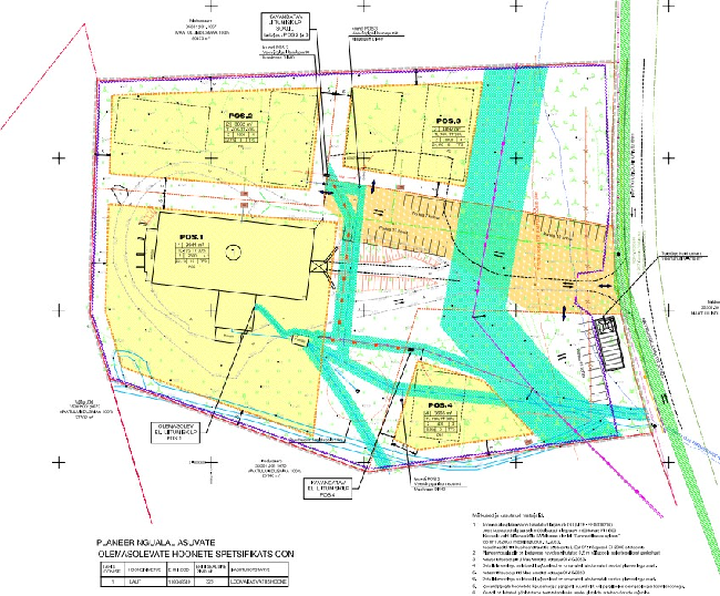
Kuusalu Vallavalitsus teatab, et kehtestas 16.oktoobril 2025 korraldusega nr 288 Kuusalu aleviku Laane tn 29 kinnistu (35201:004:0068) detailplaneeringu.   ...

Kuusalu alevik Laane tn 29 kinnistu detailplaneeringu kehtestamine

Kuusalu Vallavalitsus teatab, et kehtestas 16.oktoobril 2025 korraldusega nr 288 Kuusalu aleviku Laane tn 29 kinnistu (35201:004:0068) detailplaneeringu.   ...

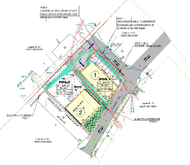
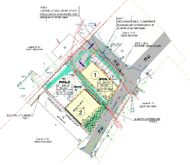
Kuusalu Vallavalitsus teatab, et kehtestas 9.oktoobril 2025 korraldusega nr 283 Kahala küla Pae kinnistu (35301:001:1832) detailplaneeringu.   ...

Kahala küla Pae kinnistu detailplaneeringu kehtestamine

Kuusalu Vallavalitsus teatab, et kehtestas 9.oktoobril 2025 korraldusega nr 283 Kahala küla Pae kinnistu (35301:001:1832) detailplaneeringu.   ...

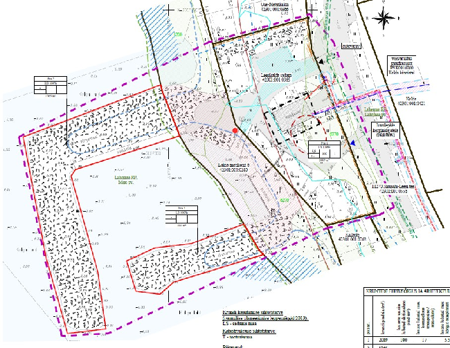
Kuusalu Vallavalitsus teatab, et kehtestas 9.oktoobril 2025 korraldusega nr 282 Kasispea küla Kaldapealse kinnistu (42301:004:0096) detailplaneeringu.   ...

Kasispea küla Kaldapealse kinnistu detailplaneeringu kehtestamine

Kuusalu Vallavalitsus teatab, et kehtestas 9.oktoobril 2025 korraldusega nr 282 Kasispea küla Kaldapealse kinnistu (42301:004:0096) detailplaneeringu.   ...

Näitan: 1-20
Elemente lehe kohta20
of 5