Planeeringute teated 2025-2026

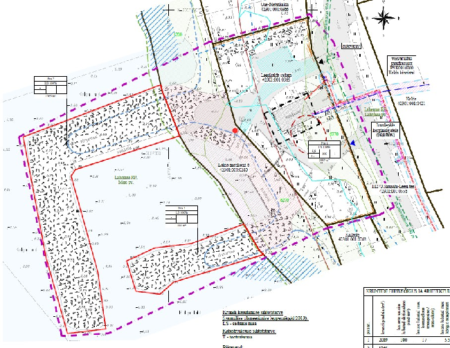
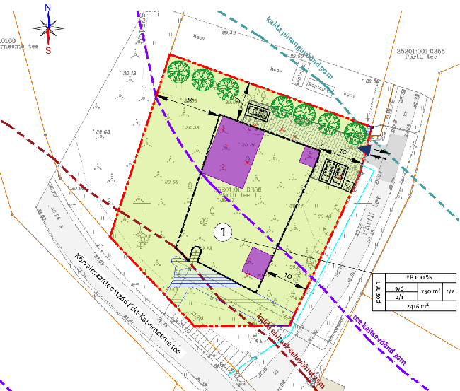
Kuusalu Vallavalitsus teatab, et algatas 12.septembril 2024 korraldusega nr 238 Valkla küla Pärtli tee 1 (35201:001:0356) kinnistu detailplaneeringu ja kinnitas lähteülesande. Detailplaneeringu...

Valkla küla Pärtli tee 1 kinnistu detailplaneeringu eskiislahenduse tutvustus

Kuusalu Vallavalitsus teatab, et algatas 12.septembril 2024 korraldusega nr 238 Valkla küla Pärtli tee 1 (35201:001:0356) kinnistu detailplaneeringu ja kinnitas lähteülesande. Detailplaneeringu...

Kuusalu Vallavalitsus teatab, et algatas 12.veebruaril 2026 korraldusega nr 29 Kiiu aleviku Ukumäe (35201:003:0547) kinnistu detailplaneeringu ja kinnitas lähteülesande. Detailplaneeringu...

Kiiu aleviku Ukumäe kinnistu detailplaneeringu eskiislahenduse tutvustus

Kuusalu Vallavalitsus teatab, et algatas 12.veebruaril 2026 korraldusega nr 29 Kiiu aleviku Ukumäe (35201:003:0547) kinnistu detailplaneeringu ja kinnitas lähteülesande. Detailplaneeringu...

Kuusalu Vallavalitsus teatab, et Kuusalu Vallavolikogu kehtestas 25.märtsil 2026 otsusega nr 3 Kaberla küla Lehe kinnistu (35201:001:0297) detailplaneeringu.   ...

Kaberla küla Lehe kinnistu detailplaneeringu kehtestamine

Kuusalu Vallavalitsus teatab, et Kuusalu Vallavolikogu kehtestas 25.märtsil 2026 otsusega nr 3 Kaberla küla Lehe kinnistu (35201:001:0297) detailplaneeringu.   ...

Kuusalu Vallavalitsus teatab, et algatas 12.märtsil 2026 korraldusega nr 66 Saunja küla Sibula (35201:003:0280) kinnistu detailplaneeringu ja kinnitas lähteülesande.   Huvitatud...

Saunja küla Sibula kinnistu detailplaneeringu algatamine ja lähteülesande kinnitamine

Kuusalu Vallavalitsus teatab, et algatas 12.märtsil 2026 korraldusega nr 66 Saunja küla Sibula (35201:003:0280) kinnistu detailplaneeringu ja kinnitas lähteülesande.   Huvitatud...

Kuusalu Vallavalitsus teatab, et algatas 12.märtsil 2026 korraldusega nr 67 Allika küla Kirsimaa (35201:002:1054) kinnistu detailplaneeringu ja kinnitas lähteülesande.   Huvitatud...

Allika küla Kirsimaa kinnistu detailplaneeringu algatamine ja lähteülesande kinnitamine

Kuusalu Vallavalitsus teatab, et algatas 12.märtsil 2026 korraldusega nr 67 Allika küla Kirsimaa (35201:002:1054) kinnistu detailplaneeringu ja kinnitas lähteülesande.   Huvitatud...

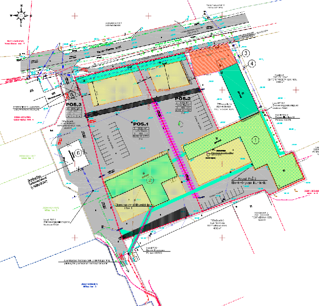
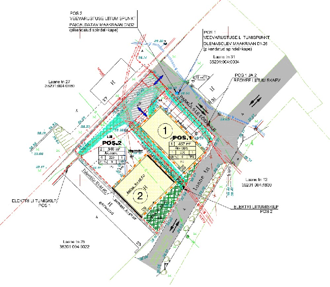
Anname teada, et Kuusalu Vallavalitsuse 18.detsembri 2025 korraldusega nr 358 võeti vastu Kuusalu alevik Kuusalu tee 41 (35201:004:0039), Kuusalu tee 43 (35201:004:0064) ja Tehnika tänava...

Kuusalu aleviku Kuusalu tee 41, Kuusalu tee 43 ja Tehnika tänava kinnistute ning lähiala detailplaneeringu avaliku väljapaneku järgne avaliku arutelu muutuse teade

Anname teada, et Kuusalu Vallavalitsuse 18.detsembri 2025 korraldusega nr 358 võeti vastu Kuusalu alevik Kuusalu tee 41 (35201:004:0039), Kuusalu tee 43 (35201:004:0064) ja Tehnika tänava...

Kuusalu Vallavalitsus teatab, et algatas 5.märtsil 2026 korraldusega nr 53 Kolga aleviku Kooli (35203:002:0219) ja Vana-Vallamaja (35203:002:0218) kinnistute detailplaneeringu ja kinnitas...

Kolga aleviku Kooli ja Vana-Vallamaja kinnistute ja lähiala detailplaneeringu algatamine ja lähteülesande kinnitamine

Kuusalu Vallavalitsus teatab, et algatas 5.märtsil 2026 korraldusega nr 53 Kolga aleviku Kooli (35203:002:0219) ja Vana-Vallamaja (35203:002:0218) kinnistute detailplaneeringu ja kinnitas...

Kuusalu Vallavalitsus teatab, et algatas 5.märtsil 2026 korraldusega nr 54 Kolga aleviku Mõisa allee 2/3 (35203:002:0120) kinnistu detailplaneeringu ja kinnitas lähteülesande.   ...

Kolga aleviku Mõisa allee 2/3 kinnistu detailplaneeringu algatamine ja lähteülesande kinnitamine

Kuusalu Vallavalitsus teatab, et algatas 5.märtsil 2026 korraldusega nr 54 Kolga aleviku Mõisa allee 2/3 (35203:002:0120) kinnistu detailplaneeringu ja kinnitas lähteülesande.   ...

Kuusalu Vallavalitsus teatab, et algatas 26.veebruaril 2026 korraldusega nr 48 Sõitme küla Leegiranna tee 15 (35201:002:0608) kinnistu detailplaneeringu ja kinnitas lähteülesande. ...

Sõitme küla Leegiranna tee 15 kinnistu ja selle lähiala detailplaneeringu algatamine ja lähteülesande kinnitamine

Kuusalu Vallavalitsus teatab, et algatas 26.veebruaril 2026 korraldusega nr 48 Sõitme küla Leegiranna tee 15 (35201:002:0608) kinnistu detailplaneeringu ja kinnitas lähteülesande. ...

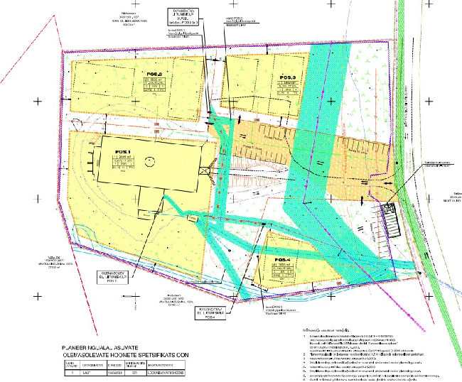
Kuusalu Vallavalitsus teatab, et kehtestas 26.veebruaril 2026 korraldusega nr 46 Kiiu aleviku Töökoja põik 1 kinnistu (35201:003:0524) detailplaneeringu.   Töökoja põik 1...

Kiiu aleviku Töökoja põik 1 kinnistu ja selle lähiala detailplaneeringu kehtestamine

Kuusalu Vallavalitsus teatab, et kehtestas 26.veebruaril 2026 korraldusega nr 46 Kiiu aleviku Töökoja põik 1 kinnistu (35201:003:0524) detailplaneeringu.   Töökoja põik 1...

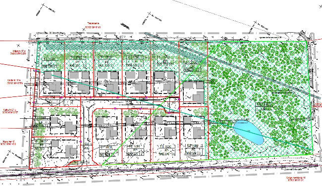
Kuusalu vallavalitsuse 18. detsembri 2025 korraldusega nr 358 võeti vastu Kuusalu alevik Kuusalu tee 41 (35201:004:0039), Kuusalu tee 43 (35201:004:0064) ja Tehnika tänava (35201:004:0058)...

Kuusalu aleviku Kuusalu tee 41, Kuusalu tee 43 ja Tehnika tänava kinnistute ning lähiala detailplaneeringu avaliku väljapaneku järgne avalik arutelu

Kuusalu vallavalitsuse 18. detsembri 2025 korraldusega nr 358 võeti vastu Kuusalu alevik Kuusalu tee 41 (35201:004:0039), Kuusalu tee 43 (35201:004:0064) ja Tehnika tänava (35201:004:0058)...

Kuusalu Vallavalitsus teatab, et algatas 12.veebruaril 2026 korraldusega nr 29 Kiiu aleviku Ukumäe (35201:003:0547) kinnistu detailplaneeringu ja kinnitas lähteülesande.   ...

Kiiu aleviku Ukumäe kinnistu detailplaneeringu algatamine

Kuusalu Vallavalitsus teatab, et algatas 12.veebruaril 2026 korraldusega nr 29 Kiiu aleviku Ukumäe (35201:003:0547) kinnistu detailplaneeringu ja kinnitas lähteülesande.   ...

Kuusalu Vallavalitsus teatab, et algatas 29.mail 2025 korraldusega nr 174 Kolga-Aabla küla Lemeti (42301:001:0283) kinnistu detailplaneeringu ja kinnitas lähteülesande. Detailplaneeringu...

Kolga-Aabla küla Lemeti kinnistu detailplaneeringu eskiislahenduse tutvustus

Kuusalu Vallavalitsus teatab, et algatas 29.mail 2025 korraldusega nr 174 Kolga-Aabla küla Lemeti (42301:001:0283) kinnistu detailplaneeringu ja kinnitas lähteülesande. Detailplaneeringu...

Leesi küla Leesiranna (42301:001:0177) kinnistu  detailplaneeringu täiendava avaliku väljapaneku materjalidega saab tutvuda Kuusalu valla kodulehel, Kuusalu vallamajas kohapeal ja...

Leesi küla Leesiranna kinnistu detailplaneeringu avalik väljapanek ja avaliku väljapaneku tulemuste avalik arutelu

Leesi küla Leesiranna (42301:001:0177) kinnistu  detailplaneeringu täiendava avaliku väljapaneku materjalidega saab tutvuda Kuusalu valla kodulehel, Kuusalu vallamajas kohapeal ja...

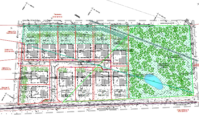
Kuusalu Vallavalitsus annab teada, et Kuusalu Vallavolikogu algatas 18.juunil 2025 otsusega nr 20 Ilmastalu küla Metsaääre tee 1, 2, 3, 4, 5, 7, Metsaääre tee ja Metsaserva kinnistute ...

Ilmastalu küla Metsaääre tee 1, 2, 3, 4, 5, 7, Metsaääre tee ja Metsaserva kinnistute detailplaneeringu eskiislahenduse avaliku väljapaneku tulemuste avalik arutelu

Kuusalu Vallavalitsus annab teada, et Kuusalu Vallavolikogu algatas 18.juunil 2025 otsusega nr 20 Ilmastalu küla Metsaääre tee 1, 2, 3, 4, 5, 7, Metsaääre tee ja Metsaserva kinnistute ...

Kuusalu Vallavalitsus teatab, et algatas 16.oktoobril 2025 korraldusega nr 284 Kaberla küla Kutikse (35201:001:0245) kinnistu detailplaneeringu ja kinnitas lähteülesande. Detailplaneeringu...

Kaberla küla Kutikse kinnistu detailplaneeringu eskiislahenduse tutvustus

Kuusalu Vallavalitsus teatab, et algatas 16.oktoobril 2025 korraldusega nr 284 Kaberla küla Kutikse (35201:001:0245) kinnistu detailplaneeringu ja kinnitas lähteülesande. Detailplaneeringu...

Anname teada, et Kuusalu Vallavalitsuse 18.detsembri 2025 korraldusega nr 358 võeti vastu Kuusalu aleviku Kuusalu tee 41 (35201:004:0039) ja Kuusalu tee 43 (35201:004:0064) kinnistute ning...

Kuusalu aleviku Kuusalu tee 41, Kuusalu tee 43 ning lähiala kinnistute detailplaneeringu avalik väljapanek

Anname teada, et Kuusalu Vallavalitsuse 18.detsembri 2025 korraldusega nr 358 võeti vastu Kuusalu aleviku Kuusalu tee 41 (35201:004:0039) ja Kuusalu tee 43 (35201:004:0064) kinnistute ning...

Kuusalu Vallavalitsus teatab, et algatas 13.aprillil 2023 korraldusega nr 147 Mäepea küla Liivamaa (35301:001:1875) kinnistu detailplaneeringu ja kinnitas lähteülesande. Detailplaneeringu...

Mäepea küla Liivamaa kinnistu detailplaneeringu eskiislahenduse tutvustus

Kuusalu Vallavalitsus teatab, et algatas 13.aprillil 2023 korraldusega nr 147 Mäepea küla Liivamaa (35301:001:1875) kinnistu detailplaneeringu ja kinnitas lähteülesande. Detailplaneeringu...

Kuusalu Vallavalitsus teatab, et kehtestas 4.detsembril 2025 korraldusega nr 344 Andineeme küla Tülivere ühistu 19 kinnistu (35202:002:0190) detailplaneeringu.   ...

Andineeme küla Tülivere ühistu 19 kinnistu detailplaneeringu kehtestamine

Kuusalu Vallavalitsus teatab, et kehtestas 4.detsembril 2025 korraldusega nr 344 Andineeme küla Tülivere ühistu 19 kinnistu (35202:002:0190) detailplaneeringu.   ...

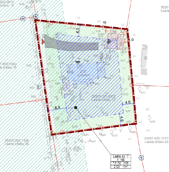
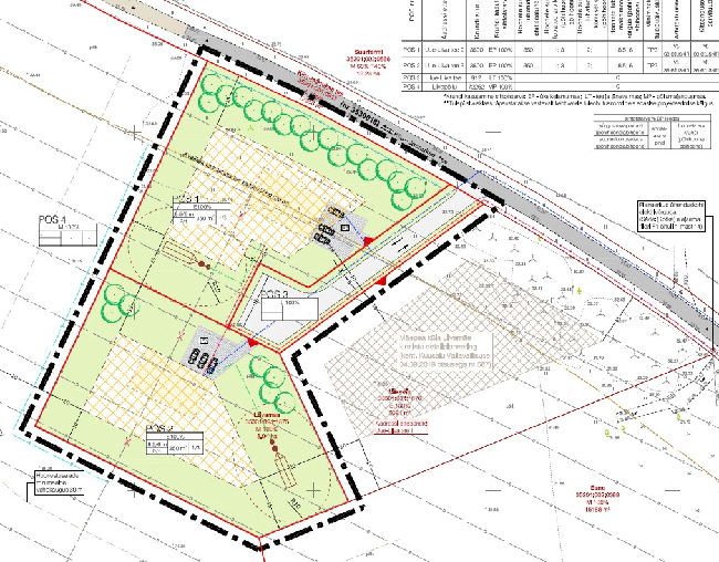
Kuusalu Vallavalitsus teatab, et algatas 13.novembril 2025 korraldusega nr 315 Salmistu küla Laane ühistu 17 (35301:001:0332) kinnistu detailplaneeringu ja kinnitas lähteülesande....

Salmistu küla Laane ühistu 17 kinnistu detailplaneeringu eskiislahenduse tutvustus

Kuusalu Vallavalitsus teatab, et algatas 13.novembril 2025 korraldusega nr 315 Salmistu küla Laane ühistu 17 (35301:001:0332) kinnistu detailplaneeringu ja kinnitas lähteülesande....

Näitan: 1-20
Elemente lehe kohta20
of 6