Planeeringute teated 2023

Kuusalu Vallavalitsus teatab, et kehtestas 28.detsembril 2023 korraldusega nr 524 Muuksi küla Käsperi-Hansu kinnistu (35203:001:0383) detailplaneeringu.   ...

Muuksi küla Käsperi-Hansu kinnistu detailplaneeringu kehtestamine

Kuusalu Vallavalitsus teatab, et kehtestas 28.detsembril 2023 korraldusega nr 524 Muuksi küla Käsperi-Hansu kinnistu (35203:001:0383) detailplaneeringu.   ...

Kuusalu Vallavalitsus teatab, et kehtestas 21.detsembril 2023 korraldusega nr 517 Kolga aleviku Kolga mõisa kinnistu (35203:002:0081) detailplaneeringu. 29,46 ha suurusest Kolga mõisa...

Kolga aleviku Kolga mõisa kinnistu detailplaneeringu kehtestamine

Kuusalu Vallavalitsus teatab, et kehtestas 21.detsembril 2023 korraldusega nr 517 Kolga aleviku Kolga mõisa kinnistu (35203:002:0081) detailplaneeringu. 29,46 ha suurusest Kolga mõisa...

Anname teada, et Kuusalu Vallavolikogu 13.detsembri 2023 otsusega nr 82 võeti vastu Valkla küla Aiamaa kinnistu (35301:001:0369)  detailplaneering. Detailplaneeringu avaliku väljapaneku...

Valkla küla Aiamaa kinnistu detailplaneeringu avalik väljapanek

Anname teada, et Kuusalu Vallavolikogu 13.detsembri 2023 otsusega nr 82 võeti vastu Valkla küla Aiamaa kinnistu (35301:001:0369)  detailplaneering. Detailplaneeringu avaliku väljapaneku...

Kuusalu Vallavalitsus teatab, et 13.detsembril 2023 otsusega nr 81 algatas Kuusalu Vallavolikogu Kiiu aleviku Kruusimäe maaüksuste (35201:003:0433 ja 35201:003:0039) detailplaneeringu, kinnitas...

Kiiu aleviku Kruusimäe maaüksuste ja nende lähiala detailplaneeringu algatamine

Kuusalu Vallavalitsus teatab, et 13.detsembril 2023 otsusega nr 81 algatas Kuusalu Vallavolikogu Kiiu aleviku Kruusimäe maaüksuste (35201:003:0433 ja 35201:003:0039) detailplaneeringu, kinnitas...

Kuusalu Vallavalitsus teatab, et 13.detsembril 2023 otsusega nr 83 algatas Kuusalu Vallavolikogu Vihasoo küla Jõekalda (42301:004:0427) ja Jõekalda tee (35301:001:1770) kinnistute...

Vihasoo küla Jõekalda ja Jõekalda tee kinnistute detailplaneeringu algatamine

Kuusalu Vallavalitsus teatab, et 13.detsembril 2023 otsusega nr 83 algatas Kuusalu Vallavolikogu Vihasoo küla Jõekalda (42301:004:0427) ja Jõekalda tee (35301:001:1770) kinnistute...

Kuusalu Vallavalitsus teatab, et kehtestas 14.detsembril 2023 korraldusega nr 511 Sõitme küla Aasa kinnistu (35201:002:0793) detailplaneeringu.   ...

Sõitme küla Aasa kinnistu detailplaneeringu kehtestamine

Kuusalu Vallavalitsus teatab, et kehtestas 14.detsembril 2023 korraldusega nr 511 Sõitme küla Aasa kinnistu (35201:002:0793) detailplaneeringu.   ...

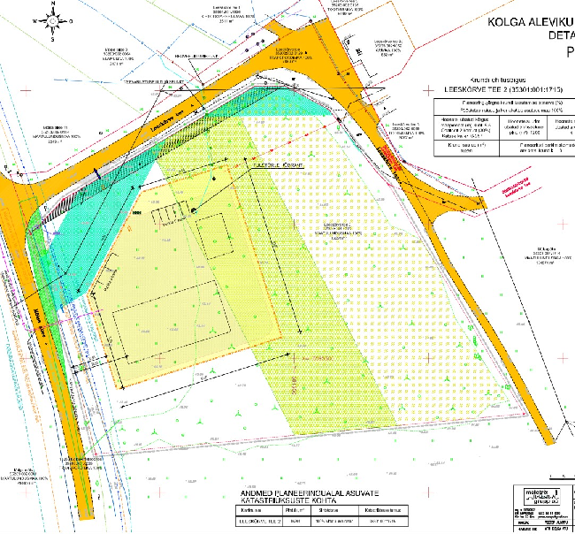
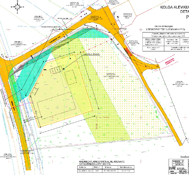
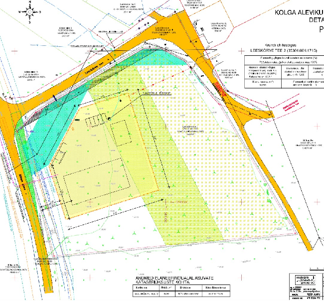
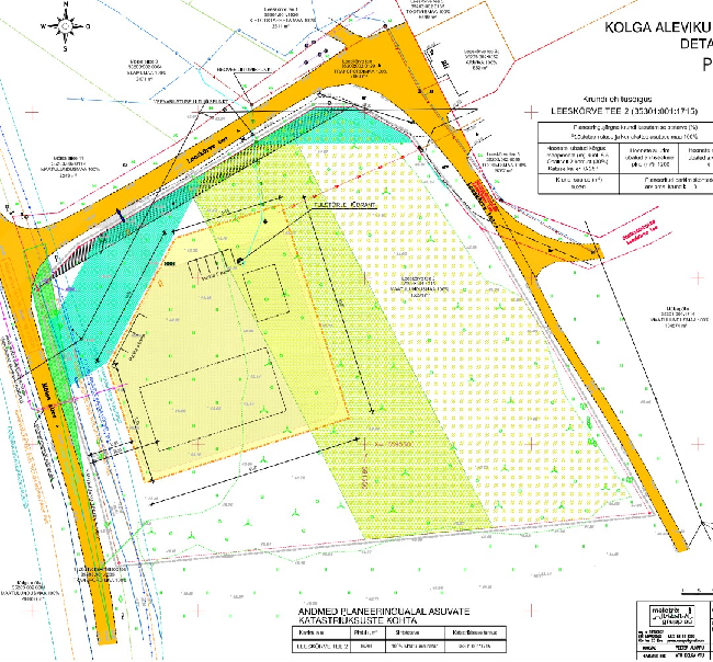
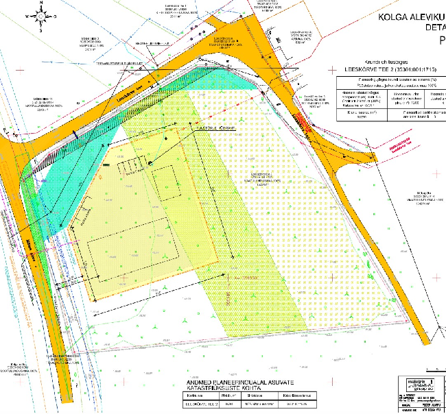
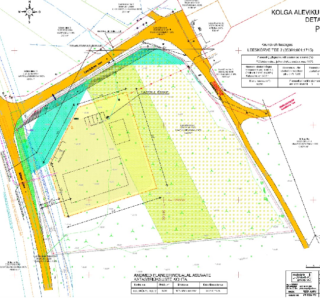
Kuusalu Vallavalitsus teatab, et kehtestas 14.detsembril 2023 korraldusega nr 510 Kolga aleviku Leeskõrve tee 2 kinnistu (35301:001:1715) detailplaneeringu.   ...

Kolga alevik Leeskõrve tee 2 kinnistu detailplaneeringu kehtestamine

Kuusalu Vallavalitsus teatab, et kehtestas 14.detsembril 2023 korraldusega nr 510 Kolga aleviku Leeskõrve tee 2 kinnistu (35301:001:1715) detailplaneeringu.   ...

Kuusalu Vallavalitsus algatas 6.juulil 2023 korraldusega nr 299 Sõitme küla Kalda kinnistu (35301:001:0729)  detailplaneeringu ja kinnitas lähteülesande. Detailplaneeringu...

Sõitme küla Kalda kinnistu eskiislahenduse tutvustus

Kuusalu Vallavalitsus algatas 6.juulil 2023 korraldusega nr 299 Sõitme küla Kalda kinnistu (35301:001:0729)  detailplaneeringu ja kinnitas lähteülesande. Detailplaneeringu...

Kuusalu küla Vana-Narva mnt 24 (35201:002:1033), 28 (35201:002:0197), 30 (35201:002:0037) kinnistute detailplaneeringu avaliku väljapaneku jooksul laekus Kuusalu Vallavalitsusele üks kiri...

Kuusalu küla Vana-Narva mnt 24, 28, 30 kinnistute detailplaneeringu avaliku väljapaneku järgne avalik arutelu

Kuusalu küla Vana-Narva mnt 24 (35201:002:1033), 28 (35201:002:0197), 30 (35201:002:0037) kinnistute detailplaneeringu avaliku väljapaneku jooksul laekus Kuusalu Vallavalitsusele üks kiri...

Kuusalu Vallavalitsus teatab, et algatas 30.novembril 2023 korraldusega nr 483 Kahala küla Pae kinnistu (35301:001:1832) detailplaneeringu ja kinnitas lähteülesande.   ...

Kahala küla Pae kinnistu detailplaneeringu algatamine ja lähteülesande kinnitamine

Kuusalu Vallavalitsus teatab, et algatas 30.novembril 2023 korraldusega nr 483 Kahala küla Pae kinnistu (35301:001:1832) detailplaneeringu ja kinnitas lähteülesande.   ...

Kuusalu Vallavalitsus teatab, et algatas 30.novembril 2023 korraldusega nr 484 Kolga-Aabla küla Allika kinnistu (42301:001:0183) detailplaneeringu ja kinnitas lähteülesande.   ...

Kolga-Aabla küla Allika kinnistu detailplaneeringu algatamine ja lähteülesande kinnitamine

Kuusalu Vallavalitsus teatab, et algatas 30.novembril 2023 korraldusega nr 484 Kolga-Aabla küla Allika kinnistu (42301:001:0183) detailplaneeringu ja kinnitas lähteülesande.   ...

Kuusalu Vallavalitsus teatab, et algatas 30.novembril 2023 korraldusega nr 480 Kahala küla Alahaki kinnistu (35203:003:0051) detailplaneeringu ja kinnitas lähteülesande.   ...

Kahala küla Alahaki kinnistu detailplaneeringu algatamine ja lähteülesande kinnitamine

Kuusalu Vallavalitsus teatab, et algatas 30.novembril 2023 korraldusega nr 480 Kahala küla Alahaki kinnistu (35203:003:0051) detailplaneeringu ja kinnitas lähteülesande.   ...

Kuusalu Vallavalitsus algatas 30.märtsil 2023 korraldusega nr 138 Valkla küla Kahuranna kinnistu (35201:001:0581)  detailplaneeringu ja kinnitas lähteülesande. Detailplaneeringu...

Valkla küla Kahuranna kinnistu detailplaneeringu eskiislahenduse tutvustus

Kuusalu Vallavalitsus algatas 30.märtsil 2023 korraldusega nr 138 Valkla küla Kahuranna kinnistu (35201:001:0581)  detailplaneeringu ja kinnitas lähteülesande. Detailplaneeringu...

Kuusalu Vallavalitsus teatab, et algatas 30.novembril 2023 korraldusega nr 481 Mäepea küla Pihlakavälja kinnistu (35201:002:0816) detailplaneeringu ja kinnitas lähteülesande.   ...

Mäepea küla Pihlakavälja kinnistu detailplaneeringu algatamine ja lähteülesande kinnitamine

Kuusalu Vallavalitsus teatab, et algatas 30.novembril 2023 korraldusega nr 481 Mäepea küla Pihlakavälja kinnistu (35201:002:0816) detailplaneeringu ja kinnitas lähteülesande.   ...

Kuusalu Vallavalitsus teatab, et kehtestas 30.novembril 2023 korraldusega nr 479 Kuusalu alevik Kalda tn 9 kinnistu (35201:004:1330) detailplaneeringu.   ...

Kuusalu alevik Kalda tn 9 kinnistu detailplaneeringu kehtestamine

Kuusalu Vallavalitsus teatab, et kehtestas 30.novembril 2023 korraldusega nr 479 Kuusalu alevik Kalda tn 9 kinnistu (35201:004:1330) detailplaneeringu.   ...

Kuusalu Vallavalitsus teatab, et kehtestas 30.novembril 2023 korraldusega nr 482 Sõitme küla Mereäärse kinnistu (35201:002:0460) detailplaneeringu.   ...

Sõitme küla Mereäärse kinnistu detailplaneeringu kehtestamine

Kuusalu Vallavalitsus teatab, et kehtestas 30.novembril 2023 korraldusega nr 482 Sõitme küla Mereäärse kinnistu (35201:002:0460) detailplaneeringu.   ...

Kuusalu Vallavalitsus teatab, et algatas 30.novembril 2023 korraldusega nr 478 Kiiu aleviku Koplivälja (35201:003:0328), Männituka (35201:003:0329) ja Priiuse (35201:003:0331) kinnistute...

Kiiu alevik Koplivälja, Männituka ja Priiuse kinnistute detailplaneeringu algatamine ja lähteülesande kinnitamine

Kuusalu Vallavalitsus teatab, et algatas 30.novembril 2023 korraldusega nr 478 Kiiu aleviku Koplivälja (35201:003:0328), Männituka (35201:003:0329) ja Priiuse (35201:003:0331) kinnistute...

Kuusalu Vallavalitsus teatab, et algatas 23.novembril 2023 korraldusega nr 466 Viinistu küla Lepiku kinnistu (42301:003:1240) detailplaneeringu ja kinnitas lähteülesande.   ...

Viinistu küla Lepiku kinnistu detailplaneeringu algatamine, lähteülesande kinnitamine ning detailplaneeringule keskkonnamõju strateegilise hindamise mittealgatamine

Kuusalu Vallavalitsus teatab, et algatas 23.novembril 2023 korraldusega nr 466 Viinistu küla Lepiku kinnistu (42301:003:1240) detailplaneeringu ja kinnitas lähteülesande.   ...

Kuusalu Vallavalitsus teatab, et algatas 23.novembril 2023 korraldusega nr 465 Kuusalu aleviku Kuusalu tee 22 (35201:004:0047) kinnistu ja selle lähiala detailplaneeringu ja kinnitas...

Kuusalu alevik Kuusalu tee 22 kinnistu ja selle lähiala detailplaneeringu algatamine ja lähteülesande kinnitamine

Kuusalu Vallavalitsus teatab, et algatas 23.novembril 2023 korraldusega nr 465 Kuusalu aleviku Kuusalu tee 22 (35201:004:0047) kinnistu ja selle lähiala detailplaneeringu ja kinnitas...

Anname teada, et Kuusalu Vallavalitsuse 9.novembri 2023 korraldusega nr 449 võeti vastu Kuusalu küla Vana-Narva mnt 24 (35201:002:1033), 28 (35201:002:0197), 30 (35201:002:0037) kinnistute ja...

Kuusalu küla Vana-Narva mnt 24, 28, 30 kinnistute ja nende lähiala detailplaneeringu avalik väljapanek

Anname teada, et Kuusalu Vallavalitsuse 9.novembri 2023 korraldusega nr 449 võeti vastu Kuusalu küla Vana-Narva mnt 24 (35201:002:1033), 28 (35201:002:0197), 30 (35201:002:0037) kinnistute ja...

Näitan: 1-20
Elemente lehe kohta20
of 7