 Planeeringute teated 2023
  Planeeringute teated 2023 
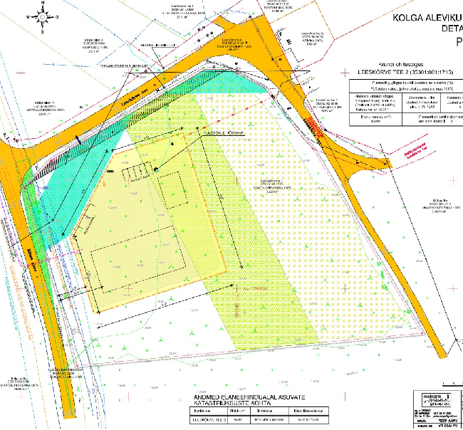
  Kolga alevik Leeskõrve tee 2 kinnistu detailplaneeringu kehtestamine
 Kuusalu Vallavalitsus teatab, et kehtestas 14.detsembril 2023 korraldusega nr 510 Kolga aleviku Leeskõrve tee 2 kinnistu (35301:001:1715) detailplaneeringu.
  Detailplaneeringuga määratakse ehitusõigus päästetehnika garaaži (päästedepoo) ja olmeruumide rajamiseks. Detailplaneeringuga kavandatavad hooned ehitatakse krundi lääneossa, säilitades ülejäänud maaüksusel kõrghaljastus. Planeeringuga on kavandatud kuni 4 hoonet. Kavandatav hoonestus moodustab terviku koos seda teenindavate abihoonetega ning hooneid ühendavate teede ja platsidega. Detailplaneeringuga ei tehta ettepanekut katastriüksuse jagamiseks. 
  Vastavalt planeerimisseaduse § 125 lõikele 1 on alevikes ehitusloakohustusliku hoone püstitamiseks vajalik koostada detailplaneering.
  Kehtiva üldplaneeringu kohaselt asub planeeritav ala Kolga aleviku hajaasustusega osas, tiheasustusala kõrval. Juurdepääs planeeritavale alale on tagatud Kolga-Pudisoo maanteelt ning avaliku kasutusega Leeskõrve teelt. Planeeringuga kavandatu on kooskõlas kehtiva Kuusalu valla üldplaneeringuga. Detailplaneering on kooskõlastatud lähteülesandega ette nähtult Päästeameti, Transpordiameti, Muinsuskaitseameti ja Keskkonnaameti ning tehnovõrkude valdajate poolt. 
  Detailplaneeringu elluviimisega ei kaasne eeldatavalt olulisi majanduslikke, sotsiaalseid ega kultuurilisi mõjusid, samuti ei kaasne olulist mõju looduskeskkonnale. 
  Lisainfo Kadi.Raudla@kuusalu.ee või telefonil 606 6379