Planeeringute teated 2025-26

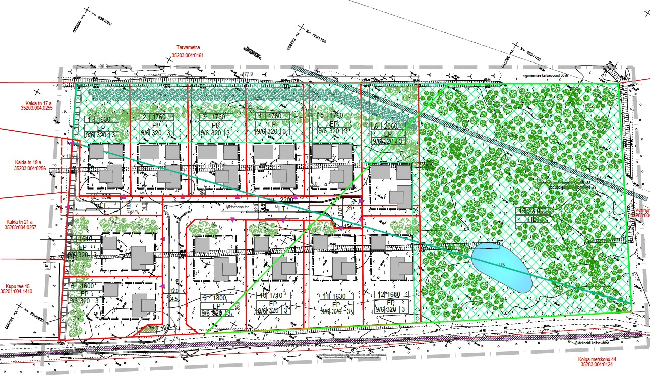
Ilmastalu küla Metsaääre tee 1, 2, 3, 4, 5, 7, Metsaääre tee ja Metsaserva kinnistute detailplaneeringu eskiislahenduse avaliku väljapaneku tulemuste avalik arutelu

Kuusalu Vallavalitsus annab teada, et Kuusalu Vallavolikogu algatas 18.juunil 2025 otsusega nr 20 Ilmastalu küla Metsaääre tee 1, 2, 3, 4, 5, 7, Metsaääre tee ja Metsaserva kinnistute  detailplaneeringu ja kinnitas lähteülesande. Detailplaneeringu eskiismaterjalide avalik väljapanek toimus 26.novembrist kuni 26.detsembrini 2025.

Avaliku väljapaneku tulemuste avalik arutelu toimub 28.jaanuaril 2026 algusega kell 18.00 Kuusalu Vallavalitsuses, aadressil Kiiu alevik, Mõisa tee 17.

Lisainfo detailplaneeringu eskiislahenduse osas Kadi.Raudla@kuusalu.ee või telefonil 606 6379.