Planeeringute teated 2025-2026
Mäepea küla Söödisaare kinnistu detailplaneeringu kehtestamine
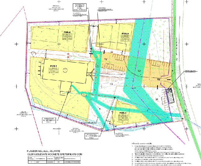
Kuusalu Vallavalitsus teatab, et kehtestas 16.oktoobril 2025 korraldusega nr 286 Mäepea küla Söödisaare kinnistu (35301:001:1674) detailplaneeringu.
Detailplaneeringuga tehakse ettepanek jagada 100 % tootmismaa sihtotstarbega Söödisaare kinnistu neljaks tootmis- ja ärimaa sihtotstarbega krundiks. Alale ei kavandada olulise keskkonnamõjuga tootmistegevust. Juurdepääs planeeritavale alale on tagatud avaliku kasutusega Kuusalu-Valkla maanteelt.
Planeeritav ala asub kehtiva Kuusalu valla üldplaneeringu kohasel tootmismaal, hajaasustusalal. Vastavalt üldplaneeringu seletuskirjas toodule, tuleb tootmis- ja ärihoonete rajamiseks koostada detailplaneering. Menetletav detailplaneering on üldplaneeringule vastav.
Detailplaneering on kooskõlastatud vastavalt lähteülesandes toodule tehnovõrkude valdajate, Transpordiameti ning Päästeametiga.
Detailplaneeringu elluviimisega ei kaasne eeldatavalt olulisi majanduslikke, sotsiaalseid ega kultuurilisi mõjusid, samuti ei kaasne olulist mõju looduskeskkonnale.
Lisainfo Kadi.Raudla@kuusalu.ee või tel 606 6379.