Planeeringute teated 2025-2026

Valkla küla Pärtli tee 1 kinnistu detailplaneeringu eskiislahenduse tutvustus

Kuusalu Vallavalitsus teatab, et algatas 12.septembril 2024 korraldusega nr 238 Valkla küla Pärtli tee 1 (35201:001:0356) kinnistu detailplaneeringu ja kinnitas lähteülesande. Detailplaneeringu eskiismaterjalidega saab tutvuda kuni 22.aprillini 2026 käesolevas postituses ja eelneval kokkuleppel Kuusalu vallamajas kohapeal. Eelpool nimetatud ajani saab esitada eskiislahendusele omapoolseid ettepanekuid/vastuväiteid aadressile vallavalitsus@kuusalu.ee.  
 

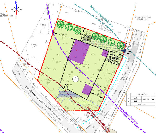
Huvitatud isik taotleb 2416 m2 suurusele hoonestamata ja 100 % ärimaa sihtotstarbega kinnistule elamu ja abihoonete ehitusõiguse ning elamumaa sihtotstarbe määramist. Kinnistu omanik soovib loobuda varasemalt kavandatud ärimaa sihtotstarbest, kuna antud alal äritegevus ei ole perspektiivikas ning elamukrunt sobituks juba välja kujunenud elamualale paremini.

Pärtli tee 1 kinnistu on moodustatud vastavalt Kuusalu Vallavolikogu 28.04.2005 otsusega nr 31 kehtestatud Valkla küla Pärtli kinnistu detailplaneeringule. Detailplaneeringuga kavandati alale 20 elamukrunti, 1 ärimaa sihtotstarbega krunt, haljasala ja spordirajatiste-, transpordi- ning tehnorajatiste maaüksused. Käesolevaks hetkeks ala teenindav taristu rajatud, samuti on valminud elamuid. Juurdepääs Pärtli tee 1 kinnistule on tagatud Kiiu-Kaberneeme maanteelt ning kehtiva detailplaneeringuga kavandatud ja välja ehitatud Pärtli teelt.

Kehtiva üldplaneeringu kohaselt asub Pärtli tee 1 kinnistu perspektiivsel haja-asustusega elamualal. Haja-asustusega aladel on minimaalselt elamukrundi suuruseks üldplaneeringuga määratud 3600 m2. Pärtli tee 1 kinnistu asub kehtestatud detailplaneeringu alusel moodustatud kompaktsel elamualal, kus elamukruntide suurused vastavad üldplaneeringuga lubatud minimaalsuurustele. Kiiu-Kaberneeme tee kõrval, väljaspool Pärtli kinnistu detailplaneeritud ala ning Pärtli tee 1 kinnistu kõrval, asetsevad olemasoleva hoonestusega elamukrundid, mis on üldplaneeringu minimaalsest suurusest väiksemad. Valkla külas, lähiümbruses on piisavalt võimalusi ärimaa kavandamiseks ja arendamiseks. Sellest tulenevalt on esitatud ettepanek sihtotstarbe muutmiseks vallavalitsuse hinnangul põhjendatud ja Pärtli tee 1 kinnistule soovitud elamumaa sihtotstarve antud kompaktsele elamualale sobiv. Kogu elamuala suurust arvestades ei ole üksiku elamukrundi väiksem suurus keskkonda oluliselt muutev ning hoonestamine ei ületa varasemalt kavandatud ärimaa sihtsotstarbega krundi mõjusid. Pärtli tee 1 kinnistule algatatav detailplaneering ei ole antud olemasoleva elamuala üldist olemust, elamukruntide hulka ja kontaktvööndis asuvaid elamukrunte arvestades üldplaneeringut oluliselt muutev ja detailplaneeringut menetletakse üldplaneeringule vastavana.

Lisainfo tel 606 6379 või e-post kadi.raudla@kuusalu.ee.