Uudised ja teated
Salmistu küla Laane ühistu 17 kinnistu detailplaneeringu eskiislahenduse tutvustus
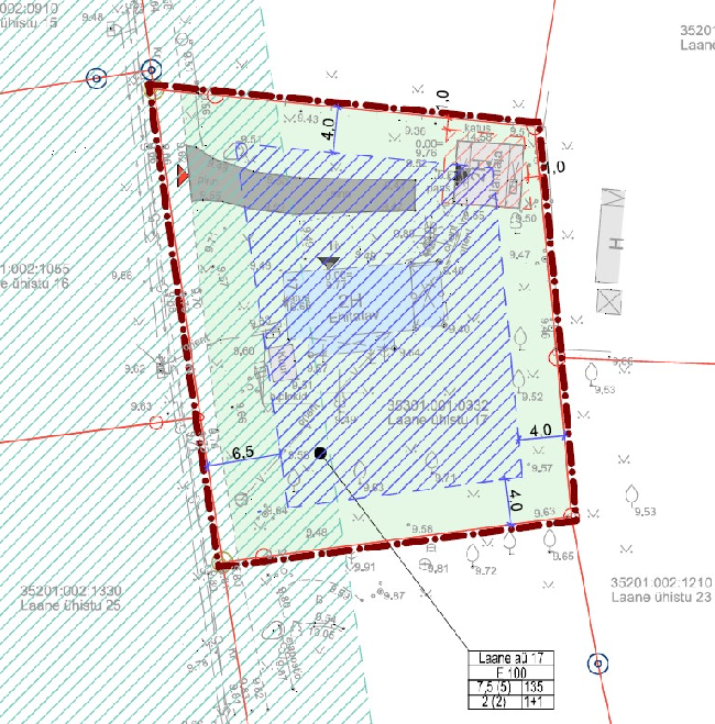
Kuusalu Vallavalitsus teatab, et algatas 13.novembril 2025 korraldusega nr 315 Salmistu küla Laane ühistu 17 (35301:001:0332) kinnistu detailplaneeringu ja kinnitas lähteülesande. Detailplaneeringu eskiismaterjalidega saab tutvuda kuni 17.detsembrini 2025 käesolevas postituses ja eelneval kokkuleppel Kuusalu vallamajas kohapeal. Eelpool nimetatud ajani saab esitada eskiislahendusele omapoolseid ettepanekuid/vastuväiteid aadressile vallavalitsus@kuusalu.ee.
Detailplaneeringuga soovitakse 1215 m2 suurusele elamumaa sihtotstarbega kinnistule ehitusõiguse määramist elamu ja abihoonete kavandamiseks.
Laane ühistu 17 kinnistu asub kehtiva Kuusalu valla üldplaneeringu kohasel tiheasustusalal ja elamualal, kus vastavalt planeerimisseaduse § 125 lõikele 1 on ehitusloakohustusliku hoone püstitamiseks vajalik koostada detailplaneering. Planeeringuga kavandatu on kooskõlas kehtiva Kuusalu valla üldplaneeringuga.
Lisainfo tel 606 6379 või e-post kadi.raudla@kuusalu.ee.